Postponed | Lot 7

44 Bridge Street, Walsall, West Midlands WS1 1HR

Postponed

  • Hospitality
  • Tenure: See Legal Pack

Call the team on 0121 289 3838 for more information

Auction Date

Thu 23/11/2023

Auction Time

18:00

Auction Venue

Livestream

Commercial

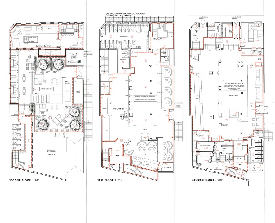
Situated in the heart of Walsall, this licences premises was recently trading as Religion Nightclub, one of Walsall's premier nightclub venues and could therefore be re-opened as a nightclub or other hospitality venue whilst alternatively it offers development opportunity for conversion to residential upper floors with ground floor commercial units in similar style to adjoining properties (subject to Planning Permission) . The air conditioned (not tested) club is set over three floors with dancefloor areas, bars, separate seating areas and top floor smoking terrace. The lighting and sound system equipment is also negotiable post sale or by prior agreement on a pre sale arrangement. There are two accesses from the ground floor to the following space:-

Tenure

See Legal Pack

Ground Floor

Having two entrance hallways, two store rooms, lift with access to first floor and two staircases to first floor landing three office spaces main room with bar space, seating area, and access to the basement Main Nightclub with dancefloor and bar and seating areas 21.3m (max) x 16.2m (max) Main office 6m x 4.6m Office 1 3.5m x 2.54m Office 2 3m x 3.9m Refurbished Toilets

First Floor

Having a landing leading on to main room with a bar area, doors leading to kitchen space and multiple corridors and halls leading off to multiple toilets, stairs off to a smoking terrace and office as well as second floor. Dancefloor, stage and bar 16.4m x 13.5m Seating area 6.3m x 11.5m Refurbished Toilets

Second Floor

Bar 11.8m x 5.25 leading onto large smoking terrace with bar and refurbished toilet facilities.

Basement

Room 1 5.8m x 4.319m Room 2 4.3m x 4m Corridor Leading to room 3 Room 3 5.36m x 5.75m

Viewing

By Appointment through Auctioneers on 0121 289 3838

Services

Interested parties are requested to make their own enquiries to the relevant authorities as to the availability of services.

Local Authority

Walsall Metropolitan Borough Council

Important Notice to Prospective Buyers:

We draw your attention to the Special Conditions of Sale within the Legal Pack, referring to other charges in addition to the purchase price which may become payable. Such costs may include Search Fees, reimbursement of Sellers costs and Legal Fees, and Transfer Fees amongst others.

Additional Fees

Buyer's Premium - 1% plus vat

Administration Charge - £1200 inc VAT payable on exchange of contracts.

Disbursements - Please see the legal pack for any disbursements listed that may become payable by the purchaser on completion.

View Larger Map

Disclaimer: The map preview provided above is for general guidance only and may not accurately reflect the exact location or surrounding buildings. Prospective buyers and interested parties are strongly advised to independently verify the precise location and surroundings before bidding.