For Sale By Auction | 12:30, 09 December 2025 | Lot 7

63 Larch Way, Chesterfield, Derbyshire, S40 4EU

*Guide | £275,000+ (plus fees)

  • Detached Bungalow
  • Tenure: See Legal Pack

Call the team on 01246 232 698 for more information

Auction Date

Tue 09/12/2025

Auction Time

12:30

Auction Venue

Live Stream

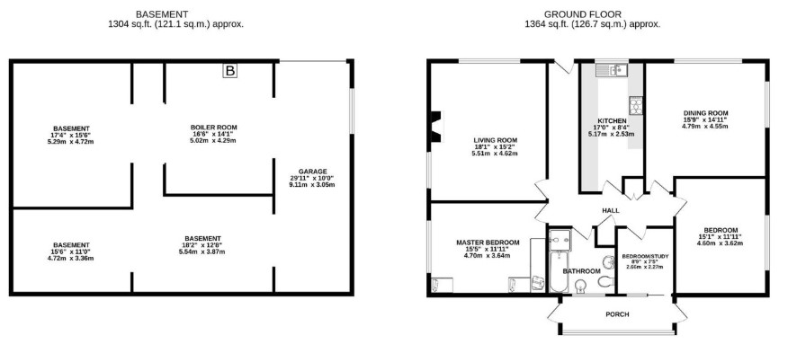
An excellent opportunity to purchase a much larger than average three bedroomed detached bungalow.

The property is situated on a corner plot, benefiting from two separate driveways, and has an impressive 2668 square feet of accommodation. The property benefits from gas central heating (not tested), together with uPVC double glazing. The property is believed to be of interest to the owner occupier or investor.

Tenure

See Legal Pack

Accommodation

An entrance porch leads through to the entrance hall with built-in storage cupboard. Living Room, having a feature exposed stone wall with inset living flame coal effect gas fire and marble hearth. Dining Room, having a wall mounted gas fire. Kitchen, having a good range of wall, drawer and base units, stainless steel sink with mixer tap, integrated appliances, together with space and plumbing for additional appliances. Bedroom One, having a range of fitted bedroom furniture. Bedroom Two, having a side facing window. Bedroom Three, having a sliding double glazed door opening to the Side Porch/Conservatory, with access to the rear path. Bathroom, having a five-piece suite comprising of a shower, panelled bath, wash hand basin, WC, and bidet.

Outside

Sees the property situated on a corner plot, having lawns to the front and side with some mature shrubs, hardstanding area which could be used as a seating area, together with a concrete drive providing off street parking. Steps from both gardens lead down to the second drive and garage. There is access off Brockwell Lane onto a further concrete drive which provides additional parking for two cars and leads to the Integral Tandem Garage and Basement Area, which spans the full depth and width of the property. Accessed by an electric roller door and having light, power, housing the electric/gas meters, gas boiler and workings for the solar water heating.

Notice

The purchaser will be required to pay to Auction House the sum of £350 plus VAT (£420 inc VAT) on exchange of contracts for the auction searches.

Council Tax Band

F

Energy Efficiency Rating (EPC)

Current Rating D

Local Authority

Chesterfield Borough Council

Solicitors

Kieran Clarke Green, 36 Clarence Road, Chesterfield, S40 1XB, Ref: Joanne Ross, Tel: 01246 211006

Important Notice to Prospective Buyers:

We draw your attention to the Special Conditions of Sale within the Legal Pack, referring to other charges in addition to the purchase price which may become payable. Such costs may include Search Fees, reimbursement of Sellers costs and Legal Fees, and Transfer Fees amongst others.

Additional Fees

Buyer's Premium - 1% of the purchase price plus VAT (1.2% inc VAT), payable on completion.

Administration Charge - £2340 inc VAT, payable on exchange of contracts.

Disbursements - Please see the legal pack for any disbursements listed that may become payable by the purchaser on completion.

View Larger Map

Disclaimer: The map preview provided above is for general guidance only and may not accurately reflect the exact location or surrounding buildings. Prospective buyers and interested parties are strongly advised to independently verify the precise location and surroundings before bidding.