For Sale By Auction | 18:30, 06 February 2025 | Lot 21

27, 27A and 27B, The Square, Kenilworth, Warwickshire CV8 1EF

Sold £395,000

  • Retail Property (high street)

Call the team on 024 7652 7789 for more information

Auction Date

Thu 06/02/2025

Auction Time

18:30

Auction Venue

Village Hotel, Dolomite Avenue, Coventry, CV4 9GZ

** SOLD AT AUCTION - £395,000 ** Unique investment opportunity - Retail unit plus 2 x flats over 3 floors with a current rent payable of £33,000 p.a. The property benefits from recently fitted double glazing and electrical upgrades to both shop and flats, plus new central heating systems to both flats. Mixed commercial and residential investment opportunity in the heart of Kenilworth. Located on the main high street running through the town. Potential for other options such as dividing and separating the units, subject to title and leases

LOCATION

Positioned on the right hand side of the main high street going towards Abbey End, just past Station Road.

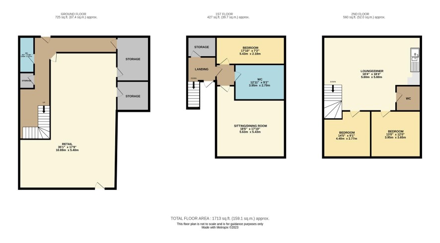
ACCOMMODATION

GROUND FLOOR Retail unit (Nail Salon) Approximately 725 sqft (67.5 sqm) Rear independent access for flats FIRST FLOOR - 27A Hallway: Lounge/kitchen: 18 ft 5 ft max x 17 ft 11 ft max Bedroom: 11 ft 11 in x 9 ft 6 in Bathroom: Balcony: SECOND FLOOR - 27B Lounge/kitchen: 18 ft 1 in max x 17 ft 11 in max Bedroom 1: 14 ft 3 in x 8 ft Bedroom 2: 14 ft 2 in x 9 t Bathroom:

OUTSIDE

Rear access for loading and access.

SERVICES AND HEATING

Mains gas, electricity, water and sewage are supplied to the property. (No tests have been carried out and we are therefore unable to confirm connections.) Gas central heating.

EPC RATING

Retail: D 27A: C 27B: C

COUNCIL TAX

27 B - A 27A - A

TENURE

Freehold subject to tenancies (2 x flats) and commercial Lease.

TENANCIES

Retail Lease: Term: 17/04/2021 - 16/04/2033 Rent payable: £975 p.c.m Assured Shorthold Tenancies: Flat 27a: Term: 12 months from 25/05/2024 Rent payable: £900 p.c.m Flat 27b: Term: 12 months from 17/01/2025 Rent payable: £875 p.c.m

ADDITIONAL COSTS

Administration Fee: £1,920 (£1,600 plus VAT) Buyer's Premium: £1,200 (£1,000 plus VAT) Please see the legal pack for any further costs.

Important Notice to Prospective Buyers:

We draw your attention to the Special Conditions of Sale within the Legal Pack, referring to other charges in addition to the purchase price which may become payable. Such costs may include Search Fees, reimbursement of Sellers costs and Legal Fees, and Transfer Fees amongst others.

Additional Fees

Administration Charge - these fees are included in the above sales particulars.

Disbursements - Please see the legal pack for any disbursements listed that may become payable by the purchaser on completion.

View Larger Map

Disclaimer: The map preview provided above is for general guidance only and may not accurately reflect the exact location or surrounding buildings. Prospective buyers and interested parties are strongly advised to independently verify the precise location and surroundings before bidding.