For Sale By Auction | 18:30, 18 September 2025 | Lot 5

174 Hickman Road, Galley Common, Nuneaton, Warwickshire CV10 9NG

*Guide | £290,000 - £320,000 (plus fees)

  • Cottage
  • 3 Bedrooms

Call the team on 024 7652 7789 for more information

Auction Date

Thu 18/09/2025

Auction Time

18:30

Auction Venue

Village Hotel, Dolomite Avenue, Coventry, CV4 9GZ

**This property is currently available – Please contact the Auctioneers to register your interest** Unique opportunity - Detached cottage with work shops and out buildings, providing potential for various uses or family home. 3 bedrooms plus loft room, benefiting from 2 reception rooms and conservatory. Garden to side and rear with parking for several vehicles. Requiring some modernisation.

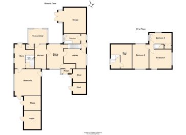
ACCOMMODATION

GROUND FLOOR Conservatory: 11 ft 4 in x 8 ft 3 in W.C.: Kitchen: 15 ft 4 in x 9 ft 5 in Lounge: 15 ft 5 in x 10 ft 11 in Dining room: 13 ft 6 in x 12 ft Bathroom: Hallway: SECOND FLOOR Bedroom 1: 15 ft 5 in x 10 ft 1 in Bedroom 2: 13 ft 8 in x 11 ft 11 in Bedroom 3 (inc W.C.): 14 ft x 10 ft 1 in max Loft room: 15 ft 5 in x 11 ft 5 in min, 14 ft 5 in max Access to rear:

OUTSIDE

Garden to the side. 2 x rear barn/storage (Garage used to have doors onto the road) Parking for several vehicles.

SERVICES AND HEATING

Mains gas, electricity, water and sewage are supplied to the property. (No tests have been carried out and we are therefore unable to confirm connections.) Gas central heating.

EPC RATING - E

COUNCIL TAX BAND - E

TENURE

Freehold with vacant possession.

ADDITIONAL COSTS

Administration Fee: £1,920 (£1,600 plus VAT) Please see the legal pack for any further costs.

Important Notice to Prospective Buyers:

We draw your attention to the Special Conditions of Sale within the Legal Pack, referring to other charges in addition to the purchase price which may become payable. Such costs may include Search Fees, reimbursement of Sellers costs and Legal Fees, and Transfer Fees amongst others.

Additional Fees

Administration Charge - these fees are included in the above sales particulars.

Disbursements - Please see the legal pack for any disbursements listed that may become payable by the purchaser on completion.

View Larger Map

Disclaimer: The map preview provided above is for general guidance only and may not accurately reflect the exact location or surrounding buildings. Prospective buyers and interested parties are strongly advised to independently verify the precise location and surroundings before bidding.