For Sale By Auction | 18:30, 05 February 2026 | Lot 6

14-16 Bull Street, Attleborough Green, Nuneaton, Warwickshire CV11 4JX

*Guide | £150,000 - £170,000 (plus fees)

  • Commercial Development

Call the team on 024 7652 7789 for more information

Auction Date

Thu 05/02/2026

Auction Time

18:30

Auction Venue

Village Hotel, Dolomite Avenue, Coventry, CV4 9GZ

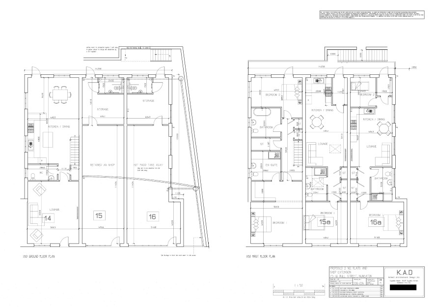
Unique development opportunity - Cottage and land, with planning permission for demolition of cottage and erecting of 2 bedroom house plus 2 retail units (including hot food) with 2 x flats above. Further land to rear with separate access. Site extends to 0.22 acres. Heart of Attleborough Green location, surrounded by shops and local amenities. Foundations started for the proposed development.

PROPOSED ACCOMMODATION

No 14: 2 bedroom cottage No 15: Ground floor retail First floor 1 bedroom flat No 16: Ground floor retail First floor 2 bedroom flat

SERVICES AND HEATING

Mains gas, electricity, water and sewage are supplied to the property. (No tests have been carried out and we are therefore unable to confirm connections.) Gas central heating.

PLANNING

Decision made on: 11 May 2023 "Retrospective consent for the demolition of 14-16 Bull Street and application for the erection of a two storey building to contain three residential dwellings (comprising of 2no. first floor flats and one two storey dwelling), one E use class shop unit and one hot food takeaway unit (Sui Generis) with associated external alterations (resubmission of approval 037971 following demolition of existing units)." Planning reference: 039502 For further information please contact: Nuneaton and Bedworth Borough Council

TENURE

Freehold with vacant possession.

ADDITIONAL COSTS

Administration Fee: £1,440 (£1,200 plus VAT) Buyers Premium: £1,800 (£1,500 plus VAT) Please see the legal pack for any further costs.

Important Notice to Prospective Buyers:

We draw your attention to the Special Conditions of Sale within the Legal Pack, referring to other charges in addition to the purchase price which may become payable. Such costs may include Search Fees, reimbursement of Sellers costs and Legal Fees, and Transfer Fees amongst others.

Additional Fees

Administration Charge - these fees are included in the above sales particulars.

Disbursements - Please see the legal pack for any disbursements listed that may become payable by the purchaser on completion.

View Larger Map

Disclaimer: The map preview provided above is for general guidance only and may not accurately reflect the exact location or surrounding buildings. Prospective buyers and interested parties are strongly advised to independently verify the precise location and surroundings before bidding.