For Sale By Auction | 6.30pm , 09 September 2020 | Lot 9

Darleys Arms, Porter Street, Corner Of William Street, Hull, HU1 2RE

Sold £115,000

  • Mixed Use
  • Tenure: Freehold. Vacant possession upon completion.

Call the team on 0845 400 9900 for more information

Auction Date

Wed 09/09/2020

Auction Time

6.30pm

Auction Venue

Online

A VACANT FORMER PUBLIC HOUSE WITH TREMENDOUS POTENTIAL FOR A VARIETY OF USES OR FURTHER DEVELOPMENT

This distinctive former public house building has been re-purposed and until recently used as a Youth and Performing Arts Centre. Now offered with vacant possession, the building has potential for a multitude of uses within Class D1, or possibly residential conversion or business use, subject to planning permission. The ground floor is mainly open plan with additional classroom and toilets, and former residential accommodation on the first floor has independent access, if required, Parking on site. Gas central heating is provided.

Tenure

Freehold. Vacant possession upon completion.

Situation

The property is less than 500m from Paragon Railway Station which is on the western fringe of Hull’s central retail and commercial area. It is a similar distance to Hull Marina which, along with the Old Town area of this City of Culture, is within a very accessible walking distance. The immediately adjacent properties are mainly local authority homes.

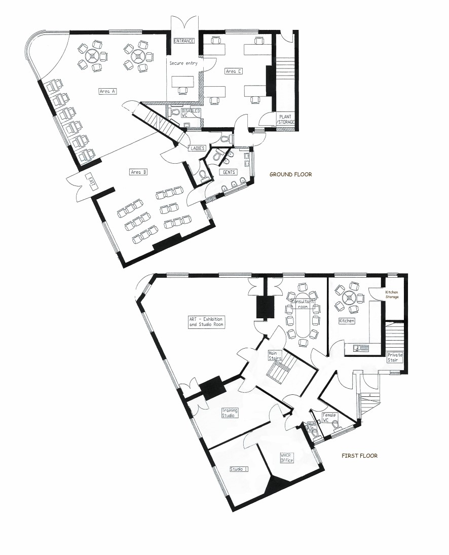
Accommodation

GROUND FLOOR: Main entrance, classroom (approx. 285 sq ft / 26.5 sq m), disabled WC, rear entrance, main hall (approx. 960 sq ft / 89 sq m) with separate entrance, ladies’ WCs, access to cellars (approx. 530 sq ft / 49 sq m), gents’ toilets. FIRST FLOOR: (Private entrance/stairs plus access from main hall), landing, kitchen, consultant room, main studio, training studio, studio one, office, male and female toilets, plant room. OUTSIDE: The plot extends to three sides of the building and is security fenced with vehicle entrance gates off William Street to a car park.

Viewing

By prior appointment with the auctioneers. Tel 01482 866844.

Services

All mains services are connected to the property. None of the services or installations have been tested by Auction House.

Energy Efficiency Rating (EPC)

Current Rating D

Services

Interested parties are invited to make their own enquiries to the relevant authorities as to the availability of the services.

Local Authority

Hull City Council

Solicitors

Rollits, Forsyth House, Alpha Court, Monks Cross, York, YO32 9WN, Ref: Douglas Oliver , Tel: 01904 688537

Offered in association with

Dee Atkinson and Harrison

Important Notice to Prospective Buyers:

We draw your attention to the Special Conditions of Sale within the Legal Pack, referring to other charges in addition to the purchase price which may become payable. Such costs may include Search Fees, reimbursement of Sellers costs and Legal Fees, and Transfer Fees amongst others.

Additional Fees

Buyer's Premium - The purchaser will be required to pay an buyers premium of £480 (£400 plus VAT) in addition to the purchase price of the property.

Administration Charge - The purchaser will be required to pay an administration charge of £750 (£625 plus VAT) in addition to the purchase price of the property.

Disbursements - Please see the legal pack for any disbursements listed that may become payable by the purchaser on completion.

Please see the legal pack for any disbursements listed that may become payable by the purchaser on completion.

View Larger Map

Disclaimer: The map preview provided above is for general guidance only and may not accurately reflect the exact location or surrounding buildings. Prospective buyers and interested parties are strongly advised to independently verify the precise location and surroundings before bidding.