For Sale By Auction | 3.00pm , 24 May 2023 | Lot 4

The Burton Arms, Bridlington Road, Burton Fleming, East Yorkshire, YO25 3PE

Sold £220,000

  • Pub
  • Tenure: Freehold

Call the team on 0845 400 9900 for more information

Auction Date

Wed 24/05/2023

Auction Time

3.00pm

Auction Venue

Online

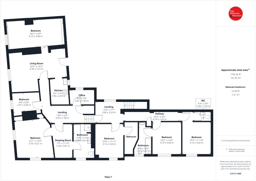
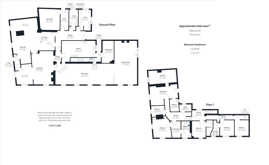
6 Bedroom Public house and Restaurant for Sale by Auction

The Burton Arms has been a popular local pub and eatery for many years and is now offered to the market as a vacant Free House that offers tremendous potential to re-establish and expand the business including the provision of tourist accommodation or to redevelop it for alternative use (subject to planning consent). The property benefits from two large and characterful bar areas, a restaurant, a function room and a commercial kitchen as well as the usual beer cellar, storage and toilet facilities. In addition to the excellent public hospitality areas, the first floor currently provides six-bedroom accommodation with three en-suite bathrooms, a living room and a kitchen. Externally there is ample off-street parking and a roof terrace. The pub has been a popular venue for drinking, dining, functions and live entertainment for many years.

Tenure

Freehold

Location

Burton Fleming is in close proximity of the East Coast towns of Filey (6 miles) Bridlington (7 miles) and Scarborough (13 miles) and is situated in the Gypsey Race valley at the heart of the Yorkshire Wolds. On the outskirts of the village is the 'Scenic View' caravan park which is a popular destination for seasonal and touring caravans. The village also has a post office.

Development Potential

Although providing an excellent opportunity for continued use as a pub and restaurant, the size of the building also provides scope for redevelopment to residential or tourist use (subject to planning consent). Interested parties should note the it is not registered as a community asset making the process of applying for a change of use less complicated.

Accommodation

The oil centrally heated and fully uPVC double glazed accommodation includes: Ground Floor: Public entrance, lounge bar, sports bar, restaurant, function room, rear car park entrance, ladies & gents WC, commercial kitchen, kitchen store room, beer cellar and store room. First Floor: Landing, six bedrooms, three en-suite bathrooms, en-suite WC, dressing room, Living room, kitchen, office and roof terrace. Outside: Tarmac parking area, bin stores, boiler cupboard, oil tank store.

Heating

The property benefits from oil fired central heating to radiators.

Double Glazing

The property benefits from sealed unit uPVC double glazing throughout.

VAT & Capital Allowances

VAT will not be payable on the purchase price. No capital allowances have been claimed so the purchaser can off-set these costs against their future profits.

Fixtures & Fittings

Many of the commercial fixtures and fittings are included in the sale including the commercial kitchen equipment, fitted bench seating, bar fittings, beer coolers, specialist function lighting, and CCTV. A full list of included fittings will be provided in the legal pack.

Business Rates

East Riding of Yorkshire Council shows that the property has a current rateable value of £2,750 however it currently enjoys 100% rural business rate relief.

Services

Mains water, electricity and drainage are connected to the property. Gas for cooking is provided from gas tanks.

Energy Efficiency Rating (EPC)

Current Rating D

Services

Interested parties are invited to make their own enquiries to the relevant authorities as to the availability of the services.

Local Authority

East Riding of Yorkshire Council

Solicitors

REDBIRD CONVEYANCING LIMITED, Office 5, Market Chambers, Market Place, Ramsbottom, BL0 9AJ., Ref: Pamela O’Brian., Tel: 01706 281016

Important Notice to Prospective Buyers:

We draw your attention to the Special Conditions of Sale within the Legal Pack, referring to other charges in addition to the purchase price which may become payable. Such costs may include Search Fees, reimbursement of Sellers costs and Legal Fees, and Transfer Fees amongst others.

Additional Fees

Buyer's Premium - Buyer's Premium - Buyer's premium of £480 (£400 plus VAT) in addition to the purchase price of the property.

Administration Charge - Administration Charge - Administration charge of 0.3% of the purchase price subject to a minimum of £750 (£625 plus VAT)

Disbursements - Disbursements - Please see the legal pack for any disbursements listed that may become payable by the purchaser on completion.

Please see the legal pack for any disbursements listed that may become payable by the purchaser on completion.

View Larger Map

Disclaimer: The map preview provided above is for general guidance only and may not accurately reflect the exact location or surrounding buildings. Prospective buyers and interested parties are strongly advised to independently verify the precise location and surroundings before bidding.