For Sale By Auction | 1.00 pm, 24 January 2024 | Lot 1

11 The Mount, Driffield, East Yorkshire, YO25 5JQ

Sold £162,500

  • Semi-Detached House
  • 3 Bedrooms
  • Tenure: Freehold

Call the team on 0845 400 9900 for more information

Auction Date

Wed 24/01/2024

Auction Time

1.00 pm

Auction Venue

Online

FOR SALE by ONLINE AUCTION on WEDNESDAY 24th JANUARY 2024, at 1pm A traditional three-bedroom semi-detached house in need of modernisation. Guide Price £140,000 - £150,000

Standing on a slightly elevated plot at the foot of the ever-popular Mount, close to Scarborough Road, this traditional three-bedroom semi is offered to the market as a complete renovation project. The property has been in the same ownership for decades and would now benefit from a comprehensive programme of modernisation. The property does benefit from uPVC double glazing but other than that, renovation works required include: rewiring, installation of central heating, replacement of kitchen and bathroom, redecoration and new floor coverings. The property is an excellent project for a competant DIY enthusiast to tackle and project manage skilled tradesmen where required.

Tenure

Freehold

Location

The Mount is located off Scarborough Road and the location of this property at the bottom of the road makes it very convenient for access to the Town Centre and the local schools. Driffield has a great variety of local shops, restaurants, and transport links including a railway station, a local market on a Thursday, and is within easy traveling distance of the east coast, Beverley and the Yorkshire Wolds.

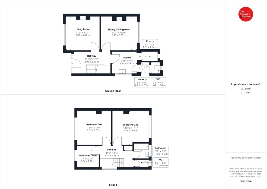
Accommodation

Ground Floor Entrance Porch Entrance Hall With wall mounted gas fired convector heater and understairs cupboard. Living Room With living flame gas fire (not tested) and TV aerial point. Sitting/Dining Room With a tiled open fireplace (not tested). Kitchen With sink, base units and a walk-in pantry. Rear Lobby WC With low-level WC. First Floor Landing With an airing cupboard housing the hot water tank. Bedroom One Bedroom Two Bedroom Three Bathroom With an encased enamel bath and pedestal wash hand basin. Wall mounted electric heater. Separate WC With low level WC. Outside To the front of the property is an area of garden and a private drive providing off street parking. To the rear is a good-sized garden which would also benefit from some TLC. Greenhouse.

Services

Understood to be connected to main electric, water, gas, and drainage but the services have not been tested.

Tenure

The property is Freehold and offered with the benefit of vacant possession upon completion.

Viewings

Strictly by appointment with the Auctioneers on 0845 400 9900

Method of Sale

The property will be offered for sale by online auction with bidding commencing at 12 noon on Monday 22nd January 2024 and closing on Wednesday 24th January at 1pm. For further legal information relating to this lot please log on to auctionhouse.co.uk/hullandeastyorkshire.

Conditions of Sale

The property will be sold subject to conditions of sale, copies of which will be available for inspection at the auctioneer’s offices, with the solicitors and on-line at auctionhouse.co.uk/hullandeastyorkshire prior to the date of the auction.

Guide Price

Guides are provided as an indication of each seller's minimum expectation. They are not necessarily figures which a property will sell for and may change at any time prior to the auction. Each property will be offered subject to a Reserve (a figure below which the Auctioneer cannot sell the property during the auction) which we expect will be set within the Guide Range or no more than 10% above a single figure Guide.

Online Bidding Information

If you want to bid on this property, copy and paste the link below into your URL bar or into a Google search and it will take you to a video that explains the process: youtube.com/watch?v=ImXr4HXR36c

Energy Efficiency Rating (EPC)

Current Rating D

Services

Interested parties are invited to make their own enquiries to the relevant authorities as to the availability of the services.

Local Authority

Council Tax is payable to the East Riding of Yorkshire Council. The property is shown on the Council Tax Property Bandings List in Valuation Band C.

Solicitors

Lundys Solicitors, 17 Exchange Street, Driffield. YO25 6LA, Ref: Mr David Lundy, Tel: 01377 252831

Offered in association with

Dee Atkinson and Harrison

Important Notice to Prospective Buyers:

We draw your attention to the Special Conditions of Sale within the Legal Pack, referring to other charges in addition to the purchase price which may become payable. Such costs may include Search Fees, reimbursement of Sellers costs and Legal Fees, and Transfer Fees amongst others.

Additional Fees

Administration Charge - The purchaser will be required to pay an administration charge of £750 (£625 plus VAT) and a buyer’s premium of £480 (£400 plus VAT) in addition to the purchase price of the property.

Disbursements - Please see the legal pack for any disbursements listed that may become payable by the purchaser on completion.

View Larger Map

Disclaimer: The map preview provided above is for general guidance only and may not accurately reflect the exact location or surrounding buildings. Prospective buyers and interested parties are strongly advised to independently verify the precise location and surroundings before bidding.