For Sale By Auction | 1.00 pm, 20 March 2024 | Lot 13

275 Moorhouse Road, Hull, HU5 5PJ

*Guide | £110,000 - £130,000 (plus fees)

  • End of Terrace House
  • 3 Bedrooms
  • Tenure: Freehold

Call the team on 0845 400 9900 for more information

Auction Date

Wed 20/03/2024

Auction Time

1.00 pm

Auction Venue

Online

A large three-bedroom end terrace house on a corner plot with a part completed side and rear extension and overall renovation.

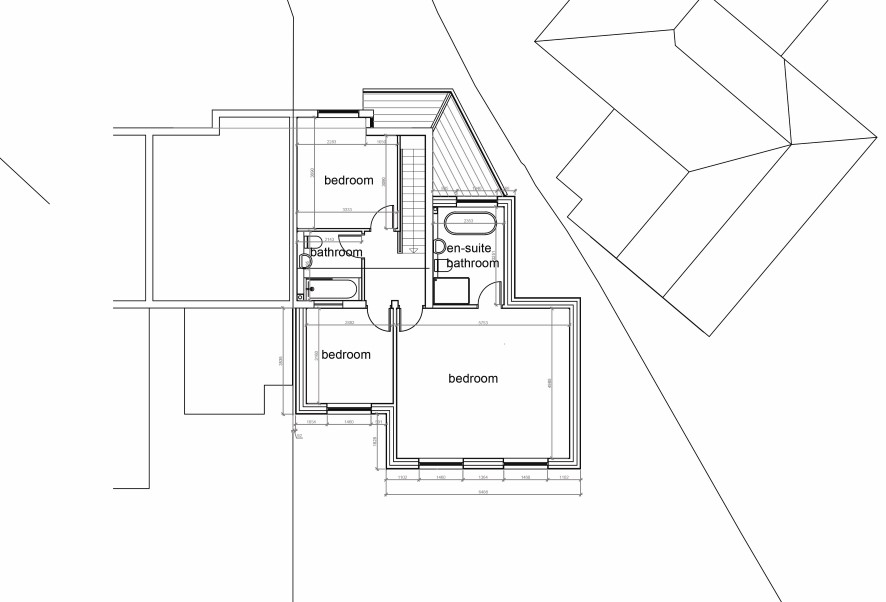
Standing on a large corner plot, this end of terrace house has been extended to the rear and side to create the shell of what will be a large family house. A change in the circumstances of the current owner means it is offered to the market as an unfinished project that offers developers and DIY enthusiasts an opportunity to complete the project to their own choice of finish. Construction of the extension and interior remodelling has been completed to a stage where it is secure and waterproof. First fix wiring has been done on the ground floor and second fix wiring to the first floor as well as some plastering. Upon completion, the property will provide three-bedroom accommodation with an en-suite dressing room and bathroom to the master bedroom, a family bathroom, a living kitchen with bifold doors to the garden, a utility room and a separate living room. Construction of a double garage accessed from a 10-foot to the rear has also been started.

Tenure

Freehold

Location

Moorhouse Road is located close to Willerby Road, which is approximately 4 miles West of Kingston upon Hull centre and approximately 8 miles from the historic market town of Beverley. Motorway access can be located via the A63/M62, with further trunk routes located over the Humber Bridge. Willerby Road has good primary schools; There are a range of shopping facilities in Willerby including Waitrose, Aldi, Lidl, Iceland and other retail outlets. Anlaby retail park is within close proximity offering a further range of amenities.

Accommodation

Upon completion of works, the property will offer the following accommodation: Ground floor Entrance Hall, Living Room, Living Kitchen with bifold doors to t he garden, Utility Room. First Floor Landing, Three bedrooms including a Master Suite with dressing room and en-suite bathroom, family bathroom. Outside The property stands on an extremely large corner plot with a small front off-street parking area and a large rear garden that enjoys a read 10-foot access. Construction of a large detached double garage has also been started. Agents Note The internal layout of the property varies slightly on the first floor from the architects drawing provided.

Services

Understood to be connected to main electric, water, gas, and drainage but the services have not been tested.

Tenure

The property is Freehold and offered with the benefit of vacant possession upon completion

Viewings

Strictly by appointment with the Auctioneers on 0845 400 9900

Legal Pack

A legal pack has been requested from the vendors solicitor and will be made available online as soon as it is received. You can register to receive an email notification when the pack is available by going to auctionhouse.co.uk/hullandeastyorkshire and clicking on the property you are interested in. On the property detail page you will see a red ‘LEGAL PACK’ button which you should click on and it will take you to the registration page.

Method of Sale

The property will be offered for sale by online auction with bidding commencing at 12 noon on Monday 18th March 2024 and closing on Wednesday 20th March at 1.00pm. For further legal information relating to this lot please log on to auctionhouse.co.uk/hullandeastyorkshire.

Condition of Sale

The property will be sold subject to conditions of sale, copies of which will be available for inspection at the auctioneer’s offices, with the solicitors and on-line at auctionhouse.co.uk/hullandeastyorkshire prior to the date of the auction.

Guide Price

Guides are provided as an indication of each seller's minimum expectation. They are not necessarily figures which a property will sell for and may change at any time prior to the auction. Each property will be offered subject to a Reserve (a figure below which the Auctioneer cannot sell the property during the auction) which we expect will be set within the Guide Range or no more than 10% above a single figure Guide.

Online Bidding

If you want to bid on this property, copy and paste the link below into your URL bar or into a Google search and it will take you to a video that explains the process: youtube.com/watch?v=ImXr4HXR36c

Services

Interested parties are invited to make their own enquiries to the relevant authorities as to the availability of the services.

Local Authority

Council Tax is payable to the Hull City Council. The property is shown on the Council Tax Property Bandings List in Valuation Band A.

Solicitors

Wilkin Chapman, The Hall, Lairgate, Beverley, East Yorkshire, HU17 8HL, Ref: Caroline Fletcher-Shaw, Tel: 01482 398 398

Offered in association with

Dee Atkinson & Harrison

Important Notice to Prospective Buyers:

We draw your attention to the Special Conditions of Sale within the Legal Pack, referring to other charges in addition to the purchase price which may become payable. Such costs may include Search Fees, reimbursement of Sellers costs and Legal Fees, and Transfer Fees amongst others.

Additional Fees

Administration Charge - The purchaser will be required to pay an administration charge of £900 (£750 plus VAT) and a buyer’s premium of £600 (£500 plus VAT) in addition to the purchase price of the property.

Disbursements - Please see the legal pack for any disbursements listed that may become payable by the purchaser on completion.

View Larger Map

Disclaimer: The map preview provided above is for general guidance only and may not accurately reflect the exact location or surrounding buildings. Prospective buyers and interested parties are strongly advised to independently verify the precise location and surroundings before bidding.