For Sale By Auction | 1.00 pm, 22 May 2024 | Lot 20

6 Chestnut Avenue, Montrose Street, Hull, HU8 7RX

Sold £44,000

  • End of Terrace House
  • 2 Bedrooms
  • Tenure: Freehold

Call the team on 0845 400 9900 for more information

Auction Date

Wed 22/05/2024

Auction Time

1.00 pm

Auction Venue

Online

FOR SALE by ONLINE AUCTION on WEDNESDAY, 22nd MAY 2024, at 1:00 pm - GUIDE PRICE £35,000 A two-bedroom end terrace house in need of some modernisation. ***360 VIRTUAL VIEWING AVAILABLE BEFORE MAKING A PHYSICAL VIEWING***

This appealing two-double-bedroom end terraced property is offered as a potential investment property or renovation project. The property has been re-roofed and benefits from uPVC double glazing however it does require a degree of modernisation and refurbishment which would include the installation of a central heating system.

Tenure

Freehold

Location

Montrose Street is close to James Reckitt Avenue and is particularly handy for access into the city centre in one direction and the hustle and bustle of Holderness Road in another.

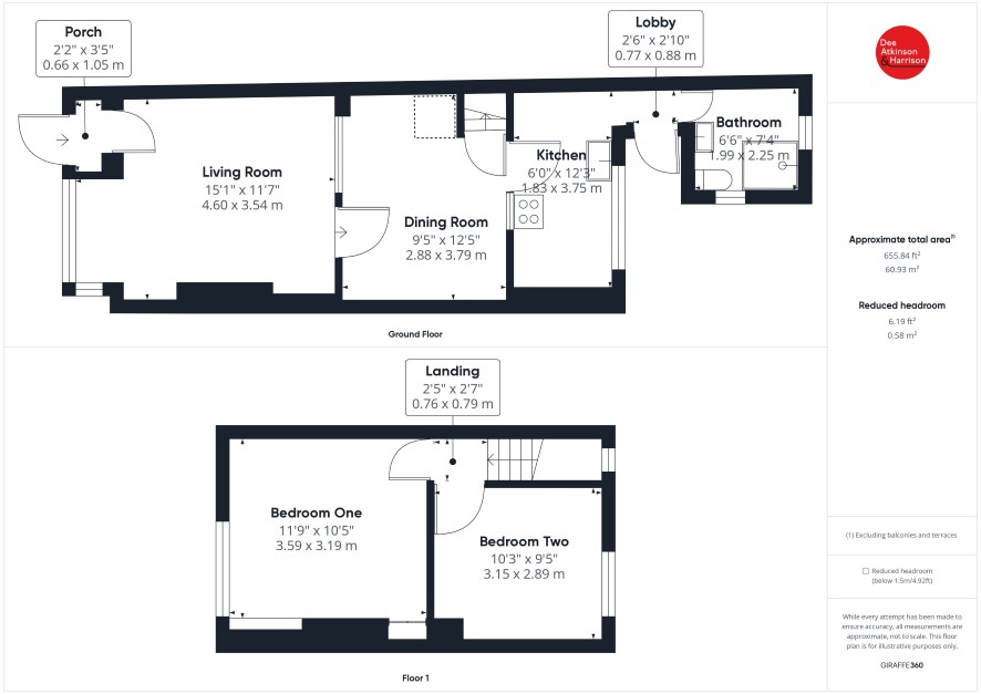
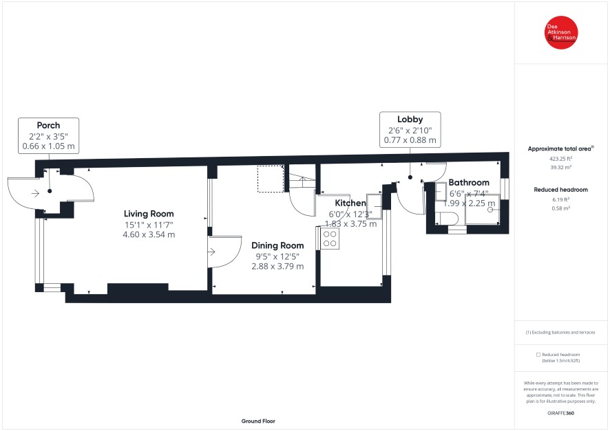
Accommodation

Entrance Porch:- Approach from the front through a double-glazed entrance door that leads into a useful entrance porch. From here a door leads through to the: Living Room With a double-glazed bay window that faces the front, gas fire set in a brick fireplace, TV aerial point and door leading through to the: Dining Room With an enclosed staircase leading off and a glazed interior window taking borrowed light from the Living room and kitchen. Kitchen Fitted with an arrangement of modern base and wall mounted cabinets comprising cupboards and drawers with complementing laminated work surfaces and tiled splashbacks. Inset stainless steel sink unit, gas cooker point and plumbing for an automatic washing machine. Double glazed window to the rear aspect. Rear Lobby With uPVC rear entrance door. Shower Room With double-glazed windows to the rear and side. With an electric shower and a curtain to the tiled shower area, wash hand basin and low flush WC. Tiled floor. First Floor Landing A small central landing area where doors lead off to the two bedrooms. Bedroom One With a double-glazed window that faces the front. Bedroom Two With a double-glazed window that faces the rear. Outside To the front of the property is a small forecourt area, from which pedestrian access is provided to the front door. Rear Courtyard The rear of the property is an enclosed courtyard area for seating and wheelie bin storage accessed via a rear pedestrian gate.

Services

Understood to be connected to mains electric, water and drainage but the services have not been tested.

Tenure

The property is Freehold with vacant possession upon completion.

Joint Agent

Reeds Rains, 508 Holderness Road, Hull, HU9 3DS Tel: 01482 709980

Viewings

Strictly by appointment with the Auctioneers on 0845 400 9900 or the joint agents 01482 709980

Method of Sale

The property will be offered for sale by online auction with bidding commencing at 12 noon on Monday 20th May 2024 and closing on Wednesday 22nd May 2024 at 1 pm. For further legal information relating to this lot please log on to auctionhouse.co.uk/hullandeastyorkshire.

Conditions of Sale

The property will be sold subject to conditions of sale, copies of which will be available for inspection at the auctioneer’s offices, with the solicitors and on-line at auctionhouse.co.uk/hullandeastyorkshire prior to the date of the auction.

Guide Price

Guides are provided as an indication of each sellers minimum expectation. They are not necessarily figures which a property will sell for and may change at any time prior to the auction. Each property will be offered subject to a Reserve (a figure below which the Auctioneer cannot sell the property during the auction) which we expect will be set within the Guide Range or no more than 10% above a single figure Guide.

Online Bidding

If you want to bid on this property, copy and paste the link below into your URL bar or into a Google search and it will take you to a video that explains the process: youtube.com/watch?v=ImXr4HXR36c

Services

Interested parties are invited to make their own enquiries to the relevant authorities as to the availability of the services.

Local Authority

Council Tax is payable to the Hull City Council. The property is shown on the Council Tax Property Bandings List in Valuation Band 'A'

Solicitors

Williamsons Solicitors

Offered in association with

Reeds Rains, 508 Holderness Road, Hull, HU9 3DS Tel: 01482 709980

Important Notice to Prospective Buyers:

We draw your attention to the Special Conditions of Sale within the Legal Pack, referring to other charges in addition to the purchase price which may become payable. Such costs may include Search Fees, reimbursement of Sellers costs and Legal Fees, and Transfer Fees amongst others.

Additional Fees

Administration Charge - The purchaser will be required to pay an administration charge of £1,200 (£1,000 plus VAT) and a buyer’s premium of £1,800 (£1,500 plus VAT) in addition to the purchase price of the property.

Disbursements - Please see the legal pack for any disbursements listed that may become payable by the purchaser on completion.

View Larger Map

Disclaimer: The map preview provided above is for general guidance only and may not accurately reflect the exact location or surrounding buildings. Prospective buyers and interested parties are strongly advised to independently verify the precise location and surroundings before bidding.