For Sale By Auction | 1.00 pm, 22 May 2024 | Lot 23

567 Holderness Road, Hull, HU8 9AA

Sold £90,000

  • Terraced House
  • 6 Bedrooms
  • Tenure: Freehold

Call the team on 0845 400 9900 for more information

Auction Date

Wed 22/05/2024

Auction Time

1.00 pm

Auction Venue

Online

FOR SALE by ONLINE AUCTION on WEDNESDAY, 22nd May 2024, at 1:00 pm - GUIDE PRICE £85,000 A three storey 6 bedroom house with planning consent for conversion to 5 studio apartments

This substantial three-storey property is located in the popular and busy Holderness Road area and offers developers and investors an opportunity to redevelop the existing residential dwelling into a mixed-use property or five studio apartments. The current planning consent for this expires on 13 May 2024. The existing property is partly double glazed and benefits from gas central heating. There are also two large buildings to the rear which have been used for storage/workshops. It is estimated that five studio apartments could generate an annual income in excess of £18,000.

Tenure

Freehold

Location

Situated on Holderness Road, in close proximity to local amenities including supermarket, pubs, bank and ATM, takeways, bingo hall and bus stops on a major bus route to the city centre.

Accommodation

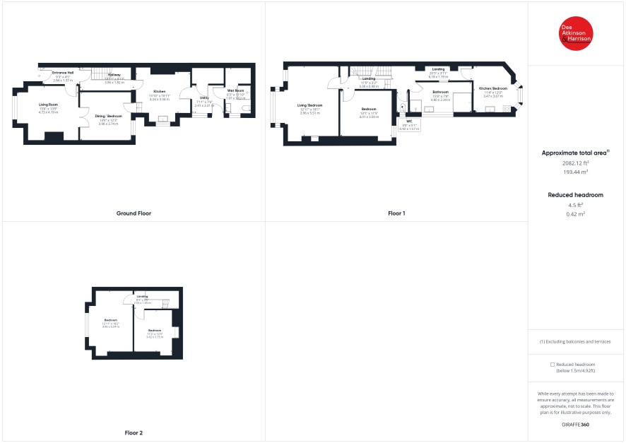
Ground Floor Entrance Porch Entrance Hall With staircase leading of moulded cornices and double panel radiator. Living Room With Laminate flooring, bay window, electric fire in a traditional fireplace, moulded cornices to the ceiling. Dining Room/Bedroom With radiator. Kitchen With base units, stainless steel sink and gas cooker point. Rear Hall/Utility With large storage cupboard housing the hot water cylinder. Wetroom With walk in shower, low level WC and wash hand basin. First Floor Landing With staircase to the second floor and two single radiators. Living Room/Bedroom With gas fire, two double radiators and bay window. Bedroom With double radiator Bathroom With corner bath, shower and vanity was hand basin. Two single radiators. Separate WC With low-level WC. Kitchen/Bedroom It is fitted with a range of units, a stainless steel sink, a gas cooker point, and a wall-mounted gas central heating boiler. Fire escape window. Second Floor Landing Bedroom With double radiator. Bedroom With double radiator. Outside To the rear of the property are two large outbuildings and an enclosed yard.

Planning Consent

Planning consent on the property was approved in May 2021 for 1. Change of use of six bedroom dwelling into five studio apartments and 2. Erection of two single storey rear extensions following demolition of existing outbuildings and external staircase. This permission is set to expire on 13th May 2024 (prior to the auction). Full details of the proposed alteration can be found on the Hull City council public access website using the reference number 21/00049/FULL.

Viewing

Strictly by appointment with the auctioneers on 0845 400 9900

Tenure

Freehold with vacant possession upon completion.

Services

Mains water, gas, electricity and drainage are connected. The services have not been tested.

Method of Sale

The property will be offered for sale by online auction with bidding commencing at 12.00 pm on Monday 20th May 2024 and closing on Wednesday 22nd May at 1.00pm. To register to bid and further legal information relating to this lot please go to auctionhouse.co.uk/hullandeastyorkshire.

Conditions of Sale

The property will be sold subject to conditions of sale, copies of which will be available for inspection at the auctioneer’s offices, with the solicitors and online at auctionhouse.co.uk/hullandeastyorkshire, before the date of the auction.

Guide Price

Guides are provided as an indication of each seller's minimum expectation. They are not necessarily figures which a property will sell for and may change at any time before the auction. Each property will be offered subject to a Reserve (a figure below which the Auctioneer cannot sell the property during the auction), which we expect will be set within the Guide Range or no more than 10% above a single figure Guide.

Online Bidding

If you want to bid on this property, copy and paste the link below into your URL bar or into a Google search and it will take you to a video that explains the process: youtube.com/watch?v=ImXr4HXR36c To register to bid please visit : auctionhouse.co.uk/hullandeastyorkshire

Energy Efficiency Rating (EPC)

Current Rating D

Services

Interested parties are invited to make their own enquiries to the relevant authorities as to the availability of the services.

Local Authority

Council Tax is payable to Hull City Council. The property is currently listed as being in council tax band A

Solicitors

Murray Hills Solicitors, 368 Holderness Road, Hull, HU9 3DL , Ref: Ann Fletcher, Tel: 01482 309222 ann.fletcher@murrayhillssolicitors.co.uk

Offered in association with

Dee Atkinson and Harrison

Important Notice to Prospective Buyers:

We draw your attention to the Special Conditions of Sale within the Legal Pack, referring to other charges in addition to the purchase price which may become payable. Such costs may include Search Fees, reimbursement of Sellers costs and Legal Fees, and Transfer Fees amongst others.

Additional Fees

Administration Charge - The purchaser will be required to pay an administration charge of £900 (£750 plus VAT) subject to a minimum of 0.3% of the sale price including VAT and a buyer’s premium of £600 (£500 plus VAT) in addition to the purchase price of the property.

Disbursements - Please see the legal pack for any disbursements listed that may become payable by the purchaser on completion.

View Larger Map

Disclaimer: The map preview provided above is for general guidance only and may not accurately reflect the exact location or surrounding buildings. Prospective buyers and interested parties are strongly advised to independently verify the precise location and surroundings before bidding.