For Sale By Auction | 1.00 pm, 24 July 2024 | Lot 3

229 Perth Street West, Hull, HU5 3TZ

*Guide | £150,000 (plus fees)

  • Flat
  • Tenure: Freehold

Call the team on 0845 400 9900 for more information

Auction Date

Wed 24/07/2024

Auction Time

1.00 pm

Auction Venue

Online

FOR SALE by ONLINE AUCTION on WEDNESDAY 24th JULY 2024, at 1:00 pm - GUIDE PRICE £200,000 An excellent residential development opportunity with full planning for nine one-bedroom apartments and off street parking.

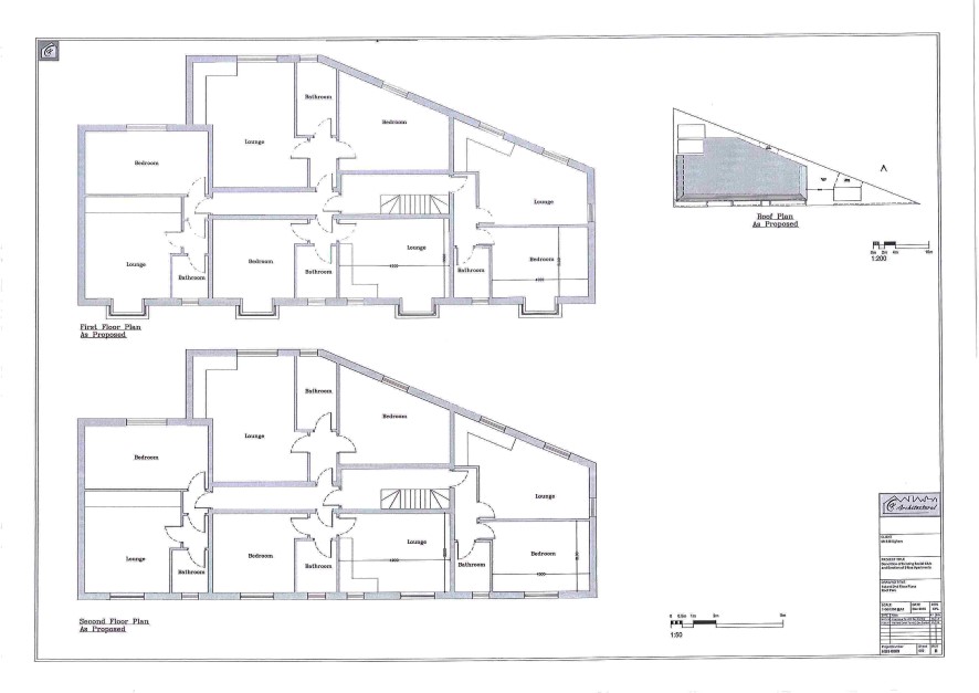
The site has obtained planning consent for the erection of a two-storey residential development consisting of nine 1-bed apartments with nine under-croft car parking spaces. The former Perth Street Privates members club has been demolished and work has commenced whereby the steel frame has been erected on the site. Some beam and block floors and brickwork have also been installed. Plans are available upon request, or the planning information is available via the Hull City Council Planning Portal using website ref No. : 16/01727/FULL.

Tenure

Freehold

Location

This plot is located in the very popular 'Avenues' residential area of Hull, close to all local amenities, including shops, public transport, bars, bistros and restaurants down Chanterlands Avenue and further along Newland and Princes Avenue. Convenient travelling distance for Hull city centre.

Planning Consent

Application No. 16/01727/FULL for the Erection of a 2-storey building with accommodation in roofspace to provide 9 Apartments with associated parking and bin storage was approved on 16th June 2017. Copies of the Notice of Decision and plans are available from the Hull City Council planning department public access site using the Application reference No.

Services

Mains water, electricity, gas and drainage are available in the area. Purchasers should make their own inquiries into the exact location and cost of connection thereto.

Tenure

Freehold with vacant possession upon completion.

Viewings

Strictly by appointment with the auctioneers on 0845 400 9900

Method of Sale

The property will be offered for sale by online auction with bidding commencing at 12.00 pm on Monday 22nd July 2024 and closing on Wednesday 24th July at 1.00pm. To register to bid and further legal information relating to this lot please go to auctionhouse.co.uk/hullandeastyorkshire.

Conditions of Sale

The property will be sold subject to conditions of sale, copies of which will be available for inspection at the auctioneer’s offices, with the solicitors and online at auctionhouse.co.uk/hullandeastyorkshire, before the date of the auction.

Guide Price

Guides are provided as an indication of each seller's minimum expectation. They are not necessarily figures that a property will sell for and may change at any time before the auction. Each property will be offered subject to a Reserve (a figure below which the Auctioneer cannot sell the property during the auction), which we expect will be set within the Guide Range or no more than 10% above a single-figure Guide.

Online Bidding Information

If you want to bid on this property, copy and paste the link below into your URL bar or into a Google search, and it will take you to a video that explains the process: youtube.com/watch?v=ImXr4HXR36c

Legal Pack

A legal pack has been requested from the vendors solicitor and will be made available online as soon as it is received. You can register to receive an email notification when the pack is available by going to auctionhouse.co.uk/hullandeastyorkshire and clicking on the property you are interested in. On the property detail page you will see a red ‘LEGAL PACK’ button which you should click on and it will take you to the registration page.

Services

Interested parties are invited to make their own enquiries to the relevant authorities as to the availability of the services.

Local Authority

Hull City Council

Solicitors

Nexa Law, joy.savill@nexa.law, Ref: Joy Savill, Tel: 03300 242 420

Offered in association with

Dee Atkinson and Harrison

Important Notice to Prospective Buyers:

We draw your attention to the Special Conditions of Sale within the Legal Pack, referring to other charges in addition to the purchase price which may become payable. Such costs may include Search Fees, reimbursement of Sellers costs and Legal Fees, and Transfer Fees amongst others.

Additional Fees

Administration Charge - The purchaser will be required to pay an administration charge of £900 (£750 plus VAT) subject to a minimum of 0.3% of the sale price including VAT and a buyer’s premium of £600 (£500 plus VAT) in addition to the purchase price of the property.

Disbursements - Please see the legal pack for any disbursements listed that may become payable by the purchaser on completion.

View Larger Map

Disclaimer: The map preview provided above is for general guidance only and may not accurately reflect the exact location or surrounding buildings. Prospective buyers and interested parties are strongly advised to independently verify the precise location and surroundings before bidding.