Sold Prior | Lot 17

4 Morley Villas, Sherburn Street, Hull, HU9 2LD

Sold Prior

  • End of Terrace House
  • 3 Bedrooms
  • Tenure: Freehold

Call the team on 0845 400 9900 for more information

Auction Date

Wed 24/07/2024

Auction Time

1.00 pm

Auction Venue

Online

FOR SALE by ONLINE AUCTION on WEDNESDAY, 24th JULY 2024, at 1:00 pm - GUIDE PRICE £35,000

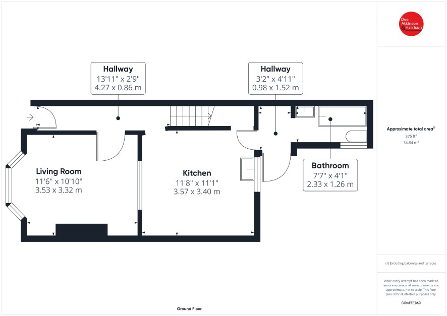
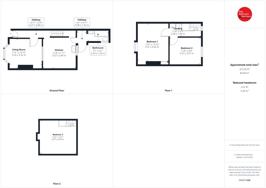
Located only a few stones from the vibrant Holderness Road shopping area, this three-bedroom end-of-terrace house presents an excellent refurbishment project for investors and anyone looking to renovate and flip a property for profit. The property benefits from gas-fired central heating to radiators and uPVC double glazing but is now in need of some general renovation and TLC. Briefly, the accommodation comprises a living room, large kitchen and bathroom to the ground floor, two good sized bedrooms on the first floor and a large attic bedroom on the second floor.

Tenure

Freehold

Location

Situated in this ideal location close to the range of shops and amenities of Holderness Road and within close proximity to a range of schools.

Accommodation

Ground Floor Entrance Hall With uPVC front entrance door, stairs to first floor and a radiator. Lounge Front aspect double glazed bay window, traditional fire place with electric fire and ornate surround, radiator and cornices to the ceiling. Kitchen With a rear double-glazed window, fitted with a range of wall and base units, space for a freestanding oven, plumbing for a washing machine and a wall mounted gas central heating boiler. Lobby Bathroom With encased bath, wash hand basin and wc, tiling to walls and a radiator. First Floor Landing Bedroom One Front aspect double glazed window and radiator. Bedroom Two Rear aspect double glazed window and radiator. Second floor Accessed via fixed staircase leads to Bedroom Three Front aspect double glazed window and radiator. Front Garden A railinged front garden with a path to the front door. Rear Garden Enclosed courtyard-style rear garden with a hardstanding surface and walls to the perimeter.

Tenure

Freehold with vacant possession upon completion.

Services

Mains water, electricity, gas & drainage are believed to be connected. None of the services have been tested.

Viewings

Strictly by appointment through our Beverley Office on 01482 866844.

Method of Sale

The property will be offered for sale by online auction with bidding commencing at 12 noon on Monday 22nd July 2024 and closing on Wednesday 24th July at 1.00pm. For further legal information relating to this lot please log on to auctionhouse.co.uk/hullandeastyorkshire.

Conditions of Sale

The property will be sold subject to conditions of sale, copies of which will be available for inspection at the auctioneer’s offices, with the solicitors and on-line at auctionhouse.co.uk/hullandeastyorkshire prior to the date of the auction.

Guide Price

Guides are provided as an indication of each seller's minimum expectation. They are not necessarily figures which a property will sell for and may change at any time prior to the auction. Each property will be offered subject to a Reserve (a figure below which the Auctioneer cannot sell the property during the auction) which we expect will be set within the Guide Range or no more than 10% above a single figure Guide.

Energy Efficiency Rating (EPC)

Current Rating E

Services

Interested parties are invited to make their own enquiries to the relevant authorities as to the availability of the services.

Local Authority

Council Tax is payable to Hull City Council. The flats are shown in the Council Tax Property Bandings List in Valuation Band A

Solicitors

Lundys Solicitors, 17 Exchange Street, Driffield., Ref: Mr David Lundy

Offered in association with

Dee Atkinson and Harrison

Important Notice to Prospective Buyers:

We draw your attention to the Special Conditions of Sale within the Legal Pack, referring to other charges in addition to the purchase price which may become payable. Such costs may include Search Fees, reimbursement of Sellers costs and Legal Fees, and Transfer Fees amongst others.

Additional Fees

Administration Charge - The purchaser will be required to pay an administration charge of £900 (£750 plus VAT) and a buyer’s premium of £600 (£500 + VAT) in addition to the purchase price of the property.

Disbursements - Please see the legal pack for any disbursements listed that may become payable by the purchaser on completion.

View Larger Map

Disclaimer: The map preview provided above is for general guidance only and may not accurately reflect the exact location or surrounding buildings. Prospective buyers and interested parties are strongly advised to independently verify the precise location and surroundings before bidding.