For Sale By Auction | 1.00 pm, 24 July 2024 | Lot 11

Plimsoll's Ship Hotel, Witham, Hull, East Yorkshire, HU9 1AT

*Guide | £90,000 (plus fees)

  • Pub
  • 4 Bedrooms
  • Tenure: Freehold

Call the team on 0845 400 9900 for more information

Auction Date

Wed 24/07/2024

Auction Time

1.00 pm

Auction Venue

Online

A vacant freehold public house with a four-bedroom self-contained apartment over.

The property is situated on the south side of Witham, less than half a mile to the east of Hull city centre. It fronts Witham in a predominantly commercial area, giving an opportunity to service the surrounding workforce at lunchtime as well as late afternoon/early evening. The public house premises are detached, traditional brick built to three-storey height, plus a cellar, on a fully developed site. The property provides a ground floor bar with rear customer WCs. There is a barrel drop within a separate front entrance that can access the upper floor living accommodation independently as well as having an internal door connecting to the bar. The upper floors provide spacious 4 (possibly 6) bed living accommodation. The property is gas centrally heated and partly double glazed but is in need of some refurbishment/upgrading.

Tenure

Freehold

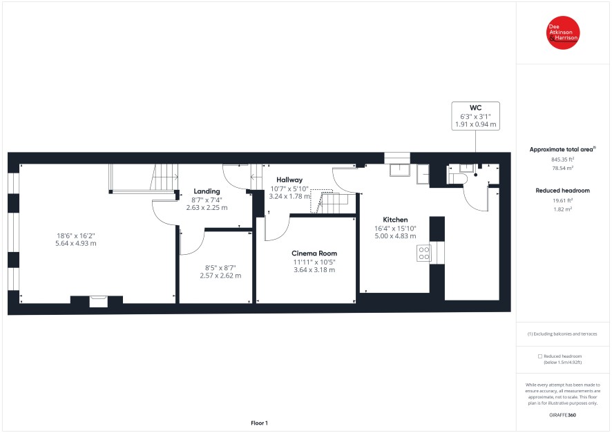
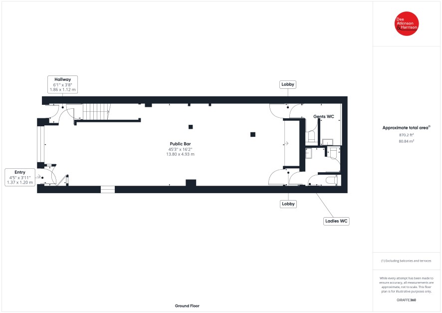
ACCOMMODATION

Ground Floor General width 4.9 m (16’) x overall depth 16.6 m (54’ 6”) Bar and Customer WCs 75.0 sq m (810 sq ft) Separate Entrance to Living Accommodation (with cellar access). Cellar not inspected First Floor 77.5 sq m (834 sq ft) Comprising: Landing, Living Room, Store/office, cinema room, kitchen & breakfast area, WC. Second Floor 67.5 sq m (726 sq ft) Landing, Four Bedrooms, Bathroom with WC.

Business Rates & Council Tax

The property is described as ‘Public House & Premises’ at £1,500 RV. Under current legislation, a qualifying small business will benefit from full rate relief. We understand the living accommodation is assessed in Band ‘A’ for Council Tax purposes.

Viewing

Strictly by appointment with the agents on 01482 866844.

Tenure

The property is understood to be freehold with vacant possession upon completion.

VAT

We understand the property is elected for VAT and that VAT is payable on the hammer price.

Services

Interested parties are invited to make their own enquiries to the relevant authorities as to the availability of the services.

Local Authority

Hull City Council

Solicitors

Gosschalks, Ref: Adam Riley, Tel: 01482 590249

Important Notice to Prospective Buyers:

We draw your attention to the Special Conditions of Sale within the Legal Pack, referring to other charges in addition to the purchase price which may become payable. Such costs may include Search Fees, reimbursement of Sellers costs and Legal Fees, and Transfer Fees amongst others.

Additional Fees

Buyer's Premium - The purchaser will be required to pay a buyer’s premium of £600 (£500 plus VAT) in addition to the purchase price of the property.

Administration Charge - The purchaser will be required to pay an administration charge of £900 (£750 plus VAT) subject to a minimum of 0.3% of the sale price including VAT in addition to the purchase price of the property.

Disbursements - Please see the legal pack for any disbursements listed that may become payable by the purchaser on completion.

Please see the legal pack for any disbursements listed that may become payable by the purchaser on completion.

View Larger Map

Disclaimer: The map preview provided above is for general guidance only and may not accurately reflect the exact location or surrounding buildings. Prospective buyers and interested parties are strongly advised to independently verify the precise location and surroundings before bidding.