For Sale By Auction | 1.00pm, 29 January 2025 | Lot 1

401 Spring Bank West, Hull, East Yorkshire, HU3 1LD

Sold

  • Terraced House
  • 4 Bedrooms
  • Tenure: Freehold with vacant possession upon completion.

Call the team on 0845 400 9900 for more information

Auction Date

Wed 29/01/2025

Auction Time

1.00pm

Auction Venue

Online

A four-bedroom mid-terrace house requiring some TLC.

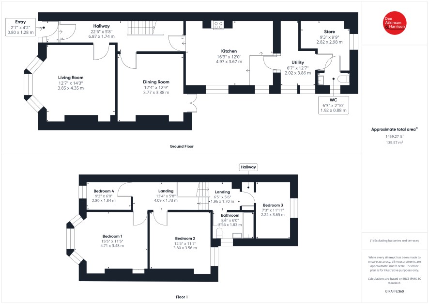
This traditional bay-fronted mid-terrace property offers an excellent opportunity for anyone looking for a renovation project or starting or expanding their investment portfolio. The property needs a comprehensive refurbishment programme, but it provides a generous layout that could be converted to create two flats (subject to planning consent). The accommodation includes a living and dining room, a kitchen, a utility, a store and a WC on the ground floor. Upstairs are four bedrooms and a bathroom. Outside, the property benefits from off-street parking and a garden to the rear. uPVC double glazing and gas central heating are installed.

Tenure

Freehold with vacant possession upon completion.

Location

Situated within walking distance of the local shopping area of Chanterlands Avenue and the popular bars and eateries of Princess Avenue, the property is ideally located with good access routes to Hull City Centre.

Accommodation

Ground Floor: Entrance Hall, Living Room, Dining Room, Kitchen, Utility, Store, WC. First Floor: Landing, four bedrooms, bathroom. Outside: Front forecourt garden, rear garden and off-street parking.

Agents Note

The property is to be sold as seen with contents remaining in situ.

Council Tax

Council Tax is payable to the Hull City Council. From online enquiries we are advised that the property is shown in the Council Tax Property Bandings List in Valuation Band B.

Services

There is no central heating in the property. There are mains gas, water and electric.

Viewings

Strictly by appointment through the Auctioneer on 0845 400 9900.

Method of Sale

The property will be offered for sale by online auction with bidding commencing at 12.00 pm on Monday 27th January 2025 and closing on Wednesday 29th January at 1.00pm. For further legal information relating to this lot please go to auctionhouse.co.uk/hullandeastyorkshire.

Conditions of Sale

The property will be sold subject to conditions of sale, copies of which will be available for inspection at the auctioneer’s offices, with the solicitors and on-line at auctionhouse.co.uk/hullandeastyorkshire prior to the date of the auction.

Guide Price

Guides are provided as an indication of each seller's minimum expectation. They are not necessarily figures which a property will sell for and may change at any time prior to the auction. Each property will be offered subject to a Reserve (a figure below which the Auctioneer cannot sell the property during the auction) which we expect will be set within the Guide Range or no more than 10% above a single figure Guide.

Energy Efficiency Rating (EPC)

Current Rating G

Services

Interested parties are invited to make their own enquiries to the relevant authorities as to the availability of the services.

Local Authority

Hull City Council

Solicitors

Williamsons Solicitors, 45 Lowgate, Hull, East Yorkshire, HU1 1EN, Ref: Jenny Holloway, Tel: 01482 323 697

Important Notice to Prospective Buyers:

We draw your attention to the Special Conditions of Sale within the Legal Pack, referring to other charges in addition to the purchase price which may become payable. Such costs may include Search Fees, reimbursement of Sellers costs and Legal Fees, and Transfer Fees amongst others.

Additional Fees

Buyer's Premium - The purchaser will be required to pay a buyer’s premium of £600 (£500 + VAT) in addition to the purchase price of the property.

Administration Charge - The purchaser will be required to pay an administration charge of £900 (£750 plus VAT) in addition to the purchase price of the property.

Disbursements - Please see the legal pack for any disbursements listed that may become payable by the purchaser on completion.

Please see the legal pack for any disbursements listed that may become payable by the purchaser on completion.

View Larger Map

Disclaimer: The map preview provided above is for general guidance only and may not accurately reflect the exact location or surrounding buildings. Prospective buyers and interested parties are strongly advised to independently verify the precise location and surroundings before bidding.