For Sale By Auction | 1.00pm, 29 January 2025 | Lot 8

Rose Cottage, Main Street, Foston on the Wolds, East Yorkshire, YO25 8BJ

*Guide | £200,000 - £225,000 (plus fees)

  • Detached House
  • 2 Bedrooms
  • Tenure: Freehold

Call the team on 0845 400 9900 for more information

Auction Date

Wed 29/01/2025

Auction Time

1.00pm

Auction Venue

Online

POST AUCTION OFFERS INVITED - A two-bedroom detached cottage offering potential for extension and improvement together with a large purpose built workshop.

Rose Cottage is an individual detached cottage that offers great potential for alteration/extension and comes with a superb purpose-built workshop that will appeal to a wide variety of hobbyists, particularly anyone who likes to tinker with vehicles. The rather modest cottage benefits from a modern kitchen fitted in 2021 and a bathroom fitted in 2019; however, the first-floor accommodation currently has restricted headroom, which interested parties may wish to try to alter, and an opportunity also exists for the large adjoining shed to be converted into living accommodation (subject to any necessary consent). The property is single-glazed, and although it has oil-fired heating, the boiler needs replacing. The workshop can only be used for non-commercial purposes.

Tenure

Freehold

Location

Rose Cottage is located within the sought-after and unspoiled conservation Village of Foston-on-the-Wolds. The Village lies 6.5 miles To the east of the Market Town of Driffield, 13 miles from the east coast Town of Bridlington, and 16 miles to the northeast of Beverley. The City of Hull, with direct rail connections to London, is less than 40 minutes drive away. Foston is a picturesque and unspoiled Wolds village located in an excellent position for access to the surrounding Towns and Cities.

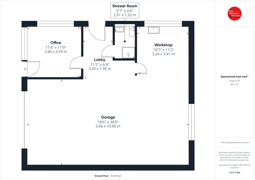
Accommodation

Ground Floor: Porch, living room with dining area, kitchen, lobby, bathroom with WC. First Floor: Landing, two double bedrooms. Outside: Adjoining the property to the rear is a large domestic shed that is considered to provide an opportunity for extension to the existing accommodation under permitted development rules. A private drive provides access to the rear, where the large purpose-built workshop is located. The workshop is understood to have been erected between 2012 and 2014 with planning secured under permitted development in 2011. The steel framed and insulated building has power and water connected and also has a hot water supply from an independent water heater. The main entrance is from an electric roller shutter door and there are also two further personal doors.

Fencing Liability

The purchaser of the adjacent building plot will be required to erect a 1.8m close-boarded fence between points A & B, as shown on the included plan, within 2 months of completion of the purchase.

Services

Mains water and electricity are connected. Drainage is to a septic tank. None of the services have been tested.

Tenure

Freehold with vacant possession upon completion.

Viewing

Strictly by appointment with the sole agents.

Method of Sale

The property will be offered for sale by online auction with bidding commencing at 12.00 pm on Monday 27th January 2025 and closing on Wednesday 29th January at 1.00pm. For further legal information relating to this lot, please go to auctionhouse.co.uk/hullandeastyorkshire.

Conditions of Sale

The property will be sold subject to conditions of sale, copies of which will be available for inspection at the auctioneer’s offices, with the solicitors and online at auctionhouse.co.uk/hullandeastyorkshire prior to the date of the auction.

Services

Interested parties are invited to make their own enquiries to the relevant authorities as to the availability of the services.

Local Authority

East Riding of Yorkshire Council

Solicitors

Williamsons Solicitors, Ref: Samantha Pollard, Tel: 01482 323697

Important Notice to Prospective Buyers:

We draw your attention to the Special Conditions of Sale within the Legal Pack, referring to other charges in addition to the purchase price which may become payable. Such costs may include Search Fees, reimbursement of Sellers costs and Legal Fees, and Transfer Fees amongst others.

Additional Fees

Buyer's Premium - The purchaser will be required to pay a buyer’s premium of £600 (£500 + VAT) in addition to the purchase price of the property.

Administration Charge - The purchaser will be required to pay an administration charge of £900 (£750 plus VAT) in addition to the purchase price of the property.

Disbursements - Please see the legal pack for any disbursements listed that may become payable by the purchaser on completion.

View Larger Map

Disclaimer: The map preview provided above is for general guidance only and may not accurately reflect the exact location or surrounding buildings. Prospective buyers and interested parties are strongly advised to independently verify the precise location and surroundings before bidding.