For Sale By Auction | 13:00, 28 May 2025 | Lot 3A

Haltemprice Priory Farmhouse, Abbey Lane, Hull, Hull HU10 6FX

Sold £256,000

  • Detached House
  • 6 Bedrooms
  • Tenure: Freehold

Call the team on 0845 400 9900 for more information

Auction Date

Wed 28/05/2025

Auction Time

13:00

Auction Venue

Regional Online

A detached Grade II Listed Farmhouse partly refurbished and located in open countryside to the North of Willerby and Cottingham.

Unique in terms of its character and location, this property comprises a Grade II* Listed Building in an open countryside setting, which includes its own surrounding grounds of just over an acre. The former farmhouse has origins as an Augustinian Priory and is therefore of historical importance, as a result of which the site is also a Scheduled Ancient Monument. The building became derelict but has been significantly restored by the current owner, working in conjunction with Historic England to take the property out of an 'at-risk' category. The bulk of the rebuilding and restoration has been completed, but a change of circumstances for the vendor means it is now offered to the market as a partially completed restoration and building project, allowing the purchaser the opportunity to complete the project to their own choice of finish. Planning approval to rebuild and extend the property to create a unique and outstanding dwelling of over 3,800 square feet was granted in October 2018, and restoration commenced in 2020. The land to the north of the Priory is SSSI-protected and is home to an abundance of wildlife. LocationThe Priory stands amidst open farmland that separates the settlements of Cottingham and Willerby within the Haltemprice area, about four miles northwest of the centre of Hull. It is accessed from Willerby, Abbey Lane, being a gated unmade track heading northeast from the dead end of The Parkway highway, the property is about 700 yards along the lane on the left. The village of Willerby is well situated for access to both Hull City Centre and the A63/M62 motorway link, Humber Bridge and the town of Beverley. Good local shopping, including a Waitrose supermarket, public transportation and local schooling, are all provided in the vicinity.

Tenure

Freehold

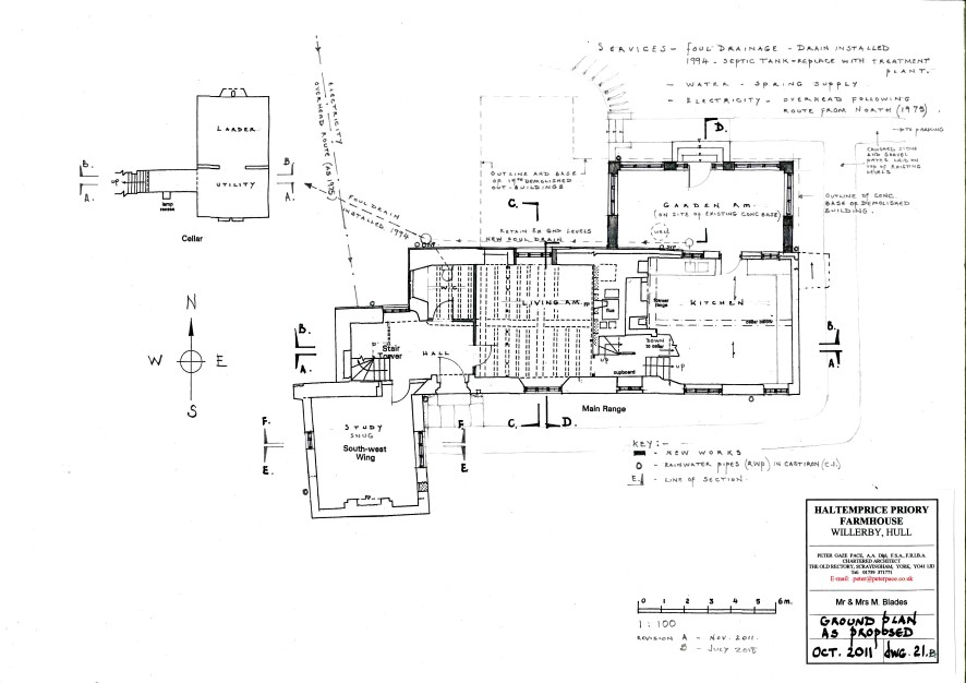
Ground Floor:

Entrance Hall, WC, Snug, Living Room, Kitchen, Garden Room.

Basement:

Vaulted Cellar

First Floor

: Landing, three double bedrooms, dressing room and three bathrooms.

Second Floor

: Landing, three further double bedrooms, two en-suite bathrooms.

Outside:

Single garage, extensive gardens (not landscaped) and a pond.

Services

: Mains water and electricity are believed to be connected but have not been tested. Drainage is to a septic tank.

Agents Note

Some of the restoration work has involved the installation of some temporary windows and doors to protect the fabric of the building during restoration and to provide added security. It may, therefore, be necessary to replace these to comply with the planning and listed building consent. The building does not currently have a kitchen fitted. As such, it will not be suitable for a standard mortgage and is only considered appropriate for cash buyers until restoration progresses. Planning ConsentFull planning permission was granted on 29 October 2018 for reconstruction and extension to the former dilapidated Grade II* farmhouse to form a new dwelling. East Riding of Yorkshire Council ref no DC/18/02063/PLF/WESTES. Copies of the consent and approved plans are available on the Council planning portal.

Tenure

Freehold with vacant possession upon completion.

Viewing

Strictly by appointment with the auctioneer on 0845 400 9900

Council Tax

Council Tax is payable to the East Riding of Yorkshire Council. Online enquiry lists the property in the Council Tax Property Bandings List in Valuation Band G

Energy Efficiency Rating (EPC)

Current Rating E

Services

Interested parties are invited to make their own enquiries to the relevant authorities as to the availability of the services.

Local Authority

East Riding of Yorkshire Council

Important Notice to Prospective Buyers:

We draw your attention to the Special Conditions of Sale within the Legal Pack, referring to other charges in addition to the purchase price which may become payable. Such costs may include Search Fees, reimbursement of Sellers costs and Legal Fees, and Transfer Fees amongst others.

Additional Fees

Buyer's Premium - £720 inc VAT payable on exchange of contracts.

Administration Charge - 0.3% inc VAT of the purchase price, subject to a minimum of £900 inc VAT, payable on exchange of contracts.

Disbursements - Please see the legal pack for any disbursements listed that may become payable by the purchaser on completion.

View Larger Map

Disclaimer: The map preview provided above is for general guidance only and may not accurately reflect the exact location or surrounding buildings. Prospective buyers and interested parties are strongly advised to independently verify the precise location and surroundings before bidding.