Withdrawn | Lot 18

7 Blands Cliff, Scarborough, North Yorkshire YO11 1NR

Withdrawn

  • Residential Development
  • 13 Bedrooms
  • Tenure: Freehold

Call the team on 0845 400 9900 for more information

Auction Date

Wed 28/05/2025

Auction Time

13:00

Auction Venue

Regional Online

A vacant five-storey mid-terrace house with planning consent for conversion to a 13 bed HMO all with en-suite shower rooms. When renovated it is estimated that a gross income of between £80,000 and £90,000 pa could be achieved.

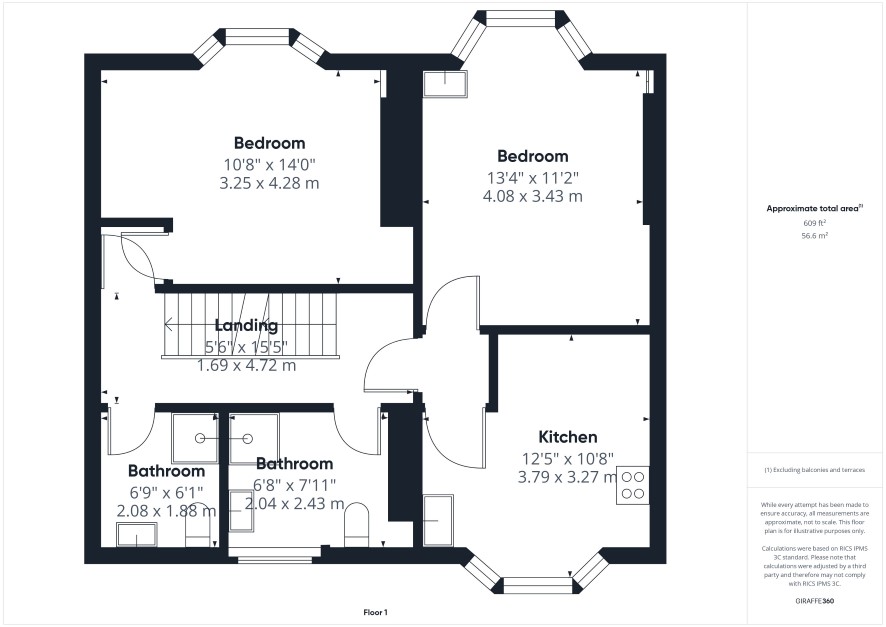
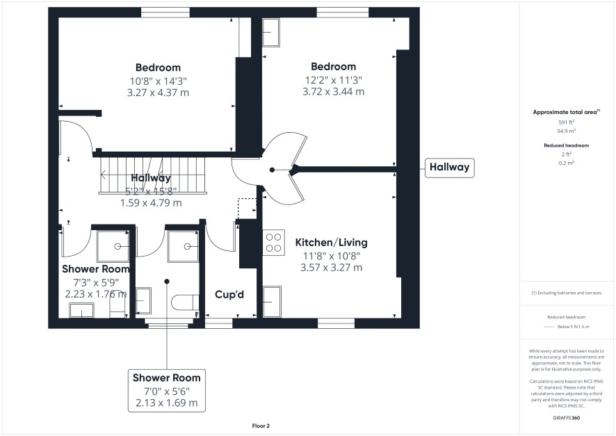
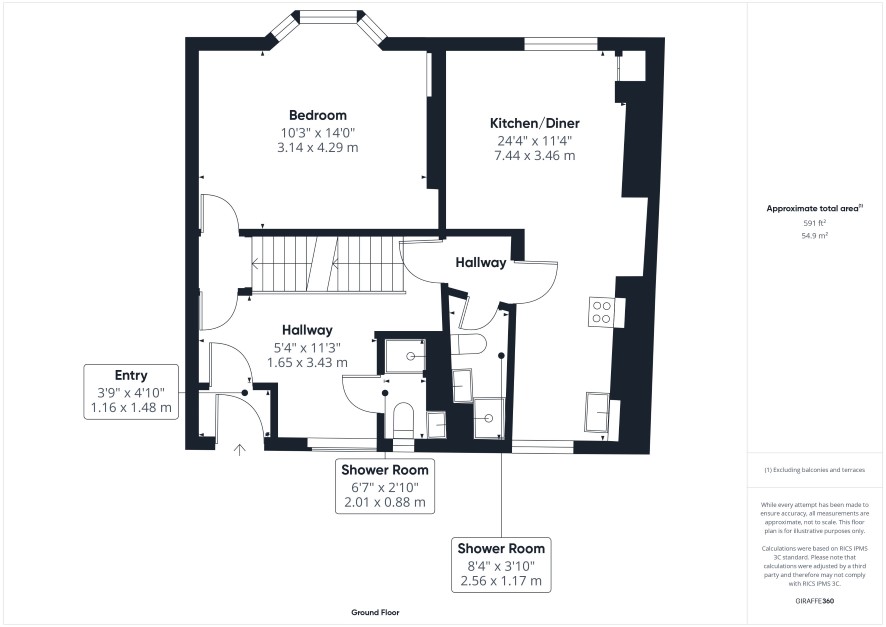
A vacant five-storey mid-terrace house with planning consent for conversion to a 13 bed HMO all with en-suite shower rooms. It is anticipated that when the conversion work is completed the property will be capable of generating a gross income of between £80,000 and £90,000pa. As such, it will no doubt be of interest to both local and national investors. The property occupies a good position in the centre of Blands Cliff, boasting spectacular rear views of the South Bay. This former B&B has huge potential for any investor looking to provide holiday lets or to run as a large HMO. The floorplans provided show the current layout and the proposed layout that has been approved. Planning consent was granted on 17th Deceber 2024 for Conversion of vacant visitor accommodation to a 13 bedroom HMO (Sui Generis). Location Scarborough is an established commercial, tourist and retail centre, approximately 40 miles east of York with a population of in the region of 81,000 people and a district population of around 110,000 persons (Sources: ONS and Focus). The town is adjacent to the North Yorkshire Moors National Park and is one of the principal resorts on the north east coast attracting an estimated 7 million visitors a year. Blands Cliff lies at the bottom end of Scarborough town centre and links the centre of Scarborough to the South Bay and is a mixed use locality with a number of commercial operators within the vicinity. Scarborough's famous South Bay is directly accessed from the subject premises.

Tenure

Freehold

Accommodation

The property comprises a mid-terrace brick building with nine bedrooms, six shower rooms, five kitchens, and a former commercial premises all arranged over lower ground, ground, first, second, third, and fourth floors. It is held under a pitched and slated roof. The property also benefits from a generous rear garden.

Services

Mains Water, electricity and drainage are believed to be connected to the property but have not been tested.

Tenure

We understand the property to be Freehold.

Council Tax

Council Tax is payable to the Scarborough District Council. Online enquiry lists the property in the Council Tax Property Bandings List in Valuation Band A

Viewings

Strictly by appointment with the auctioneers on 0845 400 9900.

Energy Efficiency Rating (EPC)

Current Rating D (64)

Services

Interested parties are invited to make their own enquiries to the relevant authorities as to the availability of the services.

Local Authority

Scarborough Borough Council

Important Notice to Prospective Buyers:

We draw your attention to the Special Conditions of Sale within the Legal Pack, referring to other charges in addition to the purchase price which may become payable. Such costs may include Search Fees, reimbursement of Sellers costs and Legal Fees, and Transfer Fees amongst others.

Additional Fees

Buyer's Premium - £720 inc VAT payable on exchange of contracts.

Administration Charge - £900 inc VAT payable on exchange of contracts.

Disbursements - Please see the legal pack for any disbursements listed that may become payable by the purchaser on completion.

View Larger Map

Disclaimer: The map preview provided above is for general guidance only and may not accurately reflect the exact location or surrounding buildings. Prospective buyers and interested parties are strongly advised to independently verify the precise location and surroundings before bidding.