For Sale By Auction | 13:00, 30 July 2025 | Lot 9

104 Goddard Avenue, Hull, Hull HU5 2BA

Sold £101,000

  • End of Terrace House
  • 3 Bedrooms
  • Tenure: See Legal Pack

Call the team on 0845 400 9900 for more information

Auction Date

Wed 30/07/2025

Auction Time

13:00

Auction Venue

Regional Online

A three-bedroom mid-terrace house in a popular area close to the university.

Offered to the market with vacant possession, this three-bedroom mid-terrace property. The property offers UPVC double glazing and gas central heating. The property briefly comprises an entrance hall, living room, dining room, kitchen and family bathroom to the ground floor, with three bedrooms to the first floor and a yard to the rear. This mid-terrace house provides an opportunity for investors to purchase a property in a popular location just off the vibrant Newland Avenue district. The next door house is mid-terraced and sold in 2020 for £125,000.

Tenure

See Legal Pack

Location

Goddard Avenue is a very popular area and is handy for Hull University. The area boasts excellent amenities, including shops, bars, bistros and restaurants and is also a convenient travelling distance from Hull city centre.

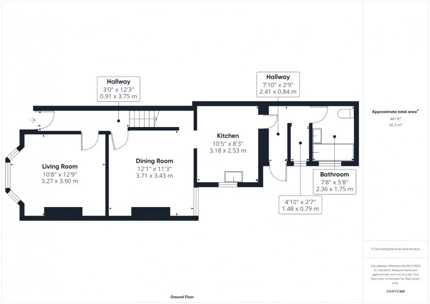
Ground Floor:

Entrance hall, living room, dining room, kitchen, bathroom.

First Floor:

Landing leading to three bedrooms.

Outside:

Front walled forecourt and rear yard.

Tenure:

Freehold. Please refer to the legal pack for full details.Services:Mains water, electricity, gas & drainage are believed to be connected. None of the services have been tested.Council Tax:Council Tax is payable to Hull City Council. The house is shown in the Council Tax Property Bandings List in Valuation Band A.

Solicitors:

James Cranshaw of V CLaw Ltd,56 Tithebarn Street, Liverpool, Merseyside, L2 2SR

Method of Sale

The property will be offered for sale by online auction with bidding commencing at 12 noon on Monday 28th July 2025 and closing on Wednesday 30th July 2025 at 1.00pm. For further legal information relating to this lot please log on to auctionhouse.co.uk/hullandeastyorkshire.

Conditions of Sale

The property will be sold subject to conditions of sale, copies of which will be available for inspection at the auctioneer’s offices, with the solicitors and on-line at auctionhouse.co.uk/hullandeastyorkshire prior to the date of the auction.The purchaser will be required to pay an administration charge of £900 (£750 plus VAT) and a buyer’s premium of 1.2% of the hammer price (1% plus VAT) subject to a minimum of £900 (£750 + VAT) in addition to the purchase price of the property.Guides are provided as an indication of each seller's minimum expectation. They are not necessarily figures which a property will sell for and may change at any time prior to the auction. Each property will be offered subject to a Reserve (a figure below which the Auctioneer cannot sell the property during the auction) which we expect will be set within the Guide Range or no more than 10% above a single figure Guide.Please see the legal pack for any disbursements listed that may become payable by the purchaser on completion.

Online bidding

If you want to bid on this property, copy and paste the link below into your URL bar or into a Google search and it will take you to a video that explains the process: youtube.com/watch?v=ImXr4HXR36c

Energy Efficiency Rating (EPC)

Current Rating E

Services

Interested parties are invited to make their own enquiries to the relevant authorities as to the availability of the services.

Local Authority

Hull City Council

Important Notice to Prospective Buyers:

We draw your attention to the Special Conditions of Sale within the Legal Pack, referring to other charges in addition to the purchase price which may become payable. Such costs may include Search Fees, reimbursement of Sellers costs and Legal Fees, and Transfer Fees amongst others.

Additional Fees

Buyer's Premium - The purchaser will be required to pay a buyer’s premium of 1.2% of the hammer price (1% plus VAT) subject to a minimum of £900 (£750 + VAT) in addition to the purchase price of the property.

Administration Charge - The purchaser will be required to pay an administration charge of £900 (£750 plus VAT) in addition to the purchase price of the property.

Disbursements - Please see the legal pack for any disbursements listed that may become payable by the purchaser on completion.

View Larger Map

Disclaimer: The map preview provided above is for general guidance only and may not accurately reflect the exact location or surrounding buildings. Prospective buyers and interested parties are strongly advised to independently verify the precise location and surroundings before bidding.