For Sale By Auction | 13:00, 30 July 2025 | Lot 11

Flat 7 Marine Court, Summerfield Road, Bridlington, East Riding of Yorkshire YO15 3LF

*Guide | £100,000 (plus fees)

  • Flat
  • 2 Bedrooms
  • Tenure: See Legal Pack

Call the team on 0845 400 9900 for more information

Auction Date

Wed 30/07/2025

Auction Time

13:00

Auction Venue

Regional Online

A two bedroom home first floor apartment on the South Side of Bridlington.

This two bedroom first floor apartment in the heart of Bridlington is ready to move into as it has been 'fully renovated by owners including new kitchen, carpets, heating and double glazing. This apartment creates the perfect opportunity for residential living, AST letting or holiday lets as there are no restrictions regarding pets or holiday lettings. The accommodation briefly comprises: Entrance Hall, Kitchen/Dining Area, Two Bedrooms and Bathroom. The property benefits from electric storage heaters and is UPVC double glazed.

Tenure

See Legal Pack

Location

Located on the South Side of Bridlington, this apartment is close to the beach, shops, pubs and restaurants. The Spa theatre is also a stone's throw away from the apartment on the sea front.

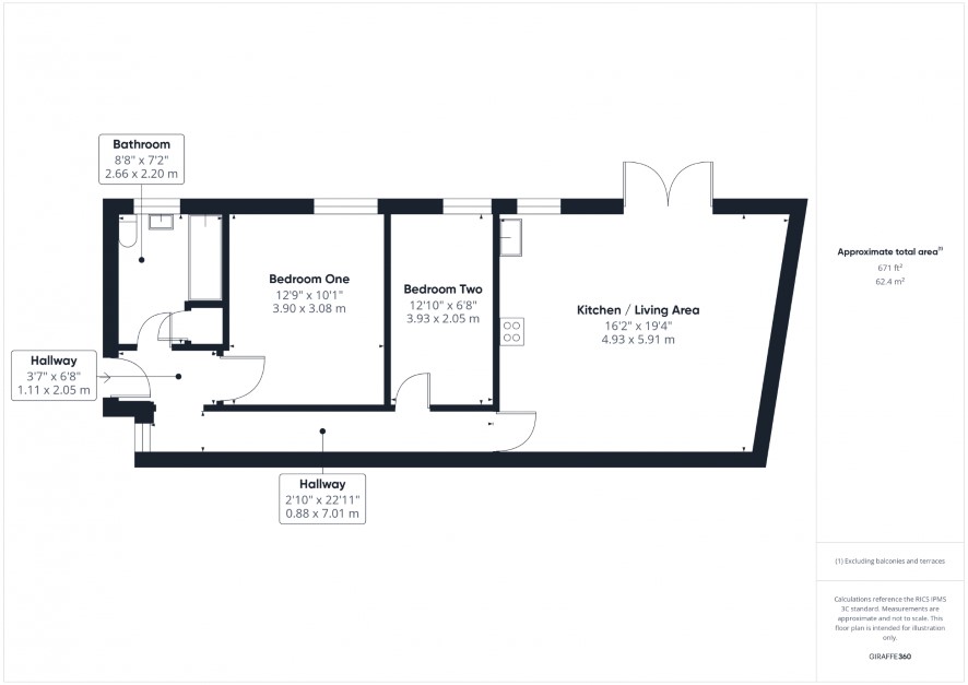
Entrance Hall

Kitchen/Dining Area - 16'2" x 19'4" (4.93 x 5.91 m)

Wall and base units, sink, electric oven and hob in kitchen area. Large living area with french doors to balcony.

Bedroom One - 12'9" x 10'1" (3.90 x 3.08 m)

Electric wall mounted heater.

Bedroom Two - 12'10" x 6'8" (3.93 x 2.05 m)

Electric wall mounted heater.

Bathroom - 8'8" x 7'2" (2.66 x 2.20 m)

Three piece bathroom suite.

Outside

Large secure enclosed first floor courtyard/balcony.

Tenure

See legal pack. Service charge of £55 per month. No ground rent.

EPC

D.

Council Tax

Band A payable to East Riding of Yorkshire Council.

Energy Efficiency Rating (EPC)

Current Rating D

Services

Interested parties are invited to make their own enquiries to the relevant authorities as to the availability of the services.

Local Authority

East Riding of Yorkshire Council

Important Notice to Prospective Buyers:

We draw your attention to the Special Conditions of Sale within the Legal Pack, referring to other charges in addition to the purchase price which may become payable. Such costs may include Search Fees, reimbursement of Sellers costs and Legal Fees, and Transfer Fees amongst others.

Additional Fees

Buyer's Premium - £720 inc VAT payable on exchange of contracts.

Administration Charge - 0.3% inc VAT of the purchase price, subject to a minimum of £900 inc VAT, payable on exchange of contracts.

Disbursements - Please see the legal pack for any disbursements listed that may become payable by the purchaser on completion.

View Larger Map

Disclaimer: The map preview provided above is for general guidance only and may not accurately reflect the exact location or surrounding buildings. Prospective buyers and interested parties are strongly advised to independently verify the precise location and surroundings before bidding.