For Sale By Auction | 13:00, 01 October 2025 | Lot 3

1 Blackhall Close, Kingswood, Hull, East Yorkshire, HU7 3HN

Sold After

  • Detached House
  • 4 Bedrooms
  • Tenure: Freehold

Call the team on 0845 400 9900 for more information

Auction Date

Wed 01/10/2025

Auction Time

13:00

Auction Venue

Regional Online

A detached four bedroom house in a popular residential area.

This four-bedroom detached house is in need of cosmetic improvement throughout. The property offers potential to investors and property renovators alike to create an excellent family home on a good sized plot. The accommodation comprises three reception rooms, kitchen, four bedrooms, family bathroom and a boarded and plastered out loft space (See Agents Note). The property benefits from double glazing and gas central heating.

Tenure

Freehold

Location

Situated on a corner plot in a quiet cul-de-sac location, the property is close to Kingswood Retail Park which offers a range of amenities, shops and transport links.

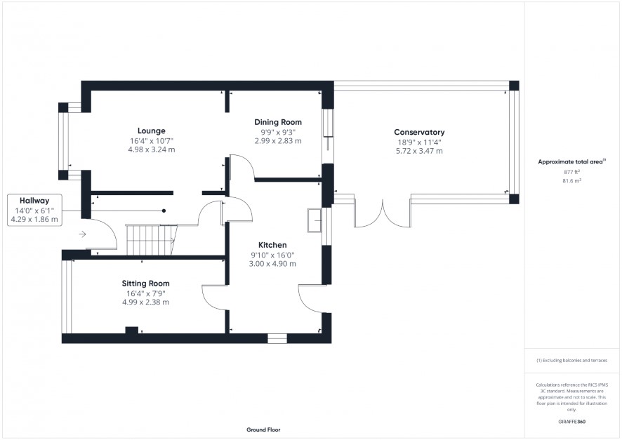
Ground Floor

: Entrance Hall, Living Room/Dining Area, Breakfast Room, Kitchen, WC

First Floor

: Central landing leading to four Bedrooms and a Bathroom.

Second Floor

: Loft space.

Agent's Note

: The loft space is approached from a fixed staircase, but it has restricted headspace, and we can't confirm whether the conversion was done with building regulation or planning approval. Potential purchasers should make their own investigations regarding this, as some lenders might refuse to lend because of this.

Council Tax

The property is a Band 'D' and Council Tax is payable to Hull City Council.

EPC

C.

Services

Understood to be connected to mains electricity, gas, water and drainage but the services have not been tested.

Tenure

Freehold.

Viewings

Strictly by appointment with the Auctioneers on 0845 400 9900

Energy Efficiency Rating (EPC)

Current Rating C

Services

Interested parties are invited to make their own enquiries to the relevant authorities as to the availability of the services.

Local Authority

Hull City Council

Important Notice to Prospective Buyers:

We draw your attention to the Special Conditions of Sale within the Legal Pack, referring to other charges in addition to the purchase price which may become payable. Such costs may include Search Fees, reimbursement of Sellers costs and Legal Fees, and Transfer Fees amongst others.

Additional Fees

Buyer's Premium - The purchaser will be required to pay a buyer’s premium of £1,560 (£1,300 + VAT) in addition to the purchase price of the property.

Administration Charge - The purchaser will be required to pay an administration charge of £1,200 (£1,000 plus VAT) in addition to the purchase price of the property.

Disbursements - Please see the legal pack for any disbursements listed that may become payable by the purchaser on completion.

View Larger Map

Disclaimer: The map preview provided above is for general guidance only and may not accurately reflect the exact location or surrounding buildings. Prospective buyers and interested parties are strongly advised to independently verify the precise location and surroundings before bidding.