Postponed | Lot 7

The Sandy Lane Hotel Residential Care Home, 33 Sands Lane, Bridlington, East Yorkshire, YO15 2JG

Postponed

  • Residential Development
  • Tenure: Freehold

Call the team on 0845 400 9900 for more information

Auction Date

Wed 01/10/2025

Auction Time

13:00

Auction Venue

Regional Online

Substantial former care home with Sea Views

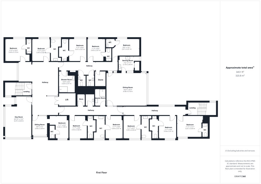
This substantial purpose-built former Retirement Home stands in one of Bridlington's most sought-after locations, enjoying sea views from many windows. Built in the 1960s, the four-storey building provides over 12,000 sq ft of accommodation, including six large communal lounges, two spacious dining rooms, a commercial kitchen, 29 single bedrooms with en-suite WC's, two large top-floor self-contained apartments, several offices, storage rooms and sluices, numerous communal bathrooms and WCs. The property occupies a site of over half an acre and includes ample off-street parking and three double garages. A large area of land that was previously the garden of the adjacent bungalow, is also included in the sale, which enhances the appeal of the property and presents additional opportunities for further redevelopment. The existing building also offers an opportunity to investors and developers to transform the property into luxury apartments; reinstatement as a care home; or transformation into a boutique hotel, (subject to necessary planning consent). Before deciding to sell, the vendors had plans drawn up for the alteration and extension of the upper floor accommodation to create two, two-bedroom Penthouse apartments.

Tenure

Freehold

Location

Sands Lane is a prime coastal location in Bridlington, just a stone's throw from Bridlington's North Beach and within comfortable walking distance of the Town centre amenities.

Accommodation

See floor plans for layout and location.

Services

All mains services are believed to be connected.

Tenure

Freehold with vacant possession upon completion.

Council Tax

The property is currently listed as being in Council Tax Band H. Council Tax is payable to the East Riding of Yorkshire Council.

Energy Performance Certificate

D(92)

Energy Efficiency Rating (EPC)

Current Rating D

Services

Interested parties are invited to make their own enquiries to the relevant authorities as to the availability of the services.

Local Authority

East Riding of Yorkshire Council

Solicitors

Andrew Jackson Solicitors, Foss Islands House, York, North Yorkshire, YO31 7UJ , Ref: FTAO Kirsty Barsby , Tel: 01904 563 134

Important Notice to Prospective Buyers:

We draw your attention to the Special Conditions of Sale within the Legal Pack, referring to other charges in addition to the purchase price which may become payable. Such costs may include Search Fees, reimbursement of Sellers costs and Legal Fees, and Transfer Fees amongst others.

Additional Fees

Buyer's Premium - £720 (£600 + VAT) in addition to the purchase price of the property.

Administration Charge - The purchaser will be required to pay an administration charge of 0.3% subject to a minimum of £900 (£750 plus VAT) in addition to the purchase price of the property.

Disbursements - Please see the legal pack for any disbursements listed that may become payable by the purchaser on completion.

Please see the legal pack for any disbursements listed that may become payable by the purchaser on completion.

View Larger Map

Disclaimer: The map preview provided above is for general guidance only and may not accurately reflect the exact location or surrounding buildings. Prospective buyers and interested parties are strongly advised to independently verify the precise location and surroundings before bidding.