For Sale By Auction | 1.00pm, 03 December 2025 | Lot TBC

The Cross Keys, Moor End, Holme-on-spalding-Moor, North Yorkshire, YO43 4DR

*Guide | £250,000 - £300,000 (plus fees)

  • Land
  • Tenure: Freehold.

Call the team on 0845 400 9900 for more information

Auction Date

Wed 03/12/2025

Auction Time

1.00pm

Auction Venue

Online

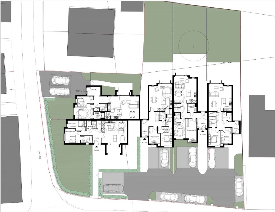
A former pub with full planning permission for demolition and replacement with five new dwellings.

This excellent redevelopment opportunity comprises a former public house on a site of approximately 0.4 acres, with full planning consent for demolition and replacement with five dwellings. The approved properties feature a contemporary design, where the architect has incorporated vaulted ceilings and utilised glass effectively to ensure natural light is present throughout each property. The original permission was for five single-storey dwellings; however, approval was subsequently given for a variation to two plots to create large two-storey units (full details below).

Tenure

Freehold.

Location

Located in the desirable village of Holme-on-Spalding-Moor, close to Market Weighton and Howden. The village has good amenities including a post office, a village hall, a number of shops, school and pubs, making it a popular choice for families.

Accommodation

See the legal pack for the approved plans. The planning is for the erection of five dwellings, which are briefly as follows: Plot A - 2 bed semi bungalow (930sqft) Plot B - 2 bed semi bungalow (820sqft) Plot C - 3/4 bed semi house (1323sqft) Plot D - 5 bed semi house (1382sqft) Plot E - 2 bed detached bungalow (876 sqft)

Planning Permission

Planning permission was originally granted on 28th April 2021 under application number 20/01450/PLF for 'Erection of 5 dwellings with associated access and parking following demolition of Public House' and subsequently revised on the 27th September 2021 application No: 21/02918/VAR for 'Variation of Condition 11 (approved plans (plot C & D only)) of planning permission 20/01450/PLF (Erection of 5 dwellings with associated access and parking following demolition of Public House).' The permission was secured in March 2024 by approval of Application No. 24/30096/CONDET 'Submission of details required by Condition 2 (Archaeological Investigation Scheme) of planning permission 21/02918/VAR'

Services

Interested parties should make their own enquiries regarding the availablility of services to the site and appropriate costs for conection thereto. Mains water, electricity and drainage are all believed to be available in the village.

Viewings

Strictly by appointment with the auctioneers on 0845 400 9900.

Method of Sale

The property will be offered for sale by online auction with bidding commencing at 1.00 pm on Monday 1st December 2025, and closing on Wednesday 3rd December 2025, at 1.00 pm. For further legal information relating to this lot, please go to auctionhouse.co.uk/hullandeastyorkshire.

Conditions of Sale

The property will be sold subject to conditions of sale, copies of which will be available for inspection at the auctioneer’s offices, with the solicitors and online at auctionhouse.co.uk/hullandeastyorkshire prior to the date of the auction.

Guide Price

Guides are provided as an indication of each sellers minimum expectation. They are not necessarily figures which a property will sell for and may change at any time prior to the auction. Each property will be offered subject to a Reserve (a figure below which the Auctioneer cannot sell the property during the auction), which we expect will be set within the Guide Range or no more than 10% above a single figure Guide.

Agents Note

It has been brought to our attention that the property has been subject to fire damage throughout the ex-public house. If you have any questions regarding this, please contact the Auctioneer.

Energy Efficiency Rating (EPC)

Current Rating E

Services

Interested parties are invited to make their own enquiries to the relevant authorities as to the availability of the services.

Local Authority

East Riding of Yorkshire Council

Solicitors

BBS Law, 80 Coleman Street, London, EC2R 5BJ, Ref: Avi Barr, Tel: 020 4505 8081

Important Notice to Prospective Buyers:

We draw your attention to the Special Conditions of Sale within the Legal Pack, referring to other charges in addition to the purchase price which may become payable. Such costs may include Search Fees, reimbursement of Sellers costs and Legal Fees, and Transfer Fees amongst others.

Additional Fees

Buyer's Premium - The purchaser will be required to pay a buyer’s premium of £720 (£600 + VAT) in addition to the purchase price of the property.

Administration Charge - The purchaser will be required to pay an administration charge of 0.3% (inc. VAT) of the purchase price, subject to a minimum of £900 (£750 plus VAT) in addition to the purchase price of the property.

Disbursements - Please see the legal pack for any disbursements listed that may become payable by the purchaser on completion.

Please see the legal pack for any disbursements listed that may become payable by the purchaser on completion.

View Larger Map

Disclaimer: The map preview provided above is for general guidance only and may not accurately reflect the exact location or surrounding buildings. Prospective buyers and interested parties are strongly advised to independently verify the precise location and surroundings before bidding.