For Sale By Auction | 1.00pm, 25 March 2026 | Lot TBC

The Sandy Lane Hotel Residential Care Home, 33 Sands Lane, Bridlington, East Yorkshire, YO15 2JG

*Guide | £650,000 - £700,000 (plus fees)

  • Property For Sale
  • Tenure: Freehold with vacant possession upon completion.

Call the team on 0845 400 9900 for more information

Auction Date

Wed 25/03/2026

Auction Time

1.00pm

Auction Venue

Regional Online

**ATTENTION PROPERTY DEVELOPERS & INVESTORS** This fantastic Development opportunity comprises a former Residential Care Home offering Sea views, and a potential plot for a new Dwelling.

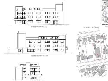
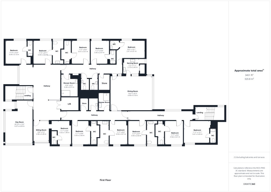
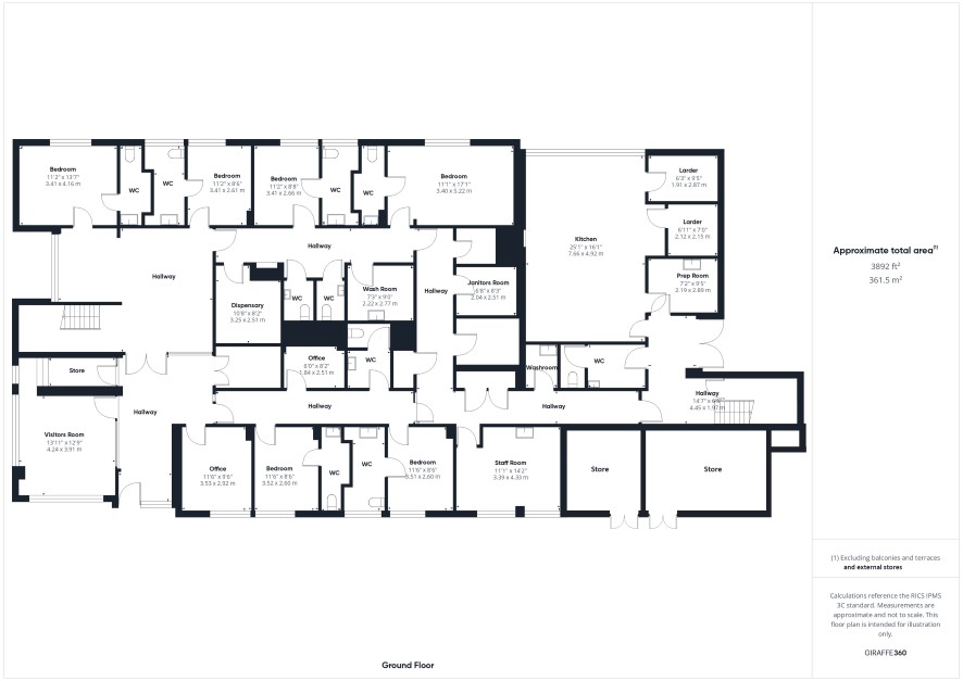
This substantial purpose-built former Retirement Home stands in one of Bridlington's most sought-after locations, enjoying sea views from many windows. Built in the 1960s, the four-storey building provides over 12,000 sq ft of accommodation, including six large communal lounges, two spacious dining rooms, a commercial kitchen, 29 single bedrooms with en-suite WC's, two large top-floor self-contained apartments, several offices, storage rooms and sluices, numerous communal bathrooms and WCs. The property occupies a site of over half an acre and includes ample off-street parking and three double garages. A large area of land that was previously the garden of the adjacent bungalow, is also included in the sale, which enhances the appeal of the property and presents additional opportunities for further redevelopment. The existing building also offers an opportunity to investors and developers to transform the property into luxury apartments; reinstatement as a care home; or transformation into a boutique hotel, (subject to necessary planning consent). Before deciding to sell, the vendors had plans drawn up for the alteration and extension of the upper floor accommodation to create two, two-bedroom Penthouse apartments.

Tenure

Freehold with vacant possession upon completion.

Location

Sands Lane is a prime coastal location in Bridlington, just a stone's throw from Bridlington's North Beach and within comfortable walking distance of the Town centre amenities.

Accommodation

See floor plans for layout and location.

Services

All mains services are believed to be connected.

Council Tax

The property is currently listed as being in Council Tax Band H. Council Tax is payable to the East Riding of Yorkshire Council.

Viewings

Strictly by appointment by the auctioneers on 0845 400 9900.

Method of Sale

The property will be offered for sale by online auction with bidding commencing at 12 noon on Monday 23rd March 2026 and closing on Wednesday 25th March 2026 at 1.00pm. For further legal information relating to this lot please log on to auctionhouse.co.uk/hullandeastyorkshire.

Conditions of Sale

The property will be sold subject to conditions of sale, copies of which will be available for inspection at the auctioneer’s offices, with the solicitors and online at auctionhouse.co.uk/hullandeastyorkshire prior to the date of the auction.

Energy Efficiency Rating (EPC)

Current Rating D92

Services

Interested parties are invited to make their own enquiries to the relevant authorities as to the availability of the services.

Solicitors

Andrew Jackson Solicitors, Foss Islands House, York, North Yorkshire, YO31 7UJ, Ref: Kirsty Barsby, Tel: 01904 563 134

Important Notice to Prospective Buyers:

We draw your attention to the Special Conditions of Sale within the Legal Pack, referring to other charges in addition to the purchase price which may become payable. Such costs may include Search Fees, reimbursement of Sellers costs and Legal Fees, and Transfer Fees amongst others.

Additional Fees

Buyer's Premium - The purchaser will be required to pay a buyer’s premium of £1,200 (£1,000 + VAT) in addition to the purchase price of the property.

Administration Charge - The purchaser will be required to pay an administration charge of 0.3% subject to a minimum of £900 (£750 plus VAT) in addition to the purchase price of the property.

Disbursements - Please see the legal pack for any disbursements listed that may become payable by the purchaser on completion.

Please see the legal pack for any disbursements listed that may become payable by the purchaser on completion.

View Larger Map

Disclaimer: The map preview provided above is for general guidance only and may not accurately reflect the exact location or surrounding buildings. Prospective buyers and interested parties are strongly advised to independently verify the precise location and surroundings before bidding.