For Sale By Auction | 6.30pm , 15 May 2019 | Lot 9

Haltemprice Priory Farmhouse, Abbey Lane, The Parkway, Willerby, East Yorkshire, HU10 6BE

Sold After

  • Barn Conversion
  • Tenure: Freehold

Call the team on 0845 400 9900 for more information

Auction Date

Wed 15/05/2019

Auction Time

6.30pm

Auction Venue

Unknown

AN HISTORIC BUILDING RESTORATION PROJECT SET WITHIN OPEN COUNTRYSIDE.

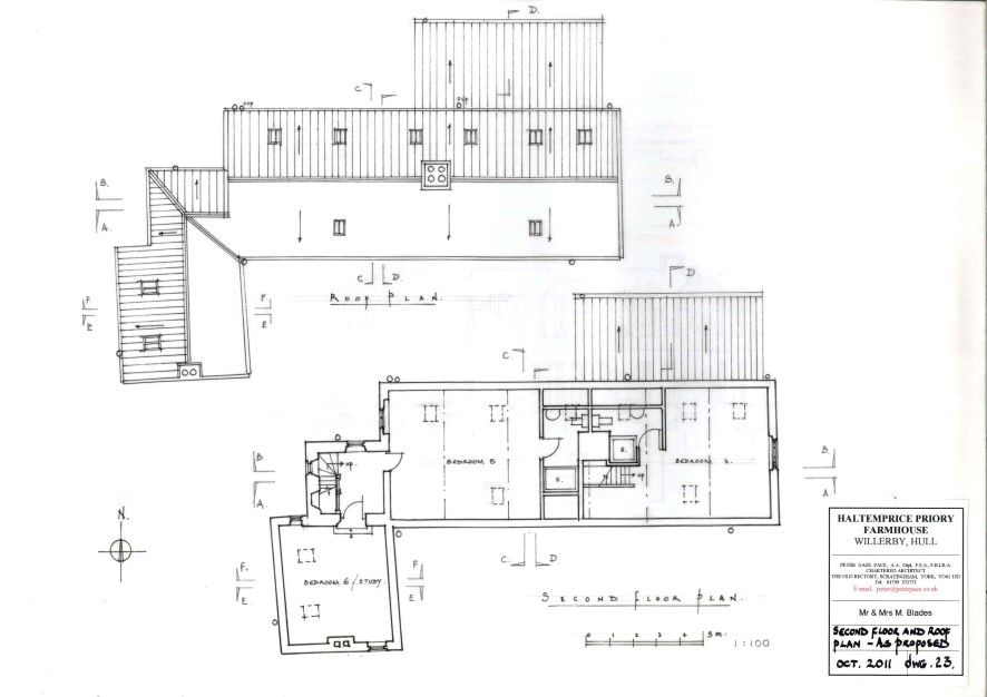
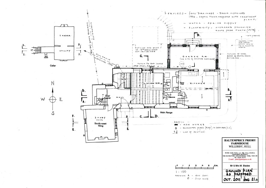
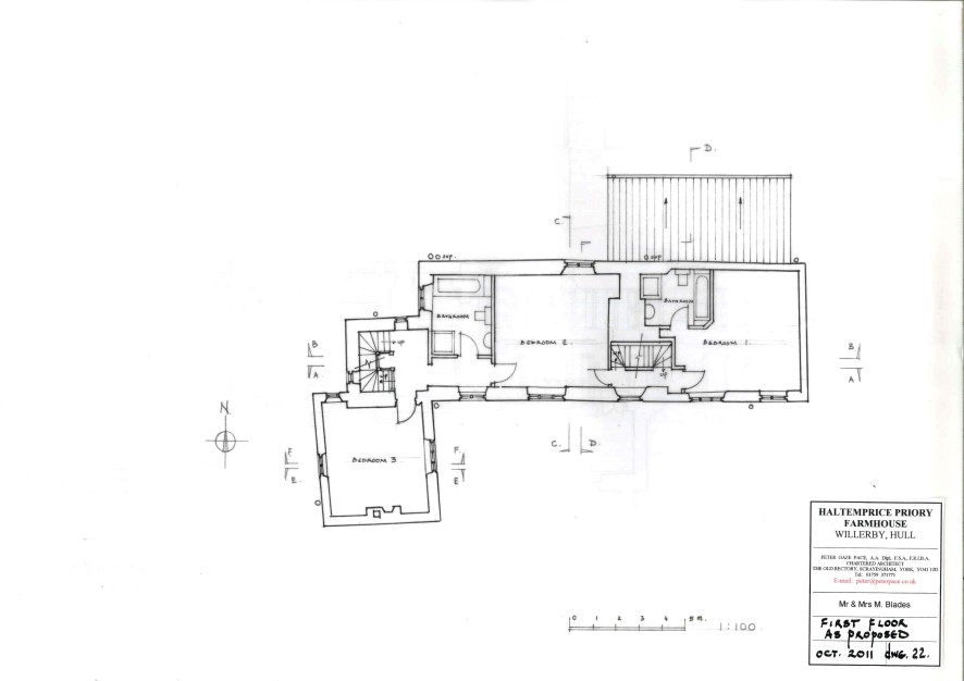
Unique in terms of its character, condition and location, this property comprises a Grade II* Listed Building in an open countryside setting which includes its own surrounding grounds of around two acres, The former farmhouse has origins as an Augustinian Priory and is therefore of historical importance as a result of which the site is also a Scheduled Ancient Monument. The building has become derelict and is a major restoration and building project, with planning approval to rebuild the property and create a unique and outstanding dwelling of over 3,800 square feet.

Tenure

Freehold

Situation

The Priory stands amidst open farmland that separates the settlements of Cottingham and Willerby within the Haltemprice area, about four miles north west of the centre of Hull. It is accessed from Willerby, Abbey Lane being a gated unmade track heading north east from the dead end of The Parkway highway, the property being about 700 yards along the lane on the left. The village of Willerby is well situated for access to both Hull City Centre and the A63/M62 motorway link, Humber Bridge and the town of Beverley. Good local shopping including a Waitrose supermarket, public transportation and local schooling are all provided in the vicinity.

Planning Consent

Full planning permission was granted on 29 October 2018 for reconstruction and extension to the former dilapidated Grade II* farmhouse to form a new dwelling. East Riding of Yorkshire Council ref no DC/18/02063/PLF/WESTES. Copies of the consent and approved plans are available on the Council planning portal and in the auction pack available from the auctioneers. An Historic England guide for owners of scheduled monuments is also available from the auctioneers.

Joint Agents

Dee Atkinson & Harrison 11 Market Place, Beverley,HU17 8BB Tel: 01482 866844

Viewings

Strictly by appointment through Auction House Hull & East Yorkshire on 01482 866844.

Energy Efficiency Rating (EPC)

Current Rating n/a

Services

Interested parties are invited to make their own enquiries to the relevant authorities as to the availability of the services.

Local Authority

East Riding of Yorkshire Council

Solicitors

Quality Solicitors Lockings, Highgate House, 19 Wednesday Market, Beverley, East Yorkshire, HU17 0DJ, Ref: Craig Schofield, Tel: 01482 300500.

Offered in association with

Dee Atkinson and Harrison

Important Notice to Prospective Buyers:

We draw your attention to the Special Conditions of Sale within the Legal Pack, referring to other charges in addition to the purchase price which may become payable. Such costs may include Search Fees, reimbursement of Sellers costs and Legal Fees, and Transfer Fees amongst others.

Additional Fees

Administration Charge - The purchaser will be required to pay an administration charge of £750 (£625 plus VAT) in addition to the purchase price of the property.

Disbursements - Please see the legal pack for any disbursements that may become payable by the purchaser on completion.

Please see the legal pack for any disbursements listed that may become payable by the purchaser on completion.

View Larger Map

Disclaimer: The map preview provided above is for general guidance only and may not accurately reflect the exact location or surrounding buildings. Prospective buyers and interested parties are strongly advised to independently verify the precise location and surroundings before bidding.