For Sale By Auction | 25 November 2025 | Lot 5

12 Station Avenue, Bridlington, East Yorkshire

Sold Prior

  • Property For Sale
  • Freehold.

Call the team on 0845 400 9900 for more information

Auction Closed

Viewing Times

Please call Auction House Hull & East Yorkshire on 0845 400 9900 to arrange a viewing

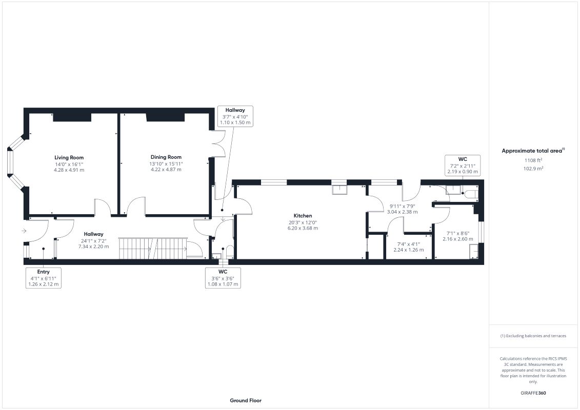
This six-bedroom detached house having previously been a residential home, is in need of modernisation and refurbishment throughout. The property offers potential to investors and property renovators alike to create a large family home or convert into flats (subject to necessary planning consents). The accommodation comprises two reception rooms, kitchen, utility rooms, three WCs, two bathrooms and six bedrooms. The property benefits from double glazing and gas central heating.

Tenure

Freehold.

Portrait Video Tour

False

Location

Situated on Station Avenue in Bridlington, the property is located in close proximity of a range of local amenities including supermarkets, eateries and transport links.

Accommodation

Ground Floor: Entrance Hall, Living Room, Downstairs WCs, Kitchen, Utility Rooms. First Floor: Landing leading to four bedrooms (one with ensuite), Laundry Room, Bathroom. Second Floor: Landing leading to two further bedrooms and shower room.

Exterior

Large rear garden laid mainly to lawn with area of decking.

Method of Sale The property will be offered for sale by online auction with bidding commencing at 1pm on Monday 24th November 2025 and closing on Tuesday 25th November 2025 at 1 pm. For further legal information relating to this lot and to register to bid, please go to auctionhouse.co.uk/hullandeastyorkshire.

Viewing Details

Strictly by appointment with the Auctioneers on 0845 400 9900.

Lot Type

Residential for Improvement

Conditions of Sale The property will be sold subject to conditions of sale, copies of which will be available for inspection at the auctioneer’s offices, with the solicitors and on-line at auctionhouse.co.uk/hullandeastyorkshire prior to the date of the auction.

Guide Price Guides are provided as an indication of each sellers minimum expectation. They are not necessarily figures which a property will sell for and may change at any time prior to the auction. Each property will be offered subject to a Reserve (a figure below which the Auctioneer cannot sell the property during the auction) which we expect will be set within the Guide Range or no more than 10% above a single figure Guide.

Services

Interested parties are invited to make their own enquiries to the relevant authorities as to the availability of the services.

Additional Fees

Buyer's Premium - The purchaser will be required to pay a buyer’s premium of £1500 (£1,250 + VAT) in addition to the purchase price of the property.

Administration Charge - The purchaser will be required to pay an administration charge of £1,200 (£1,000 plus VAT) in addition to the purchase price of the property.

Disbursements - Please see the legal pack for any disbursements listed that may become payable by the purchaser on completion.

Please see the legal pack for any disbursements listed that may become payable by the purchaser on completion.