For Sale By Auction | 13 June 2023 | Lot 5

23 Haslemere Avenue, Bridlington, East Yorkshire

Sold £82,000

  • Property For Sale
  • Freehold

Call the team on 0845 400 9900 for more information

Auction Closed

Viewing Times

Please call Auction House Hull & East Yorkshire on 0845 400 9900 to arrange a viewing

This three-story townhouse is offered to the market as a renovation project for a new owner to complete. The property was only purchased last year for £124,950 and a programme of renovation was started including stripping out of the kitchen, some replastering and replacement of the boiler. Unfortunately, a change in circumstances means the current owner can't complete the project so it is offered to the market as seen but including the unfitted kitchen units that are on site ready to install. The property provides gas centrally heated and double-glazed accommodation as detailed below.

Tenure

Freehold

Location

The property is located towards the northern end of Haslemere Avenue which runs directly off Bridlington's town centre, within immediate striking distance of all local shops, bus station, town centre, north side seafront and amenities. The schools that serve the locality would be Headlands Comprehensive and Quay or Bay Primary, both being within a one mile radius.

Accommodation

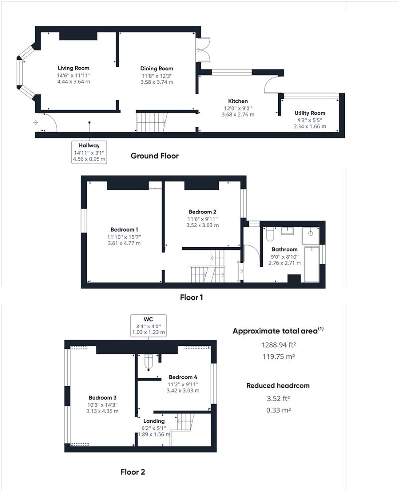
Accommodation Ground Floor: Entrance Hall, Living Room, Dining Room, Kitchen, Utility Room First Floor: Landing, Bedroom one, Bedroom two, Bathroom, Separate WC Second Floor: Landing, Bedroom three, Bedroom four. Services All mains services are connected to the property. None of the services or installations have been tested. Council Tax Council Tax is payable to East Riding of Yorkshire Council. From verbal enquiries we are advised that the property is shown in the Council Tax Property Bandings List in Valuation Band 'B'.

Exterior

Rear enclosed yard.

Viewing Details

Strictly by appointment with the auctioneers on 0845 400 9900

Lot Type

Residential for Improvement

EPC Rating

D - 61

VAT

VAT is not applicable

Energy Efficiency Rating (EPC)

Current Rating D

Services

Interested parties are invited to make their own enquiries to the relevant authorities as to the availability of the services.

Additional Fees

Buyer's Premium - Buyers Premium £750 + VAT (£900 including VAT)

Administration Charge - Administration Charge £1,000 + VAT (£1,200 including VAT)

Disbursements - Please see the legal pack for any disbursements listed that may become payable by the purchaser on completion.

Please see the legal pack for any disbursements listed that may become payable by the purchaser on completion.