For Sale By Auction | 10 December 2024 | Lot 1

7 Tyne Street, Hull, East Yorkshire

Sold £59,000

  • Property For Sale
  • Freehold.

Call the team on 0845 400 9900 for more information

Auction Closed

Viewing Times

Please call Auction House Hull & East Yorkshire on 0845 400 9900 to arrange a viewing

This spacious three-bedroom mid-terrace property is offered in need of a scheme of refurbishment and improvement. The accommodation comprises a sitting/dining room, a kitchen and bathroom on the ground floor. On the first floor, a landing area provides access to three bedrooms, offering generous living space. The property benefits from gas-fired central heating and uPVC double glazing.

Tenure

Freehold.

Featured Lot

False

Location

Located within walking distance of Hessle Road, the property benefits from direct road and public transport links into the city centre and beyond.

Accommodation

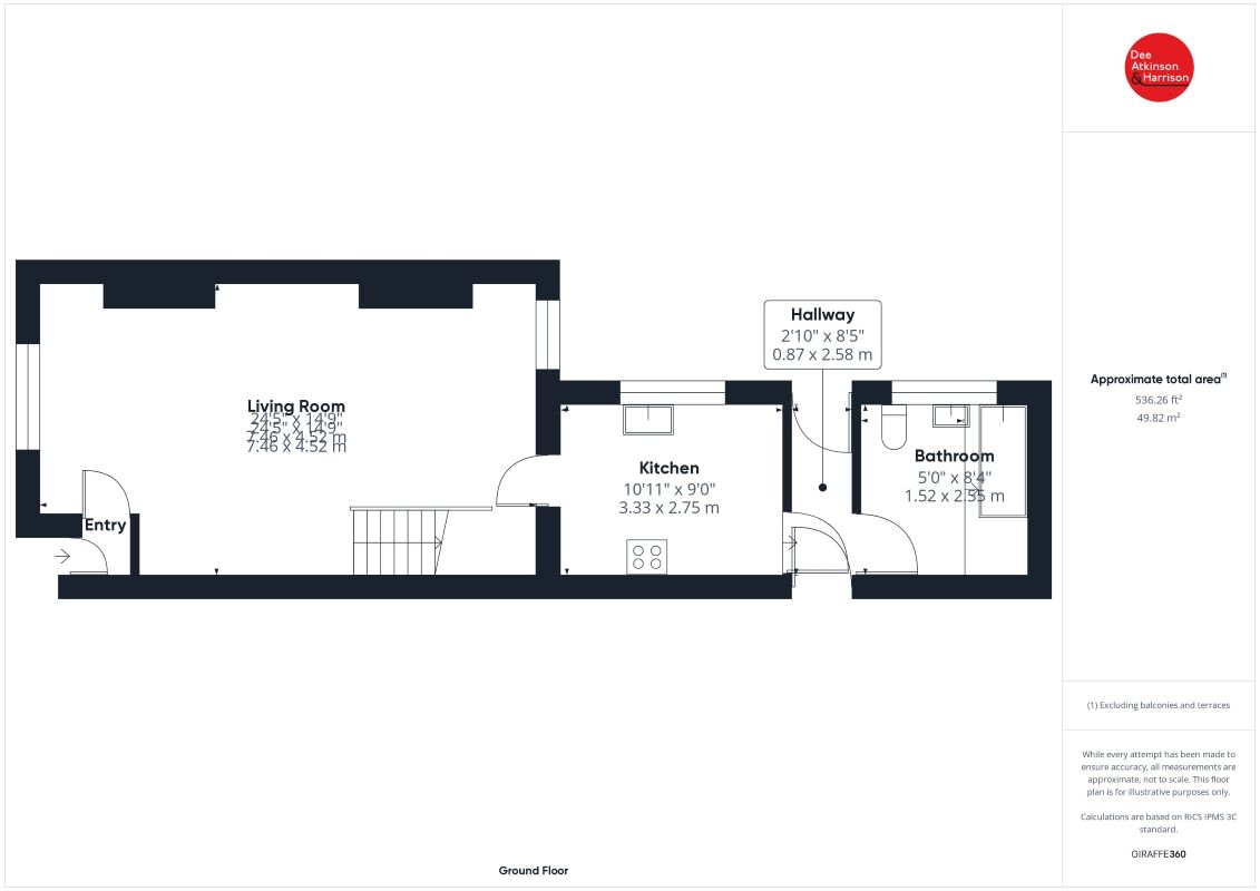
Ground Floor Sitting/Dining Room 24'5" x 14'9" (7.46m x 4.52m) Window to the front and rear, staircase leading to first floor. An under-stairs storage cupboard provides practical storage solutions. Radiator. Kitchen 10'11" x 14'9" (3.33m x 2.75m) The kitchen enjoys a rear aspect. Fitted with maple-style base and wall-mounted cabinets offering cupboard and drawer space. Complementary laminated work surfaces, stainless steel sink unit, electric single oven and gas hob. Rear Hallway 2'10" x 8'5" (0.87m x 2.58m). Bathroom 10'4" x 5'2" (3.15m x 1.57m) The bathroom is appointed with a three-piece suite comprising a bath, washbasin, and WC. Tiled to all walls. First Floor Landing The central landing has doors leading off to the individual rooms. Principal Bedroom 12'1" x 13'8" (3.70m x 4.17m) With a front aspect. The room is equipped with fitted wardrobes along one wall. Bedroom 2 11'9" x 9'1" (3.59m x 2.79m) The room is fitted with a radiator and a rear aspect. Bedroom 3 10'11" x 8'11" (3.35m x 2.73m) The room is fitted with a radiator and a rear aspect.

Exterior

Found to the rear is a yard with access to a side street.

Method of Sale The property will be offered for sale by online auction with bidding commencing at 1pm on Monday 9th December 2024 and closing on Tuesday 10th December at 1 pm. For further legal information relating to this lot and to register to bid, please go to auctionhouse.co.uk/hullandeastyorkshire.

Viewing Details

Strictly by appointment with the Auctioneers on 0845 400 9900.

Conditions of Sale The property will be sold subject to conditions of sale, copies of which will be available for inspection at the auctioneer’s offices, with the solicitors and on-line at auctionhouse.co.uk/hullandeastyorkshire prior to the date of the auction.

Guide Price Guides are provided as an indication of each sellers minimum expectation. They are not necessarily figures which a property will sell for and may change at any time prior to the auction. Each property will be offered subject to a Reserve (a figure below which the Auctioneer cannot sell the property during the auction) which we expect will be set within the Guide Range or no more than 10% above a single figure Guide.

Services

Interested parties are invited to make their own enquiries to the relevant authorities as to the availability of the services.

Additional Fees

Buyer's Premium - The purchaser will be required to pay a buyer’s premium of £1560 (£1300 + VAT) in addition to the purchase price of the property.

Administration Charge - The purchaser will be required to pay an administration charge of £900 (£750 plus VAT) in addition to the purchase price of the property.

Disbursements - Please see the legal pack for any disbursements listed that may become payable by the purchaser on completion.

Please see the legal pack for any disbursements listed that may become payable by the purchaser on completion.