For Sale By Auction | 11 November 2025 | Lot 34

161 Sycamore Street, Ashington, Northumberland

Sold £35,000

  • Property For Sale

Call the team on 01427 616436 for more information

Auction Closed

Viewing Times

Please call Auction House Lincolnshire, North Notts & South Yorks on 01427 616436 to arrange a viewing

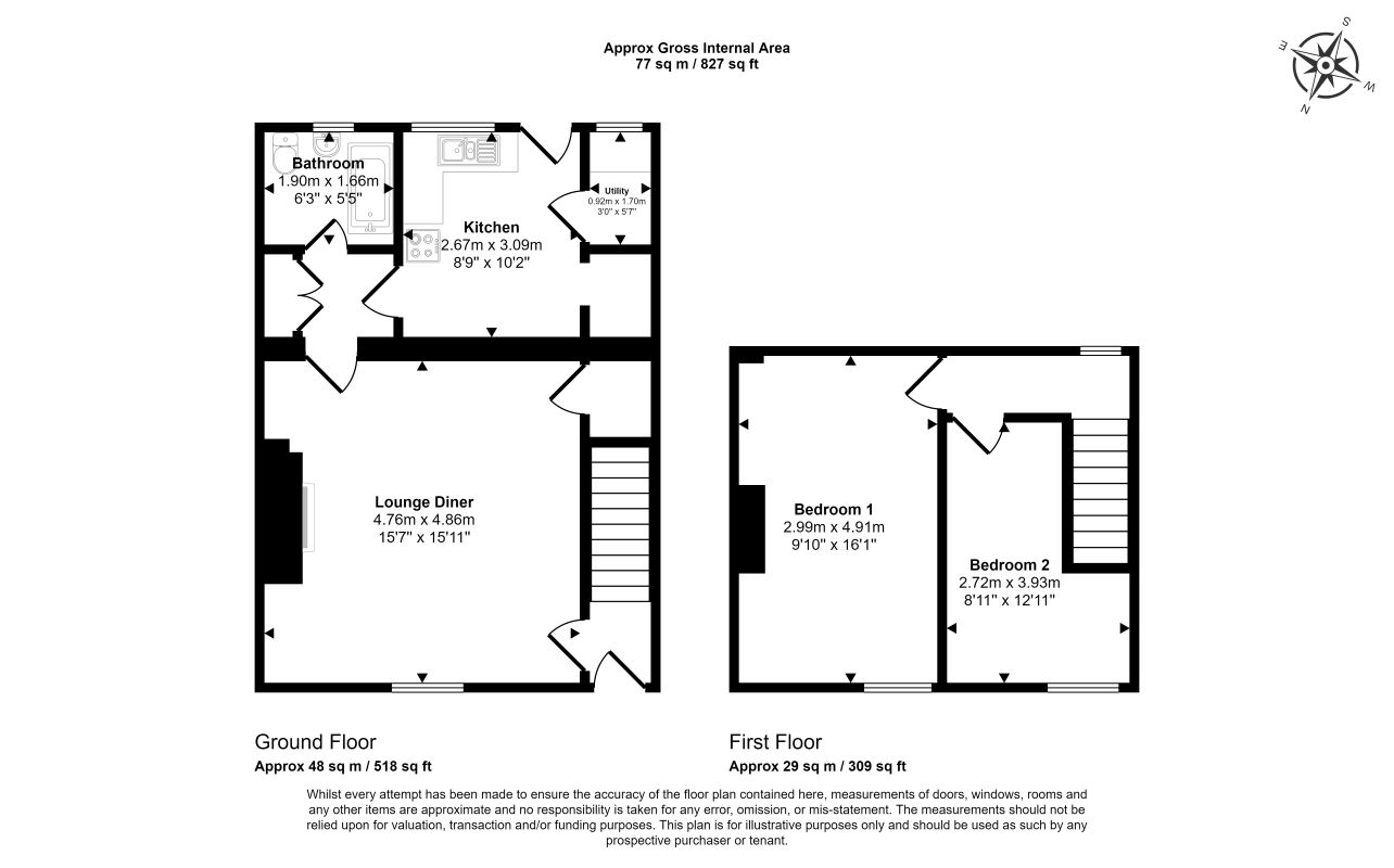
Situation: The property is located on Sycamore Street, in the heart of Ashington within reach of Newcastle and the city centre. There are a wealth of facilities and amenities within easy reach including public parks and areas. Road and rail network access is convenient, being positioned for access to the A1 road network and the surrounding towns and Cities, and the picturesque North East coast. Description: A wonderful opportunity to purchase this traditionally constructed mid terrace house, benefitting from well-proportioned and versatile accommodation throughout, and double glazing and central heating. The property is an ideal purchase for investors with scope to add value along with being in an area of high rental demand with a strong potential yield (based on advertised guide price) with rents of circa £600 pcm (£7200 per annum). Accommodation+ Ground Floor Hall Sitting Room/Dining Room Breakfasting Kitchen Family Bathroom Inner Hall Utility Room First Floor Bedroom 1 Bedroom 2 Outside Garden Material Information Tenure: The property is freehold. All prospective bidders should satisfy themselves of terms of the tenure, ground rent and service charge if applicable, by inspecting the legal pack. Council Tax: The property falls within Northumberland Council – BAND C Possession: Vacant possession will be given upon completion. Viewing: Strictly by appointment with Auction House. Services: Prospective purchasers are advised to make their own enquiries of the relevant statutory authorities. NB: Services, Apparatus and Equipment have not been tested by Auction House and therefore cannot be verified as being in working order. The buyer is advised to obtain verification from their Solicitor/Surveyor. These particulars are believed to be correct but their accuracy is not guaranteed and they do not form any part of any contract. Information relating to Rating and Town and Country Planning matters has been obtain

Portrait Video Tour

False

Energy Efficiency Rating (EPC)

Current Rating C

Services

Interested parties are invited to make their own enquiries to the relevant authorities as to the availability of the services.

Additional Fees

Administration Charge - Non-refundable £3,600 inc VAT payable on the fall of the virtual gavel.

Disbursements - Please see the legal pack for any disbursements listed that may become payable by the purchaser on completion.

Please see the legal pack for any disbursements listed that may become payable by the purchaser on completion.