For Sale By Auction | 18 May 2021 | Lot 2

Hall Lodge Holton-Cum-Beckering, Market Rasen, Lincolnshire

Sold Prior

  • Property For Sale

Call the team on 01427 616436 for more information

Auction Closed

Viewing Times

Please call Auction House Lincolnshire, North Notts & South Yorks on 01427 616436 to arrange a viewing

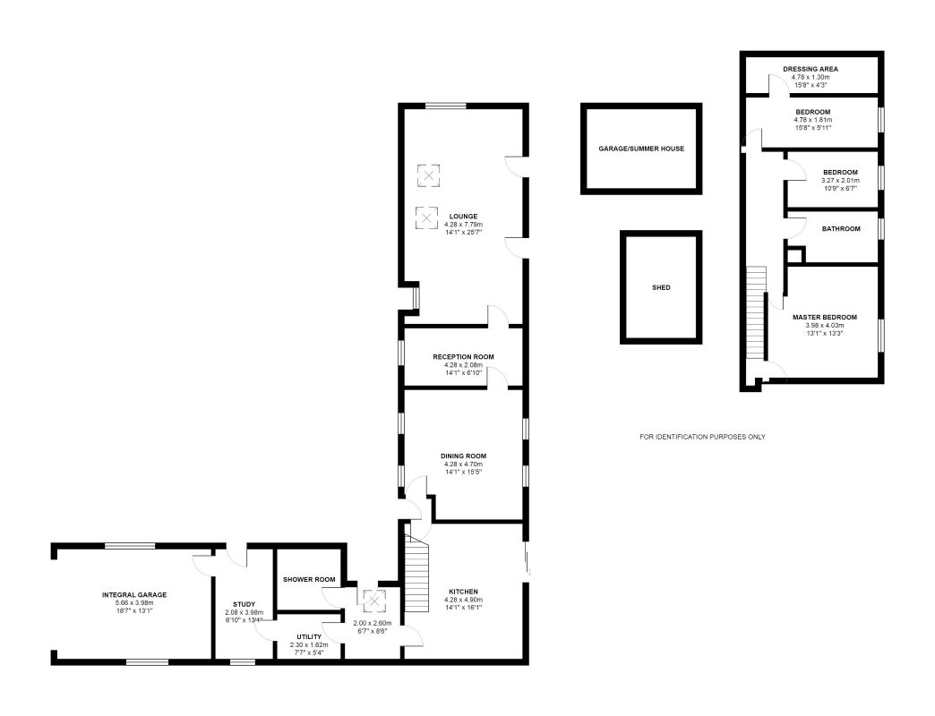
This property comprises a spacious well presented five bedroom detached house, positioned down a private driveway and situate in the semi rural village of Holton cum Beckering. Holton cum Beckering is situate six miles south of Market Rasen and is served by good road access to Horncastle, Market Rasen and the cathedral City of Lincoln. The accommodation has potential to offer various options including family accommodation, multi-generational accommodation and sits on a larger than average plot with Garage, outbuildings and Summerhouse. ACCOMMODATIONThe accommodation is accessed via two entrances to the front: MAIN ENTRANCE HALLWAY 2.00m (6' 7") x 2.59m (8' 6") Wooden door leads into the main entrance which provides access to Kitchen, Utility Room and downstairs Shower Room, built in cupboard, tiled flooring, spot lights to ceiling, velux skylight and radiator. SECOND ENTRANCE 1.50m (4' 11") x 1.04m (3' 5") Accessed via a wooden door leading into a lobby with tiled flooring, radiator and providing access to the kitchen and dining room. KITCHEN 4.90m (16' 1") x 4.27m (14' 0") Kitchen comprising wall and base units. built in Neff oven with grill, four ring halogen hob, built in Neff dishwasher, one and a half stainless steel sink, Myson Velaire floor mounted boiler, wall mounted thermostat, tiled flooring, two radiators, window to the front and sliding double glazed door to the rear. PANTRY1.42m (4' 8") x 1.20m (3' 11") Just off the kitchen with tiled worktop, shelving and window to the front elevation. SHOWER ROOM 2.19m (7' 2") x 2.29m (7' 6") Four piece white suite comprising shower cubicle, low level flush wc, bidet, built in sink unit with drawers, vanity unit, wooden window to the side elevation. UTILITY ROOM 2.19m (7' 2") x 1.55m (5' 1") With wood effect wall and base units, stainless steel sink with mixer tap, space for washing machine, wooden double glazed window to the front elevation and tiled flooring

Services

Interested parties are invited to make their own enquiries to the relevant authorities as to the availability of the services.

Additional Fees

Administration Charge - Purchasers will be required to pay an administration fee of £480 inc VAT

Disbursements - Please see the legal pack for any disbursements listed that may become payable by the purchaser on completion.