For Sale By Auction | 08 June 2021 | Lot 6

1 Parish Mews, Gainsborough, Lincolnshire

Sold £88,000

  • Property For Sale

Call the team on 01427 616436 for more information

Auction Closed

Viewing Times

Please call Auction House Lincolnshire, North Notts & South Yorks on 01427 616436 to arrange a viewing

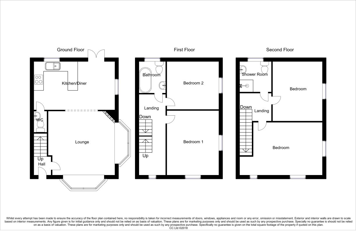
A well-proportioned four double bedroom end town house offering easy access to Marshalls Yard. The accommodation comprises of entrance hall, lounge, downstairs WC and modern kitchen/diner. First floor, two bedrooms and bathroom. Second Floor, Two further bedrooms and shower room. The property benefits from gas central heating and double glazing. Externally there is a low maintenance rear yard. Accommodation:Double glazed doorway to: Entrance Hall Stairs to the first floor. Lounge: Double glazed window to the front and side, laminate flooring, wall mounted fire and radiator. Kitchen/Diner: With a range of walnut finish units to base and high level, work surfaces, inset stainless steel sink and drainer, stainless steel Range style oven (not tested), stainless steel splash back, stainless steel extractor fan, tiled flooring, radiator, double glazed windows to the rear and side and double glazed double doors to the rear. Downstairs WC: With low level WC, wash hand basin, tiled walls and flooring and radiator. First Floor Landing: Stairs to second floor, double glazed window to the front and doors to: Bedroom One: Double glazed window to the front and side, laminate flooring and radiator. Bedroom Two: Double glazed window to the side, laminate flooring and radiator. Bathroom:With modern white three piece suite comprising of low level WC, pedestal wash hand basin, bath with shower and mixer tap, tiled flooring and walls, chrome finish towel rail and double glazed window to the rear. Second Floor Landing: Loft access and doors to: Bedroom Three: Two double glazed window to the front, double glazed window to the side, radiator and laminate flooring. Bedroom Four: Double glazed window to the side, laminate flooring and radiator. Shower Room: With a white suite comprising of low level WC, vanity wash hand basin with glass bowl sink, shower cubicle, tiled walls and floor, radiator and double glazed window to the rear. Outside: Externally to t

Services

Interested parties are invited to make their own enquiries to the relevant authorities as to the availability of the services.

Additional Fees

Administration Charge - Purchasers will be required to pay an administration fee of £480 inc VAT

Disbursements - Please see the legal pack for any disbursements listed that may become payable by the purchaser on completion.