For Sale By Auction | 03 May 2022 | Lot 3

29 Darwin Street, Gainsborough, Lincolnshire

Sold Prior

  • Property For Sale

Call the team on 01427 616436 for more information

Auction Closed

Viewing Times

Please call Auction House Lincolnshire, North Notts & South Yorks on 01427 616436 to arrange a viewing

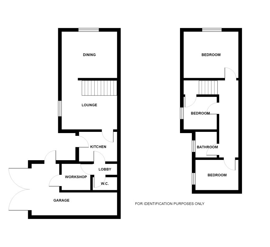
*MUST BE VIEWED TO APPRECIATE SIZE OF PROPERTY* This property will be offered for sale by auction closing 3rd May 2022 with a *guide price of £50,000 - £70,000 (plus fees). Situation: A three bedroom end of terrace property located in the centre of the market town of Gainsborough having access to a wealth of amenities including Marshalls yard retail complex, medical and leisure facilities, supermarkets and a number of well-respected schools. Description: A traditional style end terrace house with accommodation briefly comprising of: lounge, dining room, kitchen, family bathroom, 3 bedrooms plus downstairs W.C with utility area and garage. The property benefits from gas central heating system and Upvc double glazed windows. Accommodation:uPVC double glazed Entrance door leading into: Kitchen: 3.25m x 3.31m (10'8 x 10'10) uPVC double glazed window to the side elevation, gloss finished fitted kitchen comprising base, drawer and wall units with complementary work surfaces, inset stainless steel sink and drainer with mixer tap, integrated double oven, four ring gas hob with extractor over, integrated dishwasher, space for fridge freezer, single radiator, tiled flooring and door giving access to: Inner lobby: With tiled flooring, range of shelving and door giving access to: Downstairs W.C: 1.76m x 0.78m (5'9 x 2'7) Having w.c., corner hand basin with tiled splash backs, single radiator and tiling to the floor. Utility Area: 1.91m x 1.93m (6'3 x 6'4) Doorway from Lobby. With work surface and plumbing for automatic washing machine below. Door giving access to: Garage/Workshop: With light and power, pedestrian door and double garage door. Lounge: 4.71m x 4.19m (15'5 x 13'9) Doorway from Kitchen. Double glazed uPVC patio doors to the side elevation leading out to the garden, stairs rising to the first floor accommodation, double radiator, wood beam effect ceiling and opening into: Dining Room: 4.27m x 3.64m (14'0 x 11'11

Energy Efficiency Rating (EPC)

Current Rating D

Services

Interested parties are invited to make their own enquiries to the relevant authorities as to the availability of the services.

Additional Fees

Administration Charge - Purchasers will be required to pay an administration fee of £480 inc VAT

Disbursements - Please see the legal pack for any disbursements listed that may become payable by the purchaser on completion.