For Sale By Auction | 16 May 2023 | Lot 33

24 Oldroyd Avenue, Grimethorpe, Barnsley, South Yorkshire

Sold £74,000

  • Property For Sale

Call the team on 01427 616436 for more information

Auction Closed

Viewing Times

Please call Auction House Lincolnshire, North Notts & South Yorks on 01427 616436 to arrange a viewing

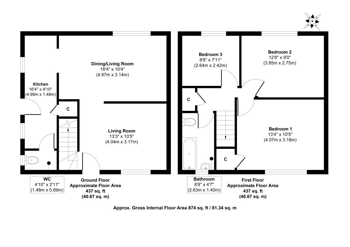
Situation: The property is situate on Oldroyd Avenue, on the outskirts of Barnsley, a short distance from a large Nature Reserve, and within easy access of the local facilities and amenities, along with being well positioned for commuting to the Cities of Sheffield, Leeds and Doncaster. Description: A wonderful opportunity for both the owner occupier and investment market, with significant potential to generate a substantial yield, and add value. A semi detached house occupying a good sized plot, within an area with high rental demand. An internal viewing is a must to appreciate the potential. Accommodation Ground Floor: Sitting Room Dining Room Kitchen Downstairs WC First Floor: Bedroom 1 Bedroom 2 Bedroom 3 Family Bathroom Outside: Gardens to the front side and rear, enclosed and with a driveway and offroad parking.Material Information Tenure: The property is believed to be freehold. All prospective bidders should satisfy themselves of the tenure by inspecting the legal pack. Council Tax: We have been advised that the property falls within Barnsley Metropolitan Borough Council – BAND A Possession: Vacant possession will be given upon completion. Viewing: Strictly by appointment with Auction House. Services: Prospective purchasers are advised to make their own enquiries of the relevant statutory authorities. NB: Services, Apparatus and Equipment have not been tested by Auction House and therefore cannot be verified as being in working order. The buyer is advised to obtain verification from their Solicitor/Surveyor. These particulars are believed to be correct but their accuracy is not guaranteed and they do not form any part of any contract. Information relating to Rating and Town and Country Planning matters has been obtained by verbal enquiry only. Prospective purchasers are advised to make their own enquiries of the appropriate Authority. All measurements, areas and distances are approximate only. Potent

Energy Efficiency Rating (EPC)

Current Rating C

Services

Interested parties are invited to make their own enquiries to the relevant authorities as to the availability of the services.

Additional Fees

Buyer's Premium - Non-refundable £1,200 inc VAT payable on the fall of the virtual gavel.

Administration Charge - Non-refundable £1,200 inc VAT payable on the fall of the virtual gavel.

Disbursements - Please see the legal pack for any disbursements listed that may become payable by the purchaser on completion.

Please see the legal pack for any disbursements listed that may become payable by the purchaser on completion.