For Sale By Auction | 12 September 2023 | Lot 16

6 Stainton Street, Denaby Main, Doncaster, South Yorkshire

Sold £77,000

  • Property For Sale

Call the team on 01427 616436 for more information

Auction Closed

Viewing Times

Please call Auction House Lincolnshire, North Notts & South Yorks on 01427 616436 to arrange a viewing

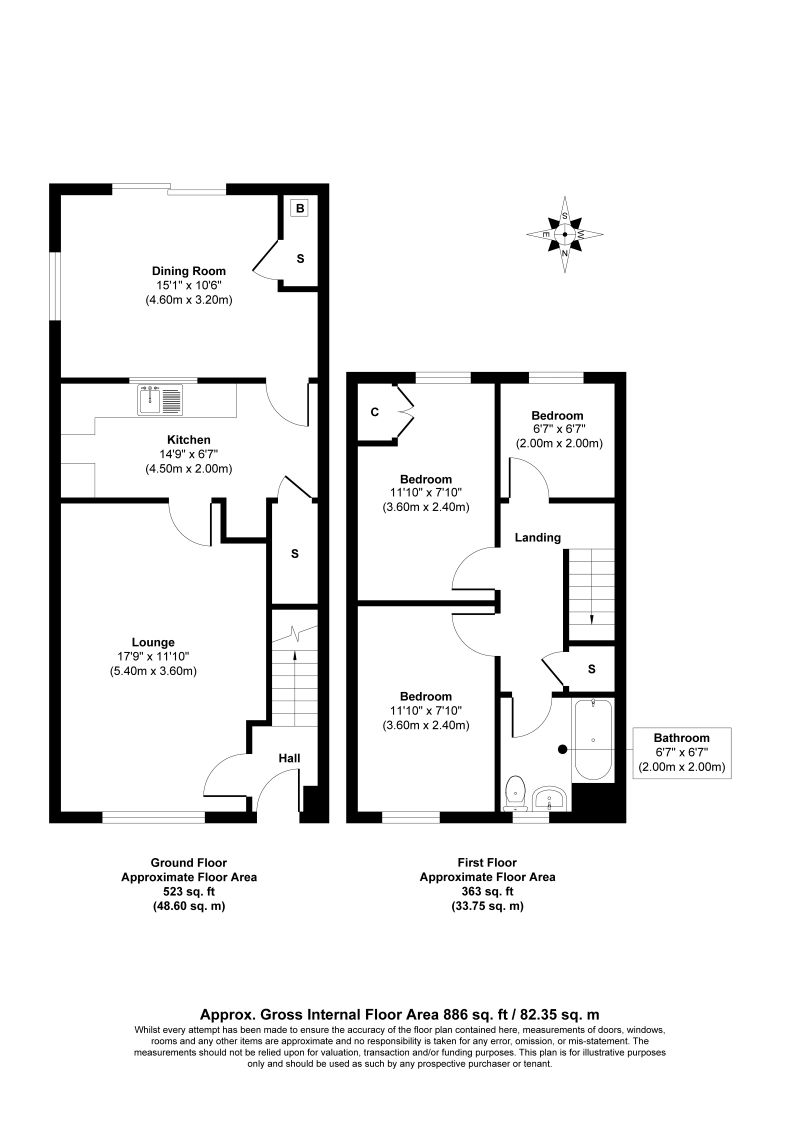
Situation: The property is situate on Stainton Street, Denaby, a well positioned and convenient location, within close proximity of a multitude of facilities and amenities, including pubs, eateries, shops and the Conisborough rail station. The City of Doncaster is within easy reach, along with the M18 road network, and London Kings Cross rail line. Description: A traditionally constructed end of terrace house, offered for sale in good order throughout, and benefitting from double glazing, central heating, well proportioned accommodation and off road parking. This property is ideal for both owner occupiers, and investors being in ‘ready to let’ condition, and in an area of strong rental demand, this property should command a high yield. Accommodation Ground Floor: Entrance Hall Sitting Room Kitchen Dining Room First Floor: Bedroom 1 Bedroom 2 Bedroom 3 Family Bathroom Outside: Front and rear gardens.Material Information Tenure: The property is believed to be freehold. All prospective bidders should satisfy themselves of the tenure by inspecting the legal pack. Council Tax: We have been advised that the property falls within Doncster Council – BAND A Possession: Vacant possession will be given upon completion. Viewing: Strictly by appointment with Auction House. Services: Prospective purchasers are advised to make their own enquiries of the relevant statutory authorities. NB: Services, Apparatus and Equipment have not been tested by Auction House and therefore cannot be verified as being in working order. The buyer is advised to obtain verification from their Solicitor/Surveyor. These particulars are believed to be correct but their accuracy is not guaranteed and they do not form any part of any contract. Information relating to Rating and Town and Country Planning matters has been obtained by verbal enquiry only. Prospective purchasers are advised to make their own enquiries of the appropriate Authority. Al

Energy Efficiency Rating (EPC)

Current Rating C

Services

Interested parties are invited to make their own enquiries to the relevant authorities as to the availability of the services.

Additional Fees

Buyer's Premium - Non-refundable £1,800 inc VAT payable on the fall of the virtual gavel.

Administration Charge - Non-refundable £1,800 inc VAT payable on the fall of the virtual gavel.

Disbursements - Please see the legal pack for any disbursements listed that may become payable by the purchaser on completion.

Please see the legal pack for any disbursements listed that may become payable by the purchaser on completion.