For Sale By Auction | 30 January 2024 | Lot 14

8 Victoria Street, Grimsby, South Humberside

Sold £100,000

  • Property For Sale

Call the team on 01427 616436 for more information

Auction Closed

Viewing Times

Please call Auction House Lincolnshire, North Notts & South Yorks on 01427 616436 to arrange a viewing

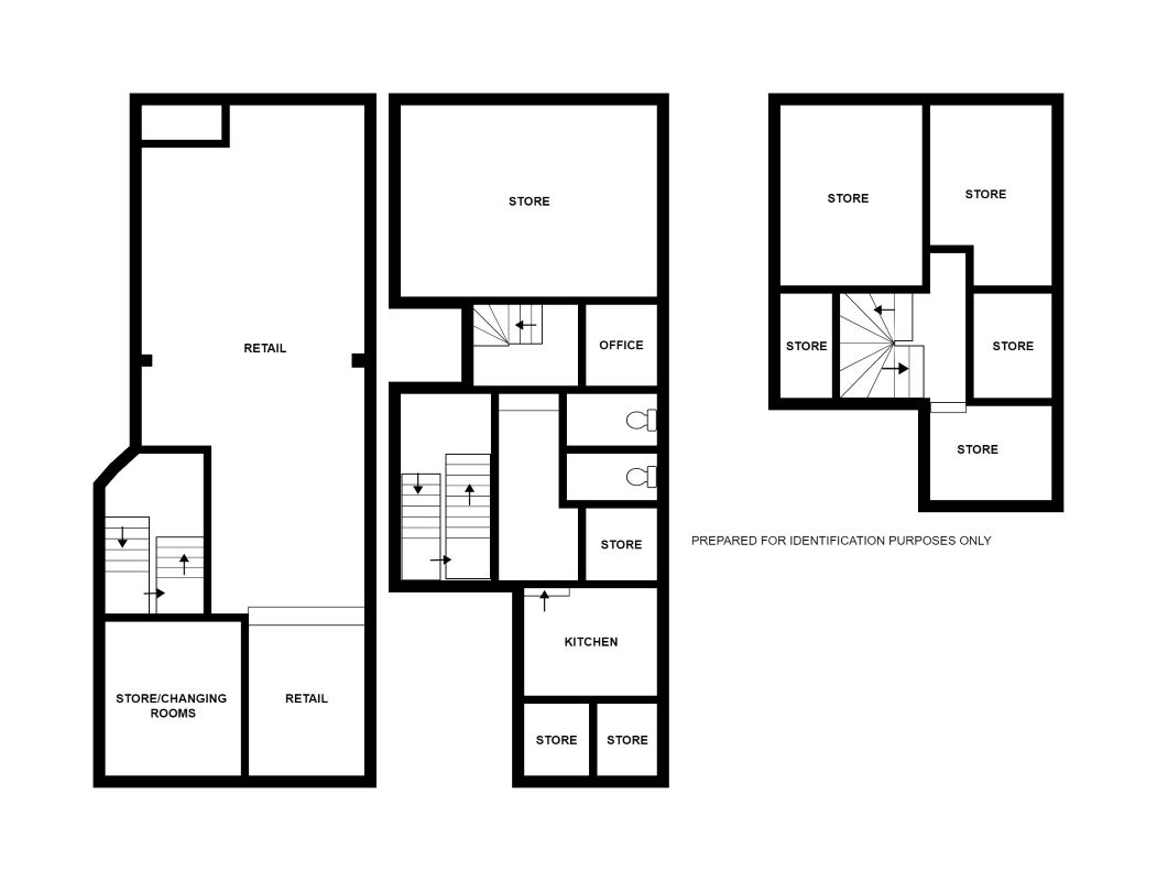
The town of Grimsby is located within North East Lincolnshire, the property is located on the southern side of the pedestrianised Victoria Street West, which is considered to be a prime retailing pitch within the town centre. Many national and regional occupiers are represented and the property is additionally well situated to benefit from close proximity to the Freshney Place shopping centre. The property provides three storey, mid terraced retail premises comprising predominantly open plan retail accommodation with storage on the ground floor, ancillary office, kitchen and storage accommodation on the first floor and storage accommodation on the second floor. The property benefits from electrically operated roller shutters to the front and electric heating in part. The ground floor of the property is in good internal state, although the parts of the upper floors may require refurbishment for use. Accommodation Ground Floor: Retail - 60.2 sqm (648 sq ft) Ancillary - 9.9 sqm (107 sq ft) First Floor: Storage - 26.4 sqm (284 sq ft) Ancillary - 12.2 sqm (131 sq ft) Second Floor: Storage - 44.0 sqm (473 sq ft)Material Information Tenure: The property is believed to be freehold. All prospective bidders should satisfy themselves of the tenure by inspecting the legal pack. Council Tax: We have been advised that the property falls within North East Lincolnshire Council. Current rateable value (1 April 2023 to present) £17,500 Possession: Vacant possession will be given upon completion. Viewing: Strictly by appointment with Auction House. Services: Prospective purchasers are advised to make their own enquiries of the relevant statutory authorities. NB: Services, Apparatus and Equipment have not been tested by Auction House and therefore cannot be verified as being in working order. The buyer is advised to obtain verification from their Solicitor/Surveyor. These particulars are believed to be correct but their accuracy is

Energy Efficiency Rating (EPC)

Current Rating D

Services

Interested parties are invited to make their own enquiries to the relevant authorities as to the availability of the services.

Additional Fees

Buyer's Premium - Non-refundable £1,200 inc VAT payable on the fall of the virtual gavel.

Administration Charge - Non-refundable £1,200 inc VAT payable on the fall of the virtual gavel.

Disbursements - Please see the legal pack for any disbursements listed that may become payable by the purchaser on completion.

Please see the legal pack for any disbursements listed that may become payable by the purchaser on completion.