For Sale By Auction | 01 October 2024 | Lot 30

54 Ripon Street, Grimsby, South Humberside

Sold £41,000

  • Property For Sale

Call the team on 01427 616436 for more information

Auction Closed

Viewing Times

Please call Auction House Lincolnshire, North Notts & South Yorks on 01427 616436 to arrange a viewing

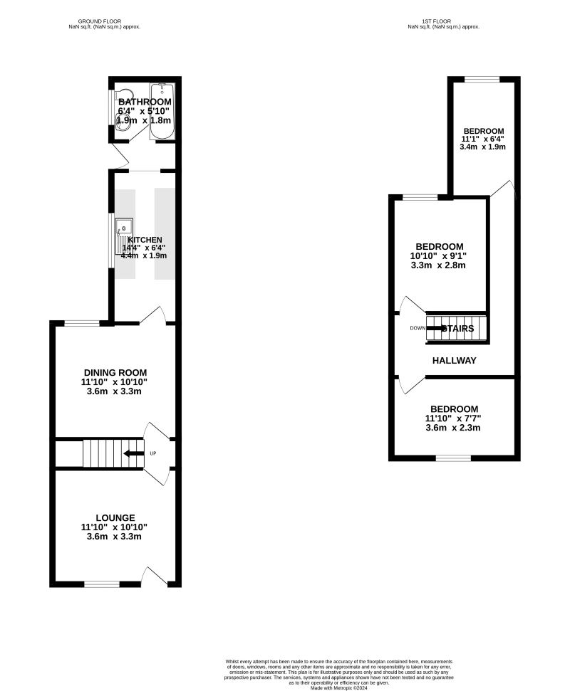
Situation: The property is situated on Ripon Street, Grimsby a popular and central area of this north east Lincolnshire market and port town. The town centre is within close proximity offering a wide range of facilities and amenities both retail and leisure and Grimsby itself is well positioned for access to the M180 road network. Description: A mid terrace house requiring a scheme of improvement but benefiting from uPVC double glazing, central heating and versatile accommodation throughout. The property boasts well proportioned rooms and the scope to convert to an HMO subject to the necessary planning consents being obtained. This property will appeal to those investors and owner occupiers alike being an ideal project and offering high potential yield at the advertised guide price, with potential to let at £600 pcm (£7200 per annum). An internal viewing is a must to appreciate the scope of the accommodation on offer.Ground Floor Lounge, Dining Room, Kitchen, Rear Lobby, Family BathroomFirst Floor Bedroom One, Bedroom Two, Bedroom ThreeOutside Good sized enclosed rear gardensMaterial Information Tenure: The property is freehold. All prospective bidders should satisfy themselves of the tenure by inspecting the legal pack. Council Tax: The property falls within North Lincolnshire Council – BAND A Possession: Vacant possession will be given upon completion. Viewing: Strictly by appointment with Auction House. Services: Prospective purchasers are advised to make their own enquiries of the relevant statutory authorities. NB: Services, Apparatus and Equipment have not been tested by Auction House and therefore cannot be verified as being in working order. The buyer is advised to obtain verification from their Solicitor/Surveyor. These particulars are believed to be correct but their accuracy is not guaranteed and they do not form any part of any contract. Information relating to Rating and Town and Co

Energy Efficiency Rating (EPC)

Current Rating D

Services

Interested parties are invited to make their own enquiries to the relevant authorities as to the availability of the services.

Additional Fees

Administration Charge - Non-refundable £3,600 inc VAT payable on the fall of the virtual gavel.

Disbursements - Please see the legal pack for any disbursements listed that may become payable by the purchaser on completion.

Please see the legal pack for any disbursements listed that may become payable by the purchaser on completion.