For Sale By Auction | 26 November 2024 | Lot 62

43 Harold Street, Grimsby, South Humberside

Sold £40,000

  • Property For Sale

Call the team on 01427 616436 for more information

Auction Closed

Viewing Times

Please call Auction House Lincolnshire, North Notts & South Yorks on 01427 616436 to arrange a viewing

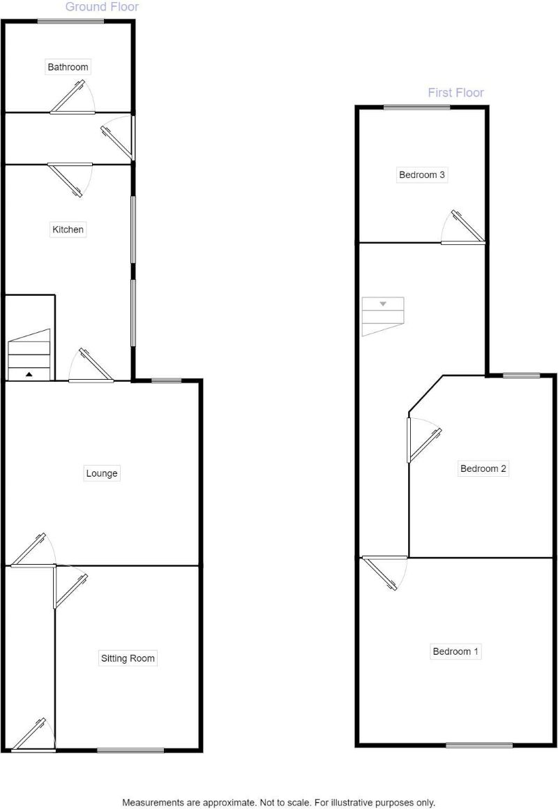
Situation: The property is situated on Harold Street, Grimsby a popular and central area of this north east Lincolnshire market and port town. The town centre is within close proximity offering a wide range of facilities and amenities both retail and leisure and Grimsby itself is well positioned for access to the M180 road network. Description: A mid terrace house benefiting from uPVC double glazing, central heating and versatile accommodation throughout. The property boasts well proportioned rooms and the scope to convert to an HMO subject to the necessary consents being obtained. This property will appeal to those investors and owner occupiers alike being an ideal project and offering high yield. The property is currently tenanted generating £4800 per annum. Accommodation: Ground Floor: Entrance Hall Lounge Dining Room Kitchen Rear Lobby Family Bathroom First Floor Bedroom One Bedroom Two Bedroom Three Outside: Enclosed rear gardensMaterial Information Tenure: The property is freehold. All prospective bidders should satisfy themselves of the tenure by inspecting the legal pack. Council Tax: The property falls within North East Lincolnshire Council – BAND A Possession: Subject to existing tenancy agreement. Viewing: Strictly by appointment with Auction House. Services: Prospective purchasers are advised to make their own enquiries of the relevant statutory authorities. NB: Services, Apparatus and Equipment have not been tested by Auction House and therefore cannot be verified as being in working order. The buyer is advised to obtain verification from their Solicitor/Surveyor. These particulars are believed to be correct but their accuracy is not guaranteed and they do not form any part of any contract. Information relating to Rating and Town and Country Planning matters has been obtained by verbal enquiry only. Prospective purchasers are advised to make their own enquiries of the appropriate Authority.

Energy Efficiency Rating (EPC)

Current Rating D

Services

Interested parties are invited to make their own enquiries to the relevant authorities as to the availability of the services.

Additional Fees

Buyer's Premium - Non-refundable £1,800 inc VAT payable on the fall of the virtual gavel.

Administration Charge - Non-refundable £1,800 inc VAT payable on the fall of the virtual gavel.

Disbursements - Please see the legal pack for any disbursements listed that may become payable by the purchaser on completion.

Please see the legal pack for any disbursements listed that may become payable by the purchaser on completion.