For Sale By Auction | 21 January 2025 | Lot 11

3 Dunmow Street, Grimsby, South Humberside

Sold £38,000

  • Property For Sale

Call the team on 01427 616436 for more information

Auction Closed

Viewing Times

Please call Auction House Lincolnshire, North Notts & South Yorks on 01427 616436 to arrange a viewing

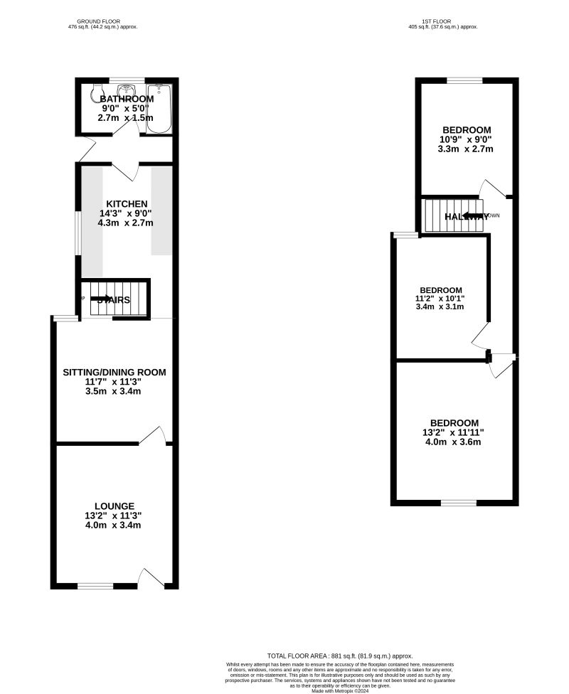
*ONLINE Unconditional Auction Opening 3 March 2025* To register for the legal pack and bidding, please visit our website: auctionhouse.co.uk/lincolnshire Situation: The property is situate on Dunmow Street, Grimsby a popular and central area of this north east Lincolnshire market and port town. The town centre is within close proximity offering a wide range of facilities and amenities both retail and leisure and Grimsby itself is well positioned for access to the M180 road network. Description: A mid terrace house offered for sale in need of some cosmetic improvement but benefiting from some uPVC double glazing and versatile accommodation throughout. The property boasts well proportioned rooms and the scope to convert to an HMO subject to the necessary consents being obtained. This property will appeal to those investors and owner occupiers alike being an ideal project and offering high potential yield. An internal viewing is a must to appreciate the scope of the accommodation on offer. Potential rent for similar properties in the area is circa £575 pcm (£6,900 per annum) based on Rightmove comparable evidence. Accommodation Ground Floor Entrance Hall Lounge Dining Room Kitchen Family Bathroom First Floor Bedroom One Bedroom Two Bedroom Three Outside: Enclosed rear gardensMaterial Information Tenure: The property is freehold. All prospective bidders should satisfy themselves of the tenure by inspecting the legal pack. Council Tax: The property falls within North East Lincolnshire Council – BAND A Possession: Vacant possession will be given upon completion. Viewing: Strictly by appointment with Auction House. Services: Prospective purchasers are advised to make their own enquiries of the relevant statutory authorities. NB: Services, Apparatus and Equipment have not been tested by Auction House and therefore cannot be verified as being in working order. The buyer is advised to obtain verification from their Soli

Energy Efficiency Rating (EPC)

Current Rating D

Services

Interested parties are invited to make their own enquiries to the relevant authorities as to the availability of the services.

Additional Fees

Administration Charge - Non-refundable £3,600 inc VAT payable on the fall of the virtual gavel.

Disbursements - Please see the legal pack for any disbursements listed that may become payable by the purchaser on completion.

Please see the legal pack for any disbursements listed that may become payable by the purchaser on completion.