For Sale By Auction | 25 February 2025 | Lot 68

35 Spital Terrace, Gainsborough, Lincolnshire

Sold Prior

  • Property For Sale

Call the team on 01427 616436 for more information

Auction Closed

Viewing Times

Please call Auction House Lincolnshire, North Notts & South Yorks on 01427 616436 to arrange a viewing

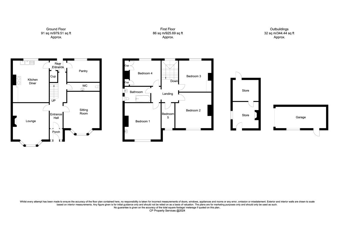
Situation: The property is situate on Spital Terrace, Gainsborough a popular and sought after residential area of the town within close proximity of the town centre and the popular Marshalls Yard retail and leisure complex. The town itself offers a wealth of facilities and amenities as well as good access to surrounding towns and the cities of Lincoln and Doncaster. Description: A rare and wonderful opportunity to acquire this substantial traditional detached house offered for sale in need of a scheme of improvement works throughout but benefiting from many wonderful original features, including floorboards, skirting, leaded light windows & balustrade. This property would make a fine home and an internal viewing is a must to appreciate the scope of the accommodation on offer. The property occupies a well positioned plot in the heart of the town with separate vehicle access to the rear and this property must be viewed fully to be appreciated. Timber and glazed front door leading intoStorm Porch Further timber and glazed door intoEntrance Hallway Two radiators and stairs rising to first floor half landing with leaded light glazed window and radiator.Sitting Room: 5.18m x 4.24m (17’0 x 13’11) maximum measurements Timber glazed bay window to the front elevation, radiator, feature fireplace.Living Room: 4.19m x 5.08m (13’9 x 16’8) Timber glazed bay window to the front elevation, radiator and feature fireplace.Cloakroom & W.C With radiator, low level flush w.c. and pedestal wash hand basin.Rear Entrance Lobby Timber glazed door opening to the rear of the property, door to understairs storage cupboard.Pantry: 3.78m x 2.08m (12’5 x 6’10) Timber glazed window to the rear elevation.Dining Kitchen: 4.85m x 4.22m (15’11 x 13’10) maximum measurements Timber glazed window to the rear elevation, radiator, range of built in kitchen units, Aga cooker, wall mounted gas combination boiler.First floor landin

Energy Efficiency Rating (EPC)

Current Rating E

Services

Interested parties are invited to make their own enquiries to the relevant authorities as to the availability of the services.

Additional Fees

Buyer's Premium - 1.2% inc VAT of the purchase price, payable on exchange of contracts.

Administration Charge - Non-refundable £1,800 inc VAT payable on the fall of the virtual gavel.

Disbursements - Please see the legal pack for any disbursements listed that may become payable by the purchaser on completion.