For Sale By Auction | 11 March 2025 | Lot 6

5 Cross Street, Skegness, Lincolnshire

Sold £69,000

  • Property For Sale

Call the team on 01427 616436 for more information

Auction Closed

Viewing Times

Please call Auction House Lincolnshire, North Notts & South Yorks on 01427 616436 to arrange a viewing

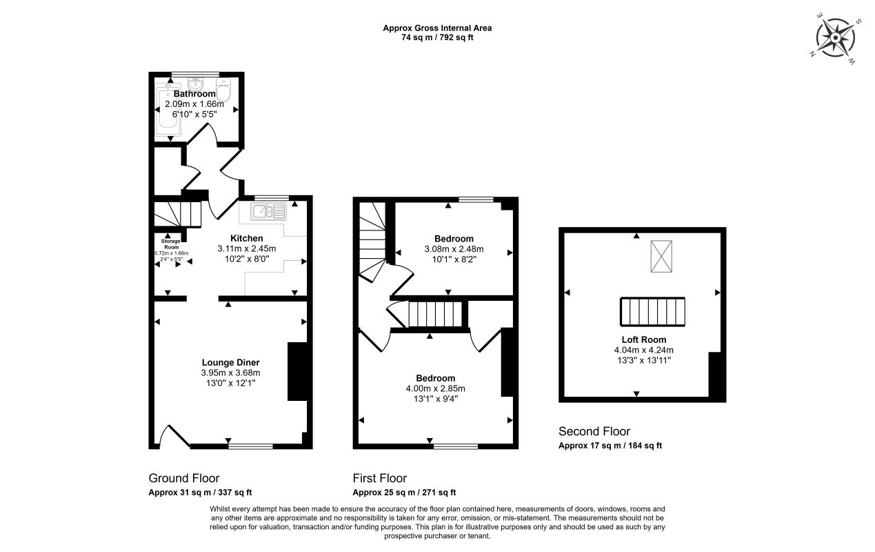
Situation: The property is situate on Cross Street, Skegness central to a wide range of facilities and amenities including the sea front, promenade and leisure facilities. Skegness itself is a popular sought after seaside resort, with many thousands of holiday makers year by year. Skegness also offers excellent access to the coastal towns of Lincolnshire. Description: A traditionally constructed mid terrace house, ideal for investors and owner occupiers alike, benefitting from both double glazing and central heating, with versatile and deceptive accommodation. This property may be suitable for a variety of uses (subject to planning), including a holiday let, residential let or HMO conversion. Potential HMO rates at £95 per room, per week (£19,760 per annum as a 4 bed HMO), or holiday lets in excess of £600 per week in the popular months. Accommodation Ground Floor Entrance Sitting Room Dining Kitchen Family Bathroom First Floor Bedroom 1 Bedroom 2 Second Floor Bedroom 3 Outside: Rear garden.Material Information Tenure: The property is freehold. All prospective bidders should satisfy themselves of the tenure by inspecting the legal pack. Council Tax: The property falls within East Lindsey Council – BAND A Possession: Vacant possession will be given upon completion. Viewing: Strictly by appointment with Auction House. Services: Prospective purchasers are advised to make their own enquiries of the relevant statutory authorities. NB: Services, Apparatus and Equipment have not been tested by Auction House and therefore cannot be verified as being in working order. The buyer is advised to obtain verification from their Solicitor/Surveyor. These particulars are believed to be correct but their accuracy is not guaranteed and they do not form any part of any contract. Information relating to Rating and Town and Country Planning matters has been obtained by verbal enquiry only. Prospective purchasers are advised to

Energy Efficiency Rating (EPC)

Current Rating C

Services

Interested parties are invited to make their own enquiries to the relevant authorities as to the availability of the services.

Additional Fees

Administration Charge - Non-refundable £3,600 inc VAT payable on the fall of the virtual gavel.

Disbursements - Please see the legal pack for any disbursements listed that may become payable by the purchaser on completion.

Please see the legal pack for any disbursements listed that may become payable by the purchaser on completion.