For Sale By Auction | 11 March 2025 | Lot 29

198 Wellington Street, Grimsby, South Humberside

Sold £44,000

  • Property For Sale

Call the team on 01427 616436 for more information

Auction Closed

Viewing Times

Please call Auction House Lincolnshire, North Notts & South Yorks on 01427 616436 to arrange a viewing

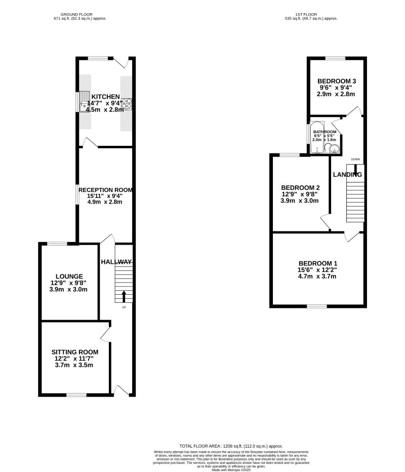
Situation: The property is situate on Wellington Street, Grimsby a popular and central area of this north east Lincolnshire market and port town. The town centre is within close proximity offering a wide range of facilities and amenities both retail and leisure and Grimsby itself is well positioned for access to the M180 road network. Description: A mid terrace house offered for sale in need of some modernisation but benefiting from versatile and deceptive accommodation throughout. The property boasts well proportioned rooms and the scope to convert to an HMO subject to the necessary planning permissions being obtained. This property will appear to those investors and owner occupiers alike being a project and offering high potential yield. An internal viewing is a must to appreciate the scope of the accommodation on offer. As a 5 bedroom HMO, the property could generate up to £450 per week (£23,400 per annum), or, once refurbished, a single let at £650pcm (£7,200 per annum) based on properties of a similar style in the area. Accommodation Ground Floor: Entrance Hallway Lounge Dining Room Kitchen Sitting Room First Floor: Bedroom 1 Bedroom 2 Bedroom 3 Bathroom Outside: Front and rear gardensMaterial Information Tenure: The property is freehold. All prospective bidders should satisfy themselves of the tenure by inspecting the legal pack. Council Tax: The property falls within North East Lincolnshire Council – BAND A Possession: Vacant possession will be given upon completion. Viewing: Strictly by appointment with Auction House. Services: Prospective purchasers are advised to make their own enquiries of the relevant statutory authorities. NB: Services, Apparatus and Equipment have not been tested by Auction House and therefore cannot be verified as being in working order. The buyer is advised to obtain verification from their Solicitor/Surveyor. These particulars are believed to be correct but their accuracy

Energy Efficiency Rating (EPC)

Current Rating D

Services

Interested parties are invited to make their own enquiries to the relevant authorities as to the availability of the services.

Additional Fees

Administration Charge - Non-refundable £3,600 inc VAT payable on the fall of the virtual gavel.

Disbursements - Please see the legal pack for any disbursements listed that may become payable by the purchaser on completion.

Please see the legal pack for any disbursements listed that may become payable by the purchaser on completion.