For Sale By Auction | 27 May 2025 | Lot 3

130B Brereton Avenue, Cleethorpes, South Humberside

Sold £36,000

  • Property For Sale

Call the team on 01427 616436 for more information

Auction Closed

Viewing Times

Please call Auction House Lincolnshire, North Notts & South Yorks on 01427 616436 to arrange a viewing

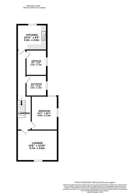
Situation: The property is situated on Brereton Avenue, Cleethorpes a popular and central area of this north east Lincolnshire market and port town. The town centre is within close proximity offering a wide range of facilities and amenities both retail and leisure and Grimsby itself is well positioned for access to the M180 road network. Description: A first floor flat benefiting from uPVC double glazing, central heating and versatile accommodation throughout. The property boasts well proportioned rooms and the scope add value. This property will appeal to those investors and owner occupiers alike being an ideal project and offering high potential yield at the advertised guide price, with potential to let at £550pcm (£6600 per annum) once renovated based on properties of a similar style in the area. An internal viewing is a must to appreciate the scope of the accommodation on offer. Accommodation Hallway: Kitchen: 3.30m x 3.0m Sitting Room: 4.70m x 3.60m Bedroom: 4.00m x 3.10m Bedroom: 3.00m x 2.40m Bathroom: With suiteMaterial Information: Tenure: The property is leasehold on a term of 199 years from 1 October 2008 at a ground rent of £50.00 per annum. The ground rent increases every 25 years of the term by doubling to a maximum of £800.00 p.a. All prospective bidders should satisfy themselves of the tenure by inspecting the legal pack. Council Tax: The property falls within North East Lincoln Council – BAND A Viewing: Strictly by appointment with Auction House. Services: Prospective purchasers are advised to make their own enquiries of the relevant statutory authorities. NB: Services, Apparatus and Equipment have not been tested by Auction House and therefore cannot be verified as being in working order. The buyer is advised to obtain verification from their Solicitor/Surveyor. These particulars are believed to be correct but their accuracy is not guaranteed and they do not form any part of any contract. Information relatin

Energy Efficiency Rating (EPC)

Current Rating D

Services

Interested parties are invited to make their own enquiries to the relevant authorities as to the availability of the services.

Additional Fees

Buyer's Premium - Non-refundable £1,200 inc VAT payable on the fall of the virtual gavel.

Administration Charge - Non-refundable £1,800 inc VAT payable on the fall of the virtual gavel.

Disbursements - Please see the legal pack for any disbursements listed that may become payable by the purchaser on completion.

Please see the legal pack for any disbursements listed that may become payable by the purchaser on completion.