For Sale By Auction | 23 September 2025 | Lot 19

1 Samuel Avenue, Grimsby, South Humberside

Sold £87,000

  • Property For Sale

Call the team on 01427 616436 for more information

Auction Closed

Viewing Times

Please call Auction House Lincolnshire, North Notts & South Yorks on 01427 616436 to arrange a viewing

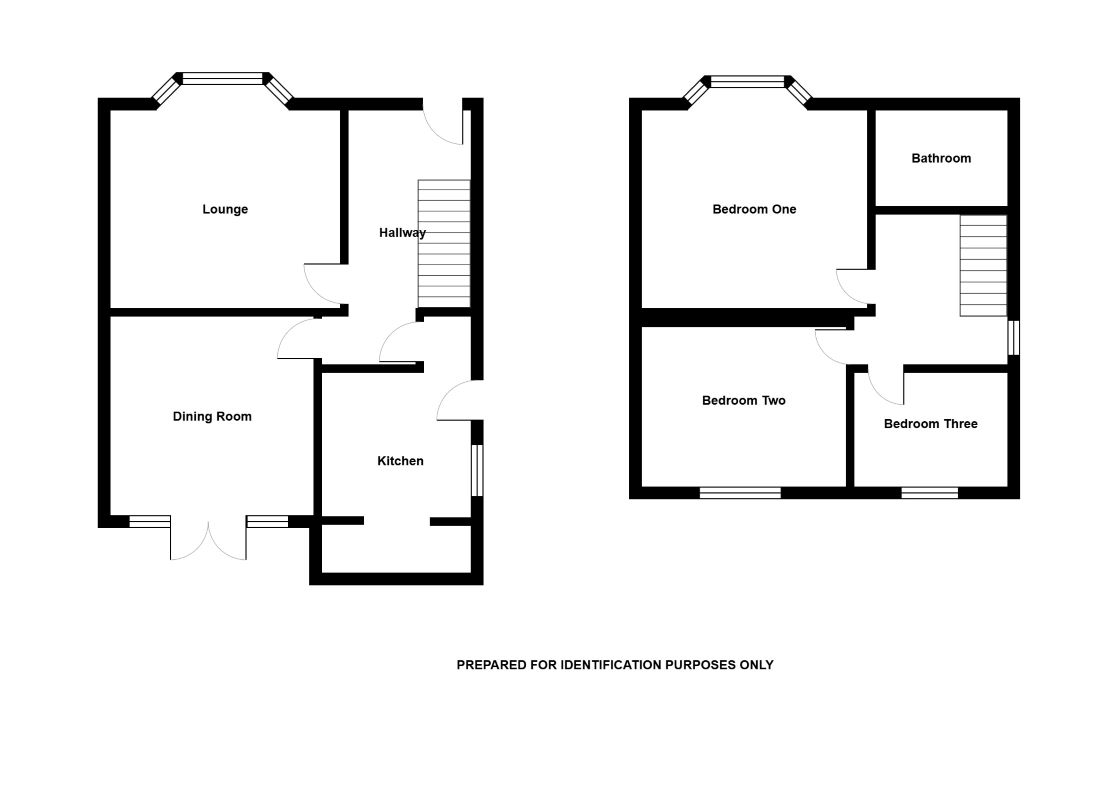
Situation: The property is situated on Samuel Avenue, Cleethorpes a popular and central area of this north east Lincolnshire market and port town. The town centre offers a wide range of facilities and amenities both retail and leisure and both Cleethorpes centre and Grimsby are well positioned for access to the M180 road network. Description: A semi detached house benefiting from uPVC double glazing, central heating system and versatile accommodation throughout. The property boasts well proportioned rooms and the scope to convert to an HMO subject to the necessary planning consents being obtained. This property will appeal to those investors and owner occupiers alike being an ideal project and offering high potential yield (based on advertised guide price) with average rents in the area achieving £750pcm (£9000 per annum) for properties of a similar style or approximately £20,000 per annum as a HMO. An internal viewing is a must to appreciate the scope of the accommodation on offer. Accommodation Ground Floor Entrance Hallway Lounge Dining Room Breakfasting Kitchen First Floor Bedroom 1 Bedroom 2 Bedroom 3 Bathroom Outside: Enclosed rear garden.Material Information Tenure: The property is freehold. All prospective bidders should satisfy themselves of terms of the tenure, ground rent and service charge if applicable, by inspecting the legal pack. Council Tax: The property falls within North East Lincolnshire Council – BAND B Possession: Vacant possession will be given upon completion. Viewing: Strictly by appointment with Auction House. Services: Prospective purchasers are advised to make their own enquiries of the relevant statutory authorities. NB: Services, Apparatus and Equipment have not been tested by Auction House and therefore cannot be verified as being in working order. The buyer is advised to obtain verification from their Solicitor/Surveyor. These particulars are believed to be correct but the

Portrait Video Tour

False

Energy Efficiency Rating (EPC)

Current Rating D

Services

Interested parties are invited to make their own enquiries to the relevant authorities as to the availability of the services.

Additional Fees

Administration Charge - Non-refundable £3,600 inc VAT payable on the fall of the virtual gavel.

Disbursements - Please see the legal pack for any disbursements listed that may become payable by the purchaser on completion.

Please see the legal pack for any disbursements listed that may become payable by the purchaser on completion.