For Sale By Auction | 07 October 2025 | Lot 19

137 Sandsfield Lane, Gainsborough, Lincolnshire

Sold £106,000

  • Property For Sale

Call the team on 01427 616436 for more information

Auction Closed

Viewing Times

Please call Auction House Lincolnshire, North Notts & South Yorks on 01427 616436 to arrange a viewing

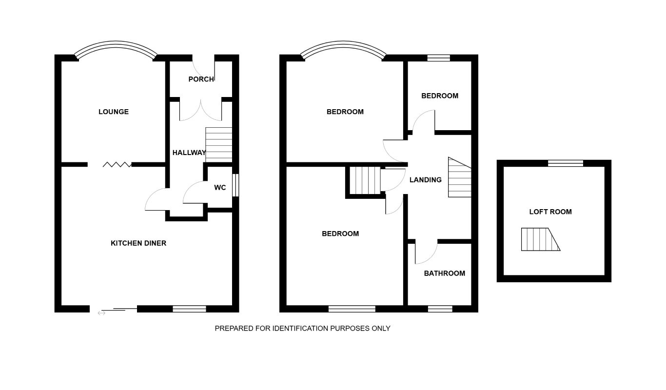
Situation The property is situated on Sandsfield Lane, well positioned for access to the wide range of facilities and amenities that Gainsborough town centre has to offer. The town centre has undergone significant redevelopment, with the arrival of Savoy Cinemas, a range of eateries and retail facilities, along with the Marshalls Yard retail and leisure complex. Gainsborough is well positioned for access to the surrounding towns and Cities of Lincoln and Doncaster. Description A traditionally constructed semi detached house, currently configured as a 4 bedroom family home, benefitting from well proportioned and versatile accommodation throughout, with central heating system and double glazing. The property benefits from a well proportioned plot and may appeal to developers offering scope to add value, along with investors with a strong rental market locally. Well appointed properties on the street have sold in excess of £200,000 within the last year, and rents once renovated could fetch circa £900pcm (£10,800 per annum). Accommodation Ground Floor: Entrance Hallway WC Sitting Room Open Plan Dining Kitchen First Floor: Bedroom 1 Bedroom 2 Bedroom 3 Bathroom Second Floor: Bedroom 4 Outside: Good sized gardens to front and rear.Material Information Tenure: The property is freehold. All prospective bidders should satisfy themselves of terms of the tenure, ground rent and service charge if applicable, by inspecting the legal pack. Council Tax: The property falls within West Lindsey District Council – BAND B Possession: Vacant possession will be given upon completion. Viewing: Strictly by appointment with Auction House. Services: Prospective purchasers are advised to make their own enquiries of the relevant statutory authorities. NB: Services, Apparatus and Equipment have not been tested by Auction House and therefore cannot be verified as being in working order. The buyer is advised to obtain verification from

Portrait Video Tour

False

Energy Efficiency Rating (EPC)

Current Rating E

Services

Interested parties are invited to make their own enquiries to the relevant authorities as to the availability of the services.

Additional Fees

Administration Charge - Non-refundable £3,600 inc VAT payable on the fall of the virtual gavel.

Disbursements - Please see the legal pack for any disbursements listed that may become payable by the purchaser on completion.

Please see the legal pack for any disbursements listed that may become payable by the purchaser on completion.