Withdrawn | Lot 68

16 Pool Street, Caernarfon, Gwynedd, LL55 2AB

Withdrawn

  • Mixed Use
  • Tenure: Freehold

Call the team on 020 7625 9007 for more information

Auction Date

Wed 11/12/2019

Auction Time

12.00

Auction Venue

London Marriott Hotel Regents Park, 128 King Henry’s Road, London, NW3 3ST

A Mixed Use Town Centre Investment Comprising a Ground Floor Barber Shop with First & Second Floor Ancillary Accommodation Subject to a Lease Producing £9,000 per annum. Potential for Conversion of the Upper Parts to Residential (Subject to Obtaining all Relevant Consents).

The property comprises a mid terrace building arranged over ground and three upper floors (including attic). The tenant has recently refurbished the property spending in excess of £20,000 (as advised by the vendor). The upper parts benefit from separate side access.

Tenure

Freehold

Location

The property occupies a busy trading position within a pedestrianised town centre shopping parade. Nearby multiples include Boots and Superdrug. Transport links are provided by the nearby A487. Caernarfon is a popular tourist destination and the famous Caernarfon Castle is a short walk away.

Accommodation

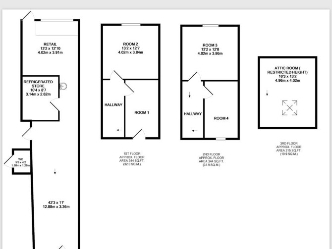
Ground Floor (861 sq ft) Shop Area, Refrigerated Store, WC, Large Rear Area, Refrigerated Container First Floor (344 sq ft) Two Rooms First Floor (344 sq ft) Two Rooms Third Floor (215 sq ft) Attic Room (Restricted Height)

Exterior

The property benefits from a shared yard

Tenancy

The entire property is let on a 15 year FRI lease commencing 2019 at a rent of £9,000 per annum. There are no rent arrears. There is a 3 month rent deposit.

Current Rent Reserved

Current Rent Reserved £9,000 per annum

Services

Interested parties are requested to make their own enquiries to the relevant authorities as to the availability of services.

Important Notice to Prospective Buyers:

We draw your attention to the Special Conditions of Sale within the Legal Pack, referring to other charges in addition to the purchase price which may become payable. Such costs may include Search Fees, reimbursement of Sellers costs and Legal Fees, and Transfer Fees amongst others.

Additional Fees

Administration Charge - Purchasers will be required to pay an administration fee of £1,800 inc VAT

Disbursements - Please see the legal pack for any disbursements listed that may become payable by the purchaser on completion.

View Larger Map

Disclaimer: The map preview provided above is for general guidance only and may not accurately reflect the exact location or surrounding buildings. Prospective buyers and interested parties are strongly advised to independently verify the precise location and surroundings before bidding.