For Sale By Auction | 12:00, 25 March 2020 | Lot 44

12 Tring Road, Wilstone, Tring, Hertfordshire, HP23 4PB

Sold After

  • Detached House
  • 3 Bedrooms
  • Tenure: Freehold

Call the team on 020 7625 9007 for more information

Auction Date

Wed 25/03/2020

Auction Time

12:00

Auction Venue

Live Stream

Viewing Times:

Tue 10 Mar

17:15-17:45

Fri 13 Mar

17:15-17:45

Tue 17 Mar

17:15-17:45

Fri 20 Mar

17:15-17:45

A Vacant Three Bedroom Detached House Occupying a Wide Plot Offered with Potential for a Side and Rear Extension (Subject to Obtaining all Relevant Consents).

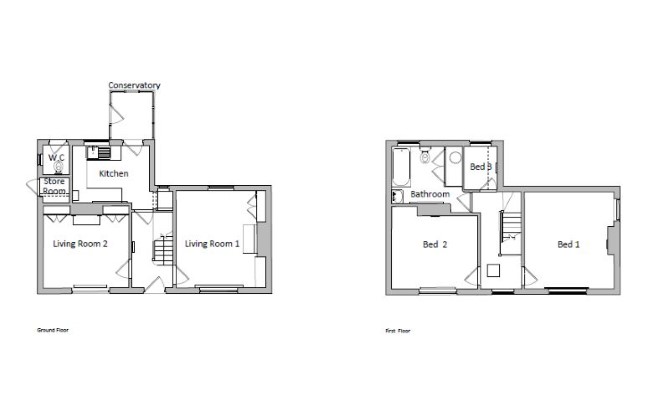
The property comprises a three bedroom detached house measuring approximately 983 sq ft arranged over ground and first floors.

Tenure

Freehold

Location

The property is situated within the conservation area of the popular Wilstone village close to its local shops and amenities. The area benefits from countryside views and has two natural reservoirs very close by. Transport links are provided by Tring rail station located approximately 2 miles away.

Accommodation

Ground Floor Two Reception Rooms Kitchen Conservatory First Floor Three Bedrooms Bathroom with WC & wash basin

Exterior

The property benefits from front and rear gardens.

Services

Interested parties are requested to make their own enquiries to the relevant authorities as to the availability of services.

Important Notice to Prospective Buyers:

We draw your attention to the Special Conditions of Sale within the Legal Pack, referring to other charges in addition to the purchase price which may become payable. Such costs may include Search Fees, reimbursement of Sellers costs and Legal Fees, and Transfer Fees amongst others.

Additional Fees

Administration Charge - Purchasers will be required to pay an administration fee of £1,800 inc VAT

Disbursements - Please see the legal pack for any disbursements listed that may become payable by the purchaser on completion.

View Larger Map

Disclaimer: The map preview provided above is for general guidance only and may not accurately reflect the exact location or surrounding buildings. Prospective buyers and interested parties are strongly advised to independently verify the precise location and surroundings before bidding.