For Sale By Auction | 12:30, 30 July 2020 | Lot 1

1 George Lane, Lewisham, London, SE13 6HQ

Sold £204,000

  • Commercial Development
  • Tenure: Freehold

Call the team on 020 7625 9007 for more information

Auction Date

Thu 30/07/2020

Auction Time

12:30

Auction Venue

Live Stream

Viewing Times:

Wed 15 Jul

11:15-11:45

Fri 17 Jul

11:15-11:45

Wed 22 Jul

11:15-11:45

Fri 24 Jul

11:15-11:45

Wed 29 Jul

11:15-11:45

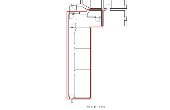
A Vacant End of Terrace Single Story Commercial Building. Suitable for Investment or Potential for Redevelopment (Subject to Obtaining all Relevant Consents)

The property comprises an end of terrace single story lock up shop.

Tenure

Freehold

Lot 1 & Lot 2 To Be Offered Individually or Collectively

Location

The property is situated in the South East London area of Lewisham amongst local shops and amenities just off Lewisham High Street. Transport links are provided by Ladywell & Catford rail station.

Accommodation

Ground Floor Shop Area G.I.A = 57 sq m (approx 613 sq ft)

Services

Interested parties are requested to make their own enquiries to the relevant authorities as to the availability of services.

Important Notice to Prospective Buyers:

We draw your attention to the Special Conditions of Sale within the Legal Pack, referring to other charges in addition to the purchase price which may become payable. Such costs may include Search Fees, reimbursement of Sellers costs and Legal Fees, and Transfer Fees amongst others.

Additional Fees

Administration Charge - Purchasers will be required to pay an administration fee of £1,800 inc VAT

Disbursements - Please see the legal pack for any disbursements listed that may become payable by the purchaser on completion.

View Larger Map

Disclaimer: The map preview provided above is for general guidance only and may not accurately reflect the exact location or surrounding buildings. Prospective buyers and interested parties are strongly advised to independently verify the precise location and surroundings before bidding.