For Sale By Auction | 12:00, 15 September 2020 | Lot 18

90 Chamberlayne Road, Kensal Rise, London, NW10 3JL

Sold £1,080,000

  • Block of Apartments
  • 5 Bedrooms
  • Tenure: Freehold

Call the team on 020 7625 9007 for more information

Auction Date

Tue 15/09/2020

Auction Time

12:00

Auction Venue

Live Stream

Viewing Times:

Wed 2 Sep

11:00-11:30

Fri 4 Sep

11:30-12:00

Mon 7 Sep

11:00-11:30

Wed 9 Sep

11:00-11:30

Mon 14 Sep

11:00-11:30

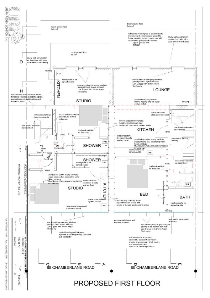
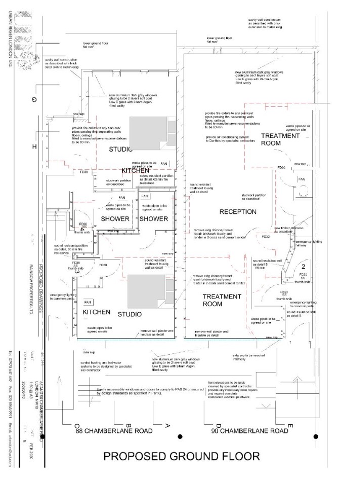
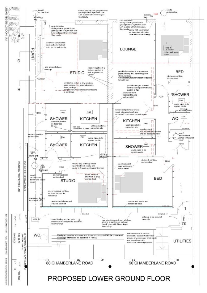
A Part-Let Mixed Use Investment Comprising Two x Self-Contained Flats and a Dental Surgery. Once Extended (Planning Granted) and Fully Let the Property has a Total ERV of £84,000 per annum.

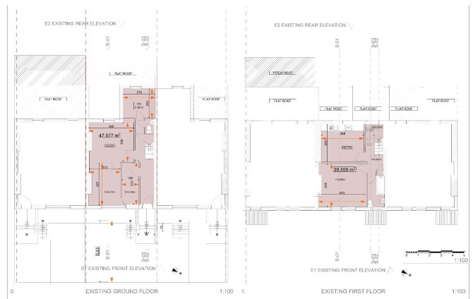
The property comprises a mid terrace building arranged over lower ground, raised ground and two upper floors.

Tenure

Freehold

Location

The property is situated in the North West London area of Kensal Rise amongst the local shops and amenities of Chamberlayne Road. The open spaces of Queen's Park are within easy reach. Transport links are provided by both Kensal Rise overground and Kensal Green underground (Bakerloo line) stations.

Exterior

The property benefits from a good sized rear garden.

Planning

Brent Council granted the following planning permission (ref.19/4453) on 2nd April 2020 for: "Construction of lower ground, ground, rear dormer roof extensions and erection of single storey outbuildings to Nos. 88 & 90 Chamberlayne Road". This will extend this property by circa 500 sq ft.

The property is under one title and therefore would be subject to commercial stamp duty rates.

Services

Interested parties are requested to make their own enquiries to the relevant authorities as to the availability of services.

Important Notice to Prospective Buyers:

We draw your attention to the Special Conditions of Sale within the Legal Pack, referring to other charges in addition to the purchase price which may become payable. Such costs may include Search Fees, reimbursement of Sellers costs and Legal Fees, and Transfer Fees amongst others.

Additional Fees

Administration Charge - Purchasers will be required to pay an administration fee of £1,800 inc VAT

Disbursements - Please see the legal pack for any disbursements listed that may become payable by the purchaser on completion.

View Larger Map

Disclaimer: The map preview provided above is for general guidance only and may not accurately reflect the exact location or surrounding buildings. Prospective buyers and interested parties are strongly advised to independently verify the precise location and surroundings before bidding.