For Sale By Auction | 12:00, 09 December 2020 | Lot 35

Land on the North Side of Forest Avenue, Southend-on-Sea, Essex, SS1 2HU

Sold £103,000

  • Land
  • 5 Bedrooms
  • Tenure: Freehold

Call the team on 020 7625 9007 for more information

Auction Date

Wed 09/12/2020

Auction Time

12:00

Auction Venue

Live Stream

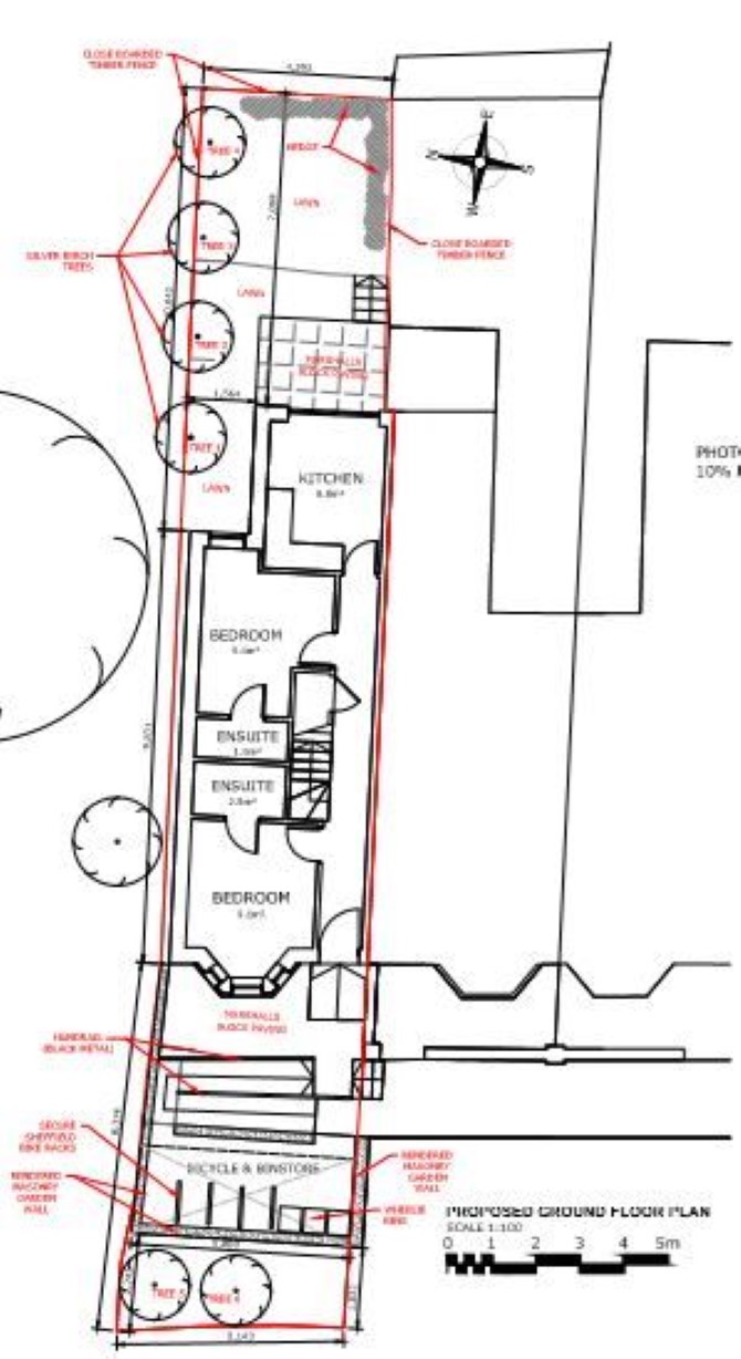
A Vacant Site Measuring Approximately 134 sq m (1,442 sq ft). Offered With Planning Permission for the Construction of a Five Bedroom End of Terrace House

The site comprises a cleared rectangular shaped site measures approximately 134 sq m (1,442 sq ft).

Tenure

Freehold

Location

The site is situated at adjacent to a residential terrace and close to local shops and amenities. The open spaces of Southend Cliff Gardens and Southchurch Park are within easy reach. Transport links are provided by Southend Central rail station.

Planning

Southend-on-Sea Borough Council granted the following planning permission (Ref: 19/00694/FUL) by Appeal (Ref: 19/00031/REFN) on 27/09/19 for: 'Erect building to be used as five bedroom HMO (House In Multiple Occupation)'.

Proposed Accommodation

Ground Floor Reception Room with open plan Kitchen Two Bedrooms with En-Suites First Floor Three Bedrooms with En-Suites

Services

Interested parties are requested to make their own enquiries to the relevant authorities as to the availability of services.

Important Notice to Prospective Buyers:

We draw your attention to the Special Conditions of Sale within the Legal Pack, referring to other charges in addition to the purchase price which may become payable. Such costs may include Search Fees, reimbursement of Sellers costs and Legal Fees, and Transfer Fees amongst others.

Additional Fees

Administration Charge - Purchasers will be required to pay an administration fee of £1,800 inc VAT

Disbursements - Please see the legal pack for any disbursements listed that may become payable by the purchaser on completion.

View Larger Map

Disclaimer: The map preview provided above is for general guidance only and may not accurately reflect the exact location or surrounding buildings. Prospective buyers and interested parties are strongly advised to independently verify the precise location and surroundings before bidding.