For Sale By Auction | 12:00, 09 December 2020 | Lot 89

Flat 31 Brickfield Court, 5 Bath Road, Slough, Buckinghamshire, SL1 3FX

Sold £171,000

  • Apartment
  • 1 Bedroom
  • Tenure: Long Leasehold. The property is held on a 999 year lease from 01/06/2016.

Call the team on 020 7625 9007 for more information

Auction Date

Wed 09/12/2020

Auction Time

12:00

Auction Venue

Live Stream

Viewing Times:

Mon 23 Nov

14:45-15:15

Wed 25 Nov

14:45-15:15

Mon 30 Nov

14:45-15:15

Wed 2 Dec

14:45-15:15

Mon 7 Dec

14:45-15:15

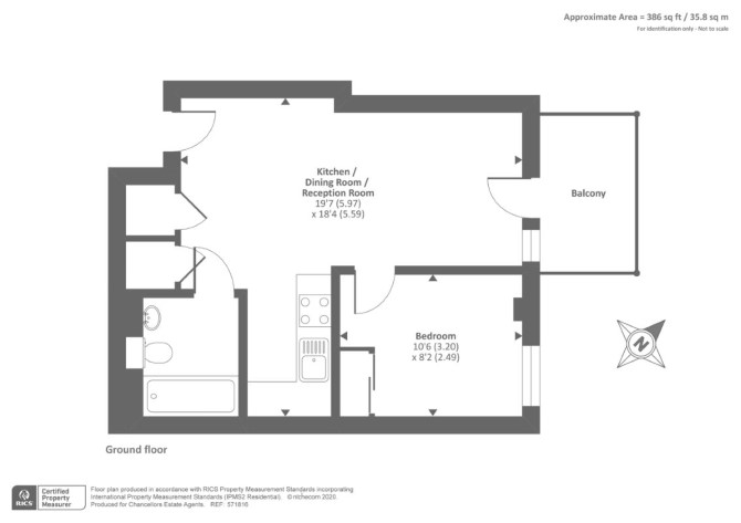
A First Floor One Bedroom Flat Subject to an Periodic Tenancy Producing £13,800 per annum

The property comprises a first floor flat situated within a detached building arranged over ground and four upper floors.

Tenure

Long Leasehold. The property is held on a 999 year lease from 01/06/2016.

Location

The property is situated in Slough close to local shops and amenities. The open spaces of Salt Hill Park and Baylis Memorial Gardens are also within easy reach. Transport links are provided by Slough Rail Station.

Accommodation

First Floor Open Plan Reception and Kitchen Bedroom Bathroom

Exterior

The property benefits from a private balcony and private underground car park with an allocated car parking space.

Tenancy

The property is subject to an Periodic Tenancy for a term of 6 months commencing March 2020 at a rent of £1,150 per calendar month.

Current Rent Reserved

Current Rent Reserved £13,800 per annum

Services

Interested parties are requested to make their own enquiries to the relevant authorities as to the availability of services.

Important Notice to Prospective Buyers:

We draw your attention to the Special Conditions of Sale within the Legal Pack, referring to other charges in addition to the purchase price which may become payable. Such costs may include Search Fees, reimbursement of Sellers costs and Legal Fees, and Transfer Fees amongst others.

Additional Fees

Administration Charge - Purchasers will be required to pay an administration fee of £1,800 inc VAT

Disbursements - Please see the legal pack for any disbursements listed that may become payable by the purchaser on completion.

View Larger Map

Disclaimer: The map preview provided above is for general guidance only and may not accurately reflect the exact location or surrounding buildings. Prospective buyers and interested parties are strongly advised to independently verify the precise location and surroundings before bidding.